Chain-free fixer with large garden and off-street parking.
Three bedrooms and two reception rooms with period features
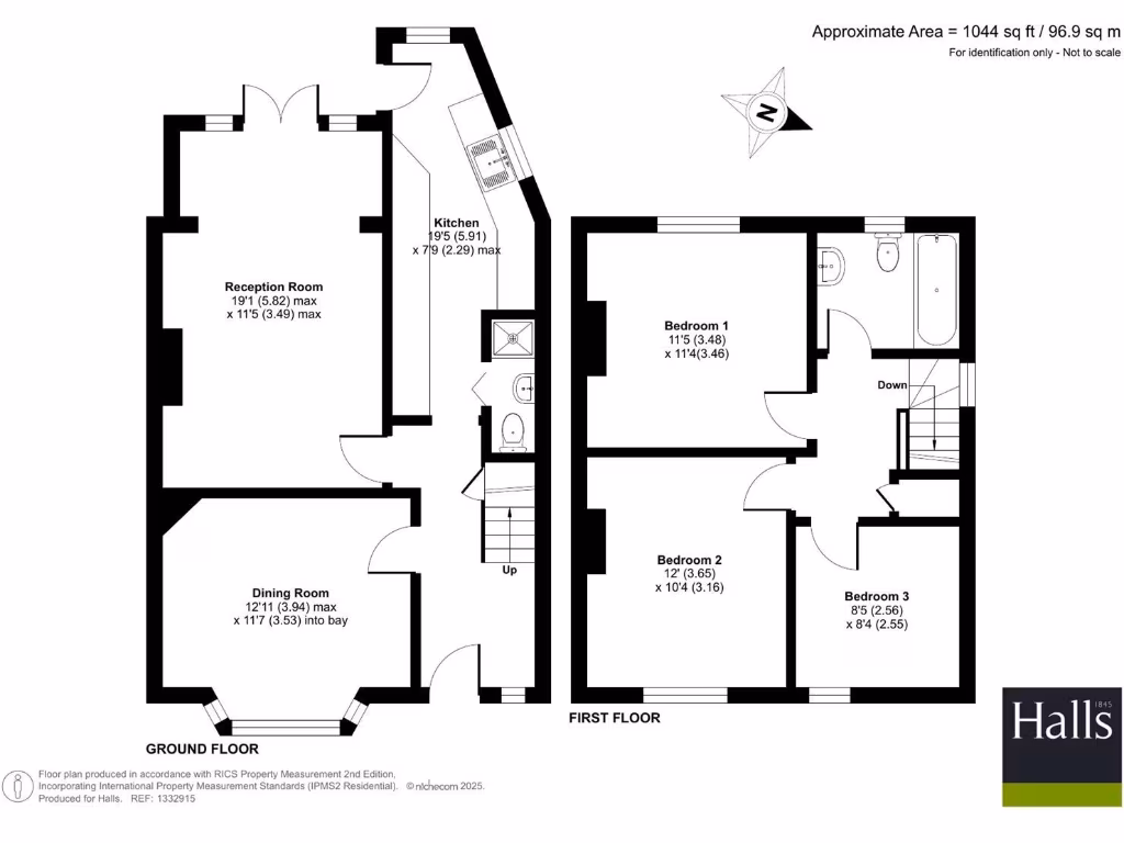
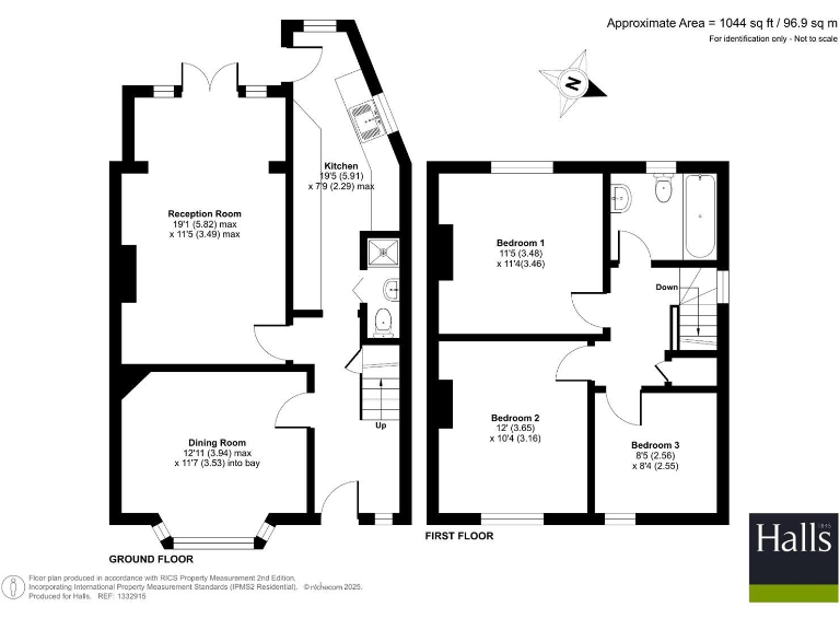
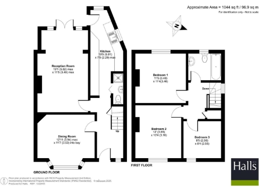
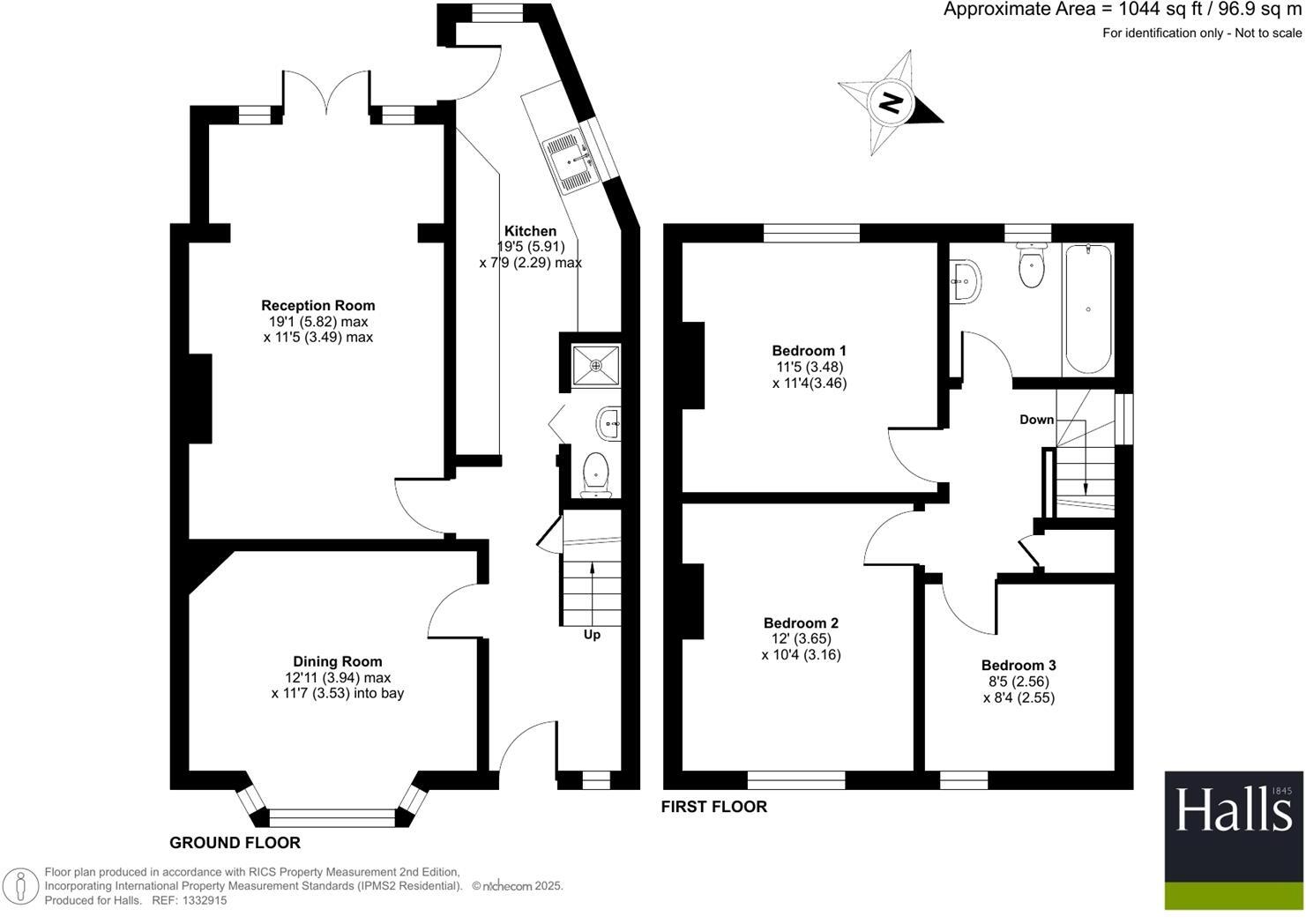
Set on a generous plot in a well-regarded Kidderminster neighbourhood, this 1930s semi offers three bedrooms, two reception rooms and clear scope to create a comfortable family home. The house retains period character such as a bay-windowed dining room and brick fireplaces with log burners, while double patio doors open the living room to the rear garden.
The large, tiered garden, detached workshop/store, greenhouse and tool shed provide useful outdoor storage and scope for landscaping or an extension (subject to permissions). Off-street tarmacadam parking and a side shared driveway give convenient vehicle access; the property is offered chain free for a faster transaction.
The house needs full modernisation throughout: cosmetic updating, kitchen and bathroom refurbishment are required, and solid brick walls are likely uninsulated so thermal upgrades should be considered. Services are understood to be connected but have not been tested. An internal inspection is strongly recommended to assess renovation costs and any further works.
Location is a major practical benefit — local primary and secondary schools are within walking distance, regular bus routes serve Kidderminster town centre and the surrounding area, and nearby Bewdley offers additional local amenities and leisure. This property suits a buyer seeking renovation potential and a larger garden plot in a very affluent, low-crime suburb.
3 bedroom semi-detached house for sale in Hurcott Road, Kidderminster, DY10 — £195,000 • 3 bed • 1 bath • 952 ft²
3 bedroom semi-detached house for sale in Neville Avenue, Kidderminster, Worcestershire, DY11 — £230,000 • 3 bed • 1 bath • 1041 ft²
5 bedroom semi-detached house for sale in Heathfield Crescent, Kidderminster, DY11 6PF, DY11 — £347,500 • 5 bed • 2 bath • 925 ft²
3 bedroom semi-detached house for sale in BLAKEBROOK, Kidderminster, DY11 6AR, DY11 — £290,000 • 3 bed • 2 bath • 958 ft²
3 bedroom semi-detached house for sale in Aggborough Crescent, Kidderminster, DY10 — £250,000 • 3 bed • 1 bath • 1187 ft²
3 bedroom semi-detached house for sale in Kestrel Close, Kidderminster, Worcestershire, DY10 — £260,000 • 3 bed • 1 bath • 1669 ft²










































































