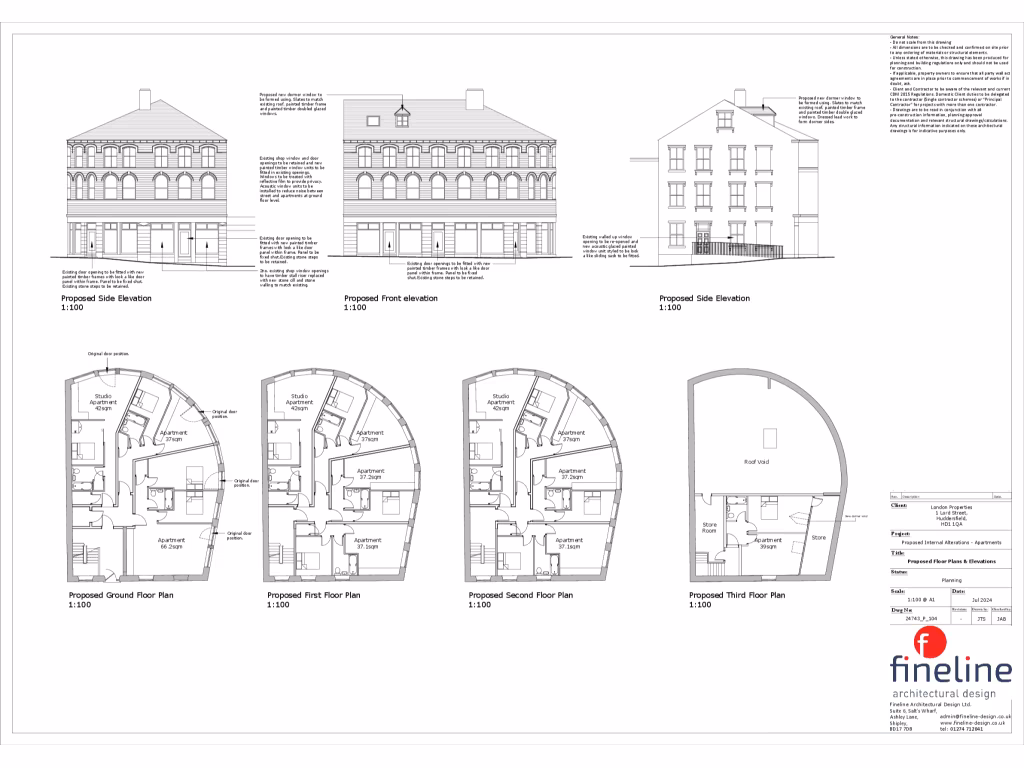
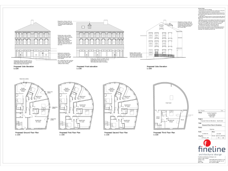
**Standout Features:**
- Prime town center location with prominent corner position
- Planning permission granted for conversion into 12 residential apartments
- Spacious 5,422 sq ft layout with abundant natural light
- Historic stone façade characteristic of the Victorian era
- Mixed-use potential with an existing commercial unit on the ground floor
- Lift access to upper floors
**Summary:**
Seize this incredible investment opportunity in Huddersfield Town Centre! This substantial four-storey stone-built property boasts planning permission for conversion into 12 modern apartments, ideal for urban living. Its prime corner setting ensures both excellent visibility and prime access to local amenities, making it attractive for young families and students.
The building features a large footprint of 5,422 sq ft, allowing for a variety of apartment sizes. Each upper floor can be transformed into light-filled living spaces, while the ground floor retains a prominent commercial unit, offering versatility for future use. Its attractive ashlar stone return frontage adds to the aesthetic appeal, reflecting the character of the area.
Do note that the property may require updates to insulation and potential renovations, so it’s perfect for investors looking to add value through refurbishment. Don’t miss this chance to create a vibrant residential hub in a thriving urban locale!
Residential development for sale in The Cottage, Beast Market, Huddersfield, HD1 — £50,000 • 1 bed • 1 bath • 592 ft²
Commercial development for sale in Apartments 1-10, 16-20, Cloth Hall Street, Huddersfield, HD1 — £800,000 • 1 bed • 1 bath • 3616 ft²
Residential development for sale in Residential Development New Street, Huddersfield, West Yorkshire, HD1 2TR, HD1 — £150,000 • 18 bed • 18 bath • 8322 ft²
Commercial property for sale in St. Peters Street, Huddersfield, HD1 — £170,000 • 3 bed • 1 bath • 2197 ft²
High street retail property for sale in 22 Byram Street, HD1 — £165,000 • 1 bed • 1 bath • 1598 ft²
Residential development for sale in New Street, Huddersfield, West Yorkshire, HD1 — £895,000 • 1 bed • 8 bath • 15600 ft²


















