Quiet location near parks and top-rated schools, chain free and ready to personalise.
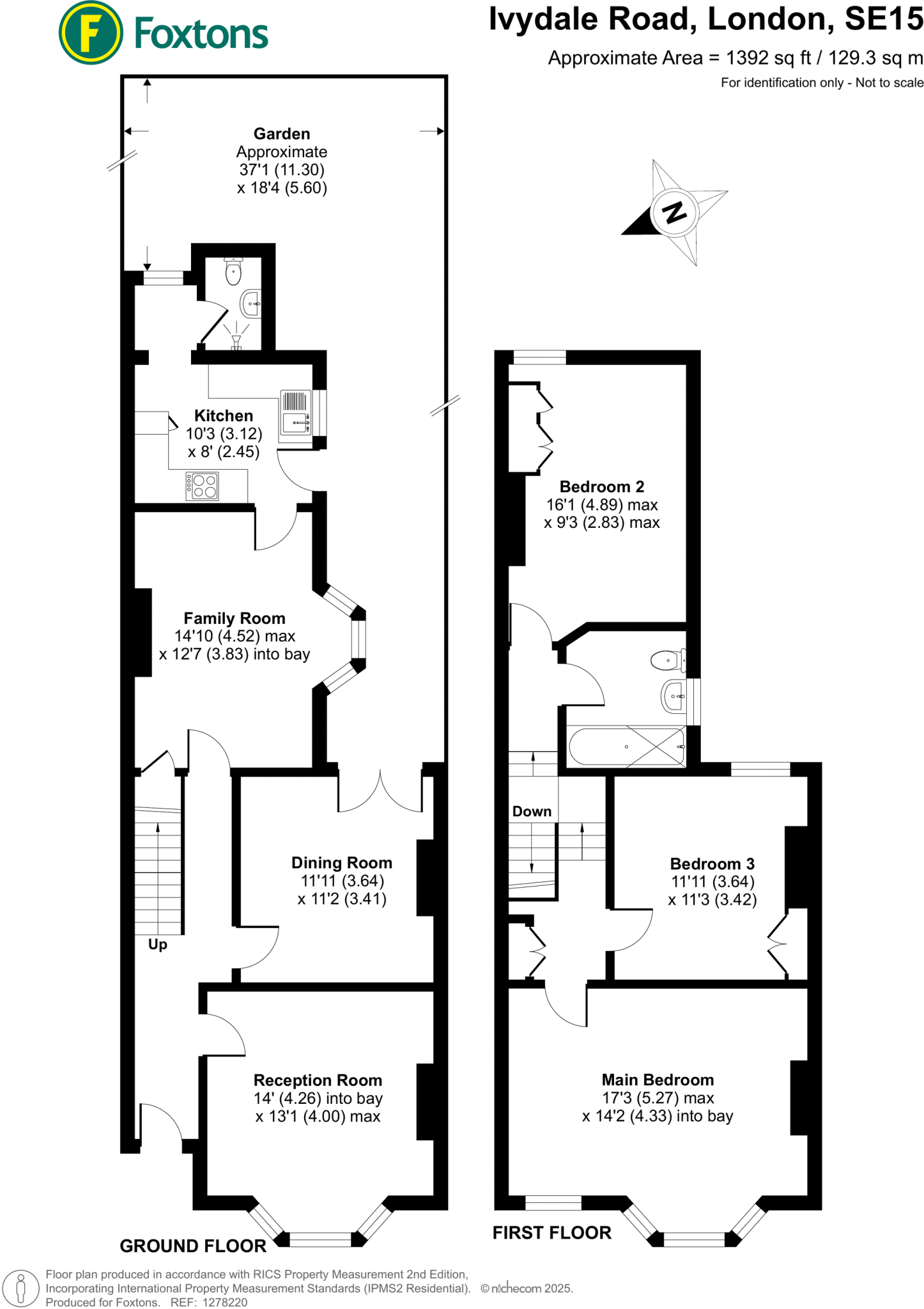
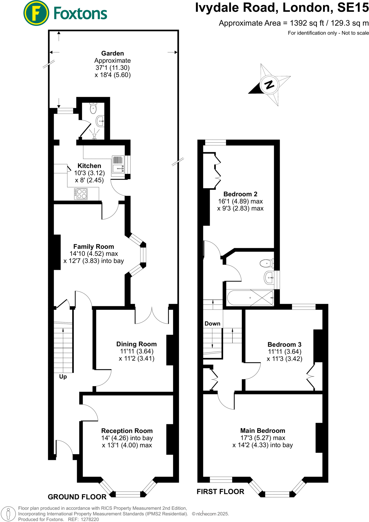
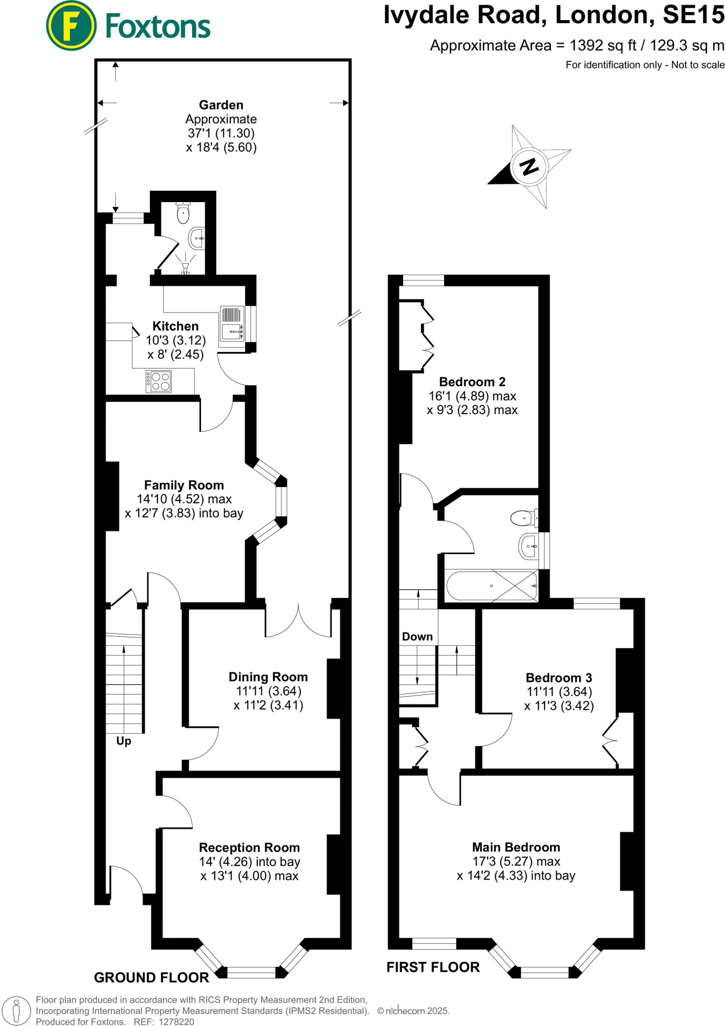
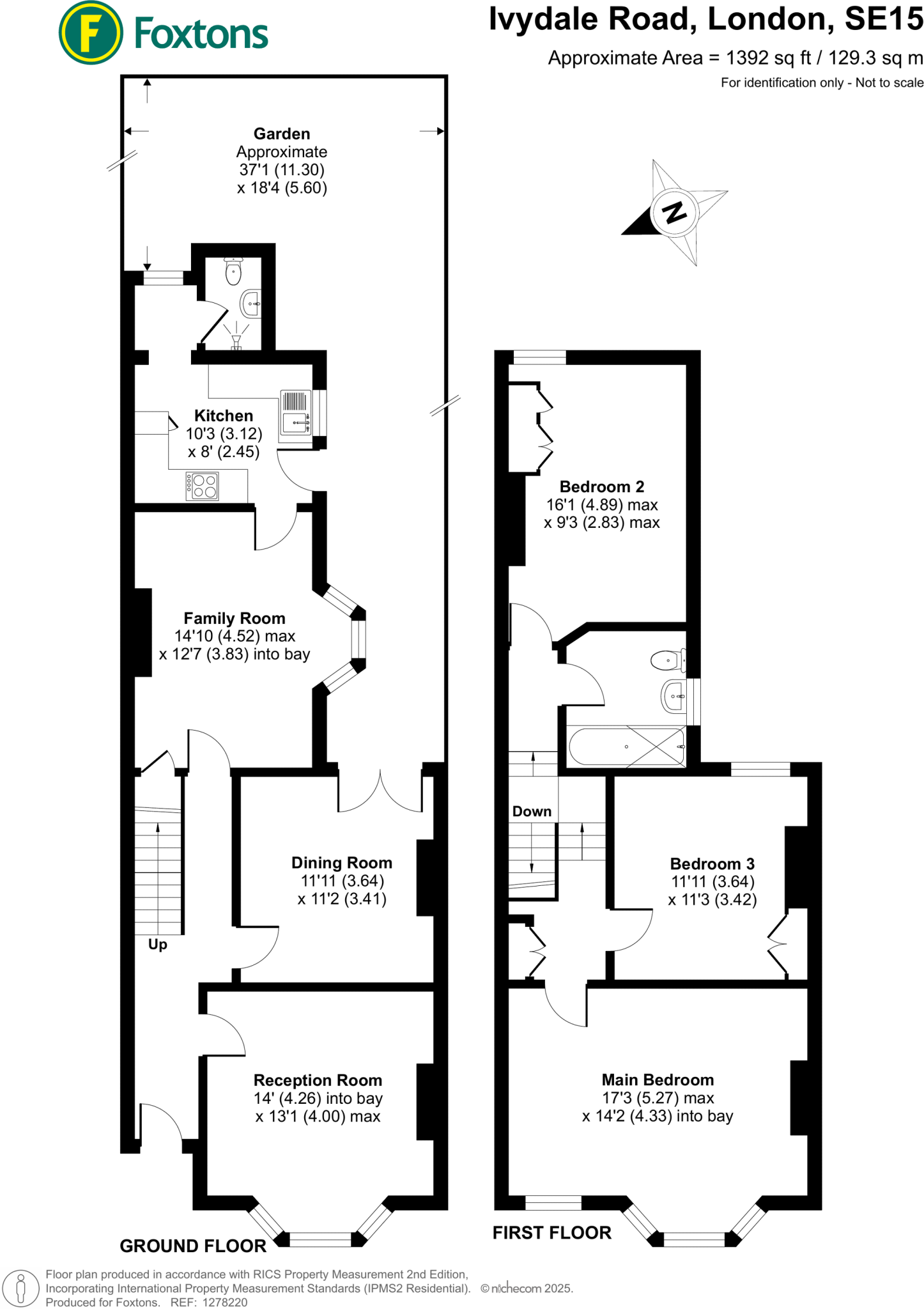
- Large overall size: approximately 1,392 sq ft
- Three bedrooms with flexible room layout
- Spacious reception room with Victorian high ceilings
- Separate dining room and modern kitchen
- Private rear garden; plot is small
- Room to extend subject to planning permission (STPP)
- Single bathroom; may be limiting for larger families
- Solid brick walls assumed uninsulated; energy upgrades likely
A spacious traditional three-bedroom mid-terrace on Ivydale Road, offering generous living space across approximately 1,392 sq ft. High ceilings and period bay-window character in the main reception combine with a separate dining room and a modern kitchen to give flexible family living. A private rear garden and room to extend (STPP) add tangible future potential.
The house sits in a quiet, established residential pocket with fast broadband, excellent mobile signal and easy access to green spaces including Peckham Rye Park and Honor Oak Park. Several well-regarded primary and secondary schools are close by, making this a solid choice for families focusing on local education and outdoor space.
Practical considerations to note: the property has a single bathroom and a relatively small plot, and the external solid brick walls are assumed to be uninsulated, so energy efficiency upgrades may be needed. Double glazing is present but the installation date is unknown. Being offered chain free, the house is well suited to buyers wanting to move quickly or to renovate and add value, particularly if planning permission for an extension is secured.
3 bedroom house for sale in Lyndhurst Grove, Peckham Rye, London, SE15 — £900,000 • 3 bed • 1 bath • 1161 ft²
3 bedroom terraced house for sale in Glenfarg Road, London, SE6 — £550,000 • 3 bed • 1 bath • 825 ft²
3 bedroom house for sale in Cheltenham Road, Nunhead, London, SE15 — £900,000 • 3 bed • 1 bath • 1022 ft²
4 bedroom terraced house for sale in Holmesley Road, London, SE23 — £975,000 • 4 bed • 2 bath • 1497 ft²
3 bedroom terraced house for sale in Ryedale, East Dulwich, SE22 — £1,075,000 • 3 bed • 2 bath • 1290 ft²
3 bedroom terraced house for sale in Ivy Road, Walthamstow, London, E17 — £700,000 • 3 bed • 1 bath • 1011 ft²










































































































































































































