Versatile layout with annexe and garage, ideal for families or rental income.
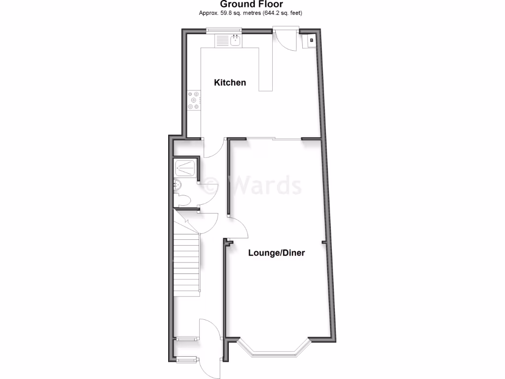
- Extended three-bedroom end-of-terrace with sizable lounge/diner
- Garden annexe with kitchen appliances and separate shower room
- Garage provides off-street parking and storage
- Small plot; rear garden is compact
- Solid brick walls presumed uninsulated, likely retrofit needed
- Unknown glazing install date; some windows may require upgrade
- Area records higher crime and local deprivation
- Convenient walk to shops, buses, and several Good/Outstanding schools
This extended three-bedroom end-of-terrace offers flexible family living with a large lounge/diner and a substantial kitchen. An attached annexe in the garden includes kitchen appliances and a shower room, providing useful rental potential, home office space, or multi-generational use. The property includes a garage, small front and rear gardens, and is a short walk from shops, schools and local transport links, with quick access to the A2/M2.
The house dates from the early 20th century and retains period character but requires updating and modernization throughout. Walls are solid brick with no assumed insulation, glazing installation date is unknown and some cosmetic and mechanical works may be needed to bring heating and services fully up to modern standards. Buyers should factor refurbishment costs into their plans.
Location is convenient for everyday amenities and several well-rated schools nearby, though the immediate area records higher crime and socioeconomic deprivation than average. The home will appeal to families seeking space and connectivity who are prepared to invest in improvement, as well as investors seeking an income stream from the annexe or a refurbished main house.
3 bedroom end of terrace house for sale in Brook Road, Northfleet, Gravesend, Kent, DA11 — £385,000 • 3 bed • 3 bath • 1305 ft²
3 bedroom terraced house for sale in Preston Road, Northfleet, Kent, DA11 — £300,000 • 3 bed • 1 bath • 811 ft²
3 bedroom end of terrace house for sale in Milroy Avenue, Northfleet, Kent, DA11 — £375,000 • 3 bed • 1 bath • 894 ft²
3 bedroom semi-detached house for sale in Waterdales, Northfleet, Kent, DA11 — £325,000 • 3 bed • 1 bath
2 bedroom end of terrace house for sale in Waterdales, Northfleet, Kent, DA11 — £270,000 • 2 bed • 1 bath • 676 ft²
3 bedroom terraced house for sale in Brook Road, Northfleet, Gravesend, DA11 — £350,000 • 3 bed • 1 bath • 927 ft²


















































