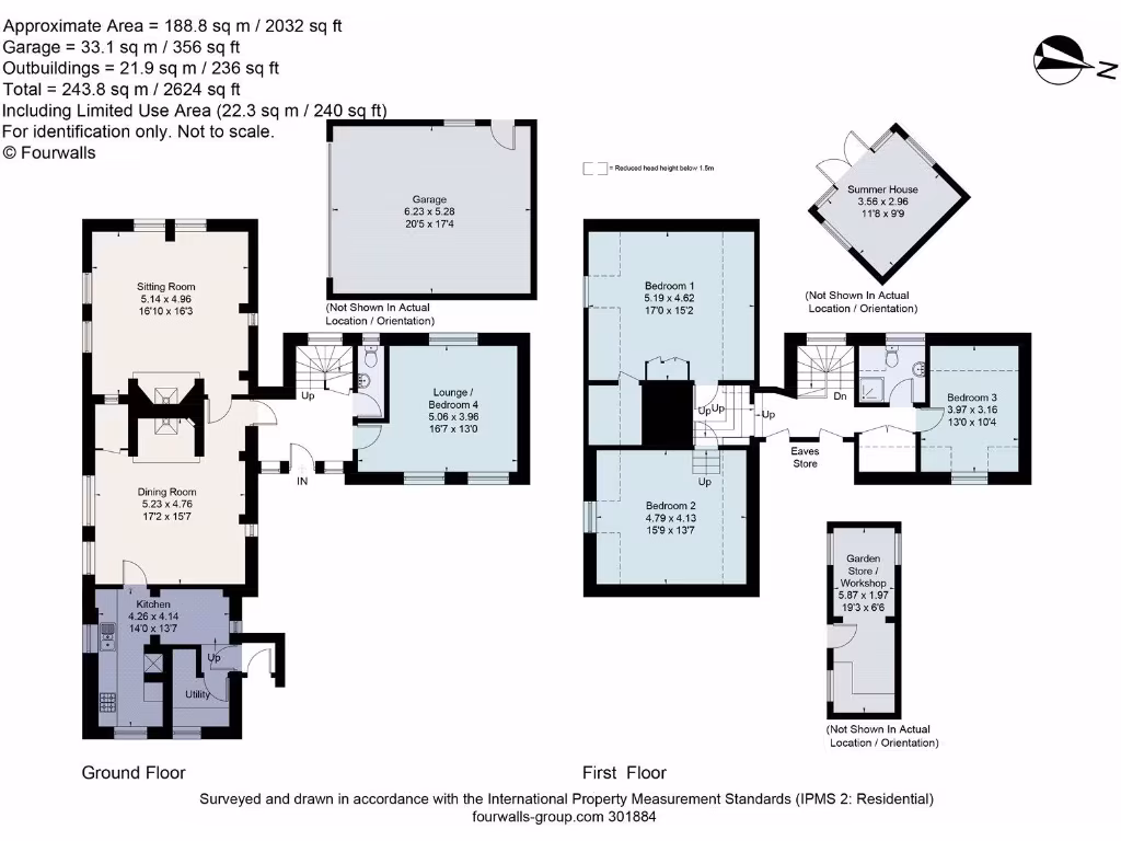
**Standout Features:**
- Historic Grade II-listed thatched cottage built in the 17th century
- Four bedrooms with the potential for versatile use
- Beautifully landscaped gardens with various seating areas
- Outbuildings including a double garage, summerhouse, workshop, and greenhouse
- Character features such as exposed beams, oak doors, and a charming fireplace
- Generous 2032 sq ft footprint providing ample living space
- Located in a desirable village near the Lincolnshire Wolds
This enchanting four-bedroom thatched cottage combines historic charm with modern convenience, making it an ideal family home or investment opportunity. Boasting considerable character with its exposed timber beams and warm brick fireplace, the space has been thoughtfully modernized while allowing for further personal touches. The property spans an impressive 2032 sq ft, featuring a cozy sitting room, a separate dining room, and versatile additional rooms that include an option for a fifth bedroom or reception space.
Externally, the generous plot is a serene retreat, complete with beautifully landscaped gardens, a secluded courtyard, and ample parking, not to mention excellent outbuildings to fulfill all your storage or workshop needs. Located in the picturesque village of Brigsley, enjoy the peace of rural life while being conveniently close to local amenities and excellent transport links. With its rich history and idyllic setting, this charming cottage offers a unique opportunity that won’t be on the market long.
4 bedroom detached house for sale in Castlethorpe Corner, Castlethorpe, North Lincolnshire, DN20 — £550,000 • 4 bed • 3 bath • 2581 ft²
3 bedroom detached house for sale in Spruce Lane, Ulceby, North East Lincs, DN39 — £375,000 • 3 bed • 2 bath • 1217 ft²
3 bedroom detached house for sale in Church Lane, Brigsley, Grimsby, Lincolnshire, DN37 — £625,000 • 3 bed • 2 bath
4 bedroom detached house for sale in Fleetway, North Cotes, DN36 — £420,000 • 4 bed • 2 bath • 1830 ft²
4 bedroom bungalow for sale in Waltham Road, Brigsley, Lincolnshire, DN37 — £525,000 • 4 bed • 2 bath • 2073 ft²
4 bedroom detached house for sale in Babbcombe, Main Road, Brigsley, Grimsby, DN37 — £425,000 • 4 bed • 2 bath • 1441 ft²














































































