**Standout Features:**
- Rare building plot in sought-after West End of Dundee
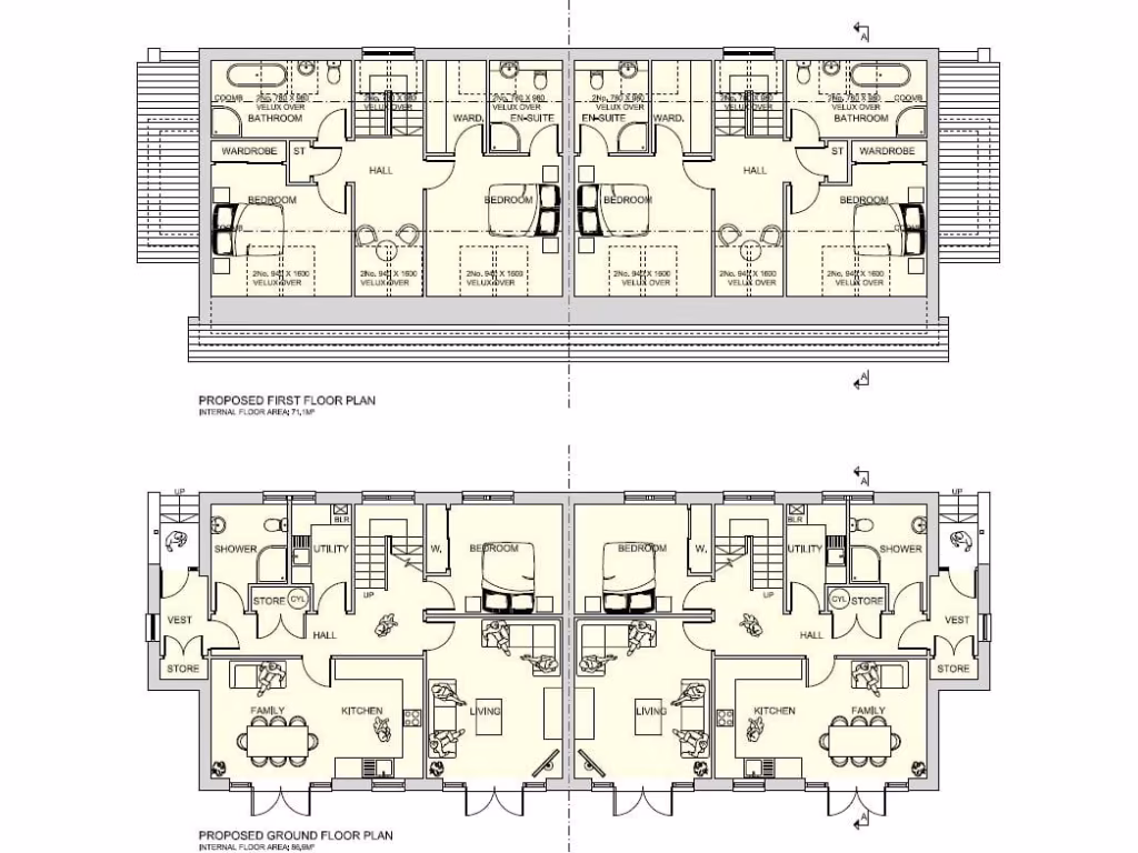
- Detailed planning permission for two large semi-detached dwellings
- Designated car parking for up to 5 vehicles
- Close proximity to institutions like Dundee University and Ninewells Teaching Hospital
- Fast broadband and excellent mobile signal
**Summary:**
Discover an exceptional opportunity to invest in this building plot in the desirable West End of Dundee, an area known for its vibrant community of students and professionals. Spanning a generous 764 square feet, this plot comes with detailed planning permission for two large semi-detached dwellings, making it ideal for a profitable development project. The location offers unrivaled access to local amenities, including grocery stores, cafes, and recreation areas, ensuring a convenient lifestyle for future residents.
While the area is fast-paced and cosmopolitan, it retains a charming atmosphere with the iconic Magdalen Green at your doorstep. Take advantage of the designated parking space for up to five vehicles, enhancing the appeal of potential developments. Whether you envision a family-oriented residence or a lucrative rental property, this plot offers flexibility and the foundation to create lasting value. Don’t miss out on this rare chance to secure a prime piece of Dundee real estate—opportunity awaits in one of the city’s most treasured neighborhoods!
Land for sale in Plot at St Helens, Perth Road, Dundee, DD2 — £15,000 • 1 bed • 1 bath
Plot for sale in Land South of Strawberrybank, Longforgan, Dundee, DD2 — £125,000 • 1 bed • 1 bath • 1559 ft²
Land for sale in Wellburn Home, Liff Road, Dundee, DD2 — POA • 1 bed • 1 bath
Plot for sale in Craigie Hill, Drumoig , St Andrews, KY16 — £225,000 • 6 bed • 3 bath
Land for sale in Site of Former Baldovan House Site of Former Baldovan House, Strathmartine, Dundee, DD3 — POA • 1 bed • 1 bath
Office for sale in Site 5, Dundee Central Waterfront, Dundee, DD1 4BY, DD1 — POA • 1 bed • 1 bath






































