E1 8ZF - 1 bed central whitechapel studio in Stable Walk, E1 8ZF

View on Property Piper

1 bedroom flat for sale in Flat 205 Perilla House, 17 Stable Walk, Whitechapel, London, E1 8ZF, E1

Summary - FLAT 205, PERILLA HOUSE, 17, STABLE WALK E1 8ZF

1 bed 1 bath Flat

Large modern studio with premium communal amenities and long lease.
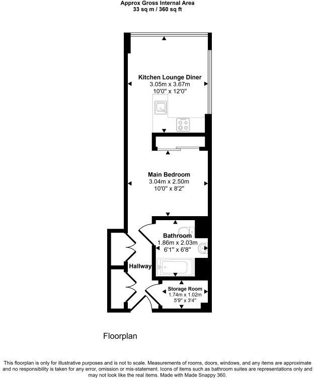
Vacant second-floor studio with divided sleeping area, approx. 491 sq ft
Extensive communal facilities: gym, spa, cinema, pool, roof terrace
Long lease: 999-year lease from 2013 (approx. 986 years remaining)
Will be sold at public auction; public notice/repossession applies
EPC rating B; modern build with good thermal performance
Located near Altab Ali Park, Aldgate East and Fenchurch Street stations
Heating via community scheme; communal service arrangements apply
Communal gardens and lift access; potential service charges to review
Set on the second floor of a modern purpose-built block in Whitechapel, this 491 sq ft studio offers a generous open-plan living space with a divided sleeping area. The flat is vacant and ready for immediate occupation or rental, and benefits from an EPC rating of B. Residents have access to extensive communal facilities including a gym, spa, cinema, pool, business lounge, roof terrace and 24-hour concierge.

The building fronts landscaped communal gardens and sits close to Altab Ali Park, with Aldgate East Underground and Fenchurch Street rail connections within easy reach. At 986 years remaining the lease is effectively long-term, and the flat’s layout and size suit a first-time buyer or investor seeking a central London pied-à-terre or lettable studio.

Important practical points: the property will be sold at public auction and is the subject of a public notice/repossession. Heating is provided via a community scheme. The flat is in a mid-rise, modern block so communal service arrangements apply; prospective buyers should consult the legal pack for full details before bidding.

Property Details

Image Descriptions

Floorplan Description

Rooms

Textual Property Features

Target Audience

AI Tags

Detected Visual Features

EPC Details

Nearby Schools

Nearest Bars And Restaurants

,,,,}

Nearest General Shops

,,}

Nearest Grocery shops

,,}

Nearest Supermarkets

,,}

Nearest Religious buildings

,,}

Nearest Medical buildings

,,,}

Nearest Airports

,}

Nearest Leisure Facilities

,,,,}

Nearest Tourist attractions

,,}

Nearest Train stations

,,,,}

Nearest Bus stations and stops

,,,,}

Nearest Hotels

,,}

Tags

Local Market Stats

AirBnB Data

Similar Properties

Meta

High Res Images

Compatible Images

Low res Images

Thumbnails

Raw Images

High Res Floorplan Images

Compatible Floorplan Images

Low res Floorplan Images

FloorplanImages Thumbnail

Raw Floorplan Images