**Standout Features:**
- Mixed-use freehold site of approximately 0.61 acres.
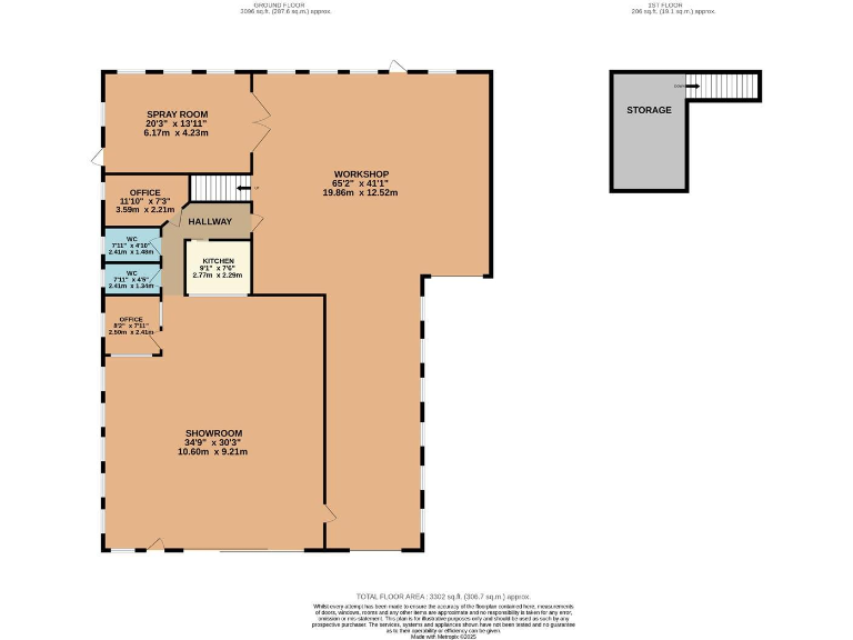
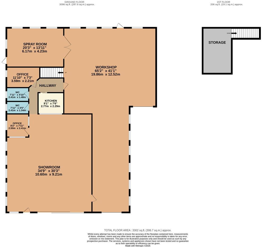
- Substantial 3,300 sq ft garage building with showroom, offices, spray room, and workshop.
- Detached 2-bedroom bungalow in need of renovation, with significant improvement and extension potential.
- Conveniently located with easy access to A14, Ipswich, and Felixstowe.
- Vacant possession, previously operated as a family-run garage business.
This expansive mixed-use property in the desirable Suffolk village of Nacton presents an exceptional opportunity for owner-occupiers, investors, or developers seeking versatile real estate. Spanning approximately 0.61 acres, this site features a prominent 3,300 sq ft garage building equipped with various functional spaces including a showroom and large workshop, ideal for automotive ventures or alternative commercial uses subject to planning permission.
Adjacent to the garage, the detached 2-bedroom bungalow offers promising potential for renovation or extension, perfect for creating a spacious family home or an attractive rental property. The generous garden space adds further appeal, allowing for outdoor enhancements. With strategic access to the A14 and strong visibility, this property embraces both residential charm and commercial viability in an affluent and peaceful environment. Given its flexibility and future potential, viewings are encouraged to fully appreciate this rare find before it’s gone!
2 bedroom detached bungalow for sale in Felixstowe Road, Nacton, Ipswich, IP10 — £875,000 • 2 bed • 1 bath • 4317 ft²
2 bedroom bungalow for sale in Mill Piece, Nacton, Ipswich, IP10 — £545,000 • 2 bed • 2 bath
4 bedroom detached bungalow for sale in Mill Piece, Nacton, IP10 — £650,000 • 4 bed • 3 bath • 1893 ft²
2 bedroom detached bungalow for sale in Mill Piece, Nacton, IP10 — £545,000 • 2 bed • 2 bath
4 bedroom detached house for sale in Felixstowe Road, Nacton, IP10 — £940,000 • 4 bed • 2 bath • 3574 ft²
5 bedroom detached house for sale in Tomline Court, Nacton, Ipswich, Suffolk, IP10 — £625,000 • 5 bed • 3 bath • 1850 ft²


























































































