Bright first-floor flat with garage and communal gardens close to town and station.
Two double bedrooms with built-in wardrobes
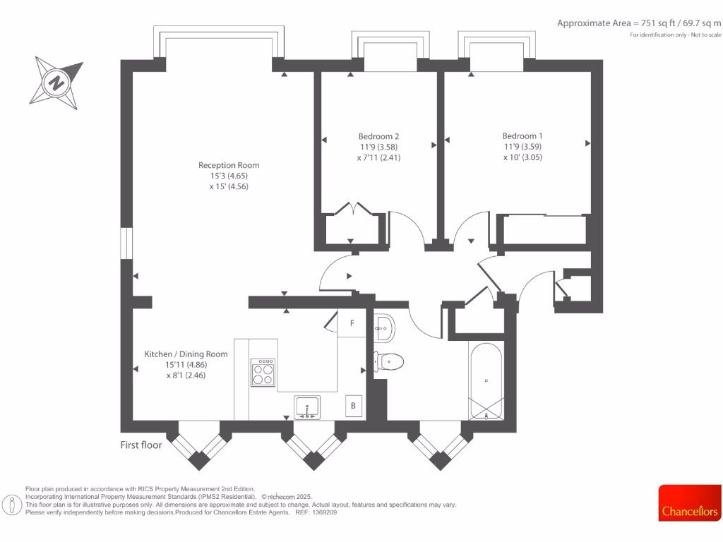
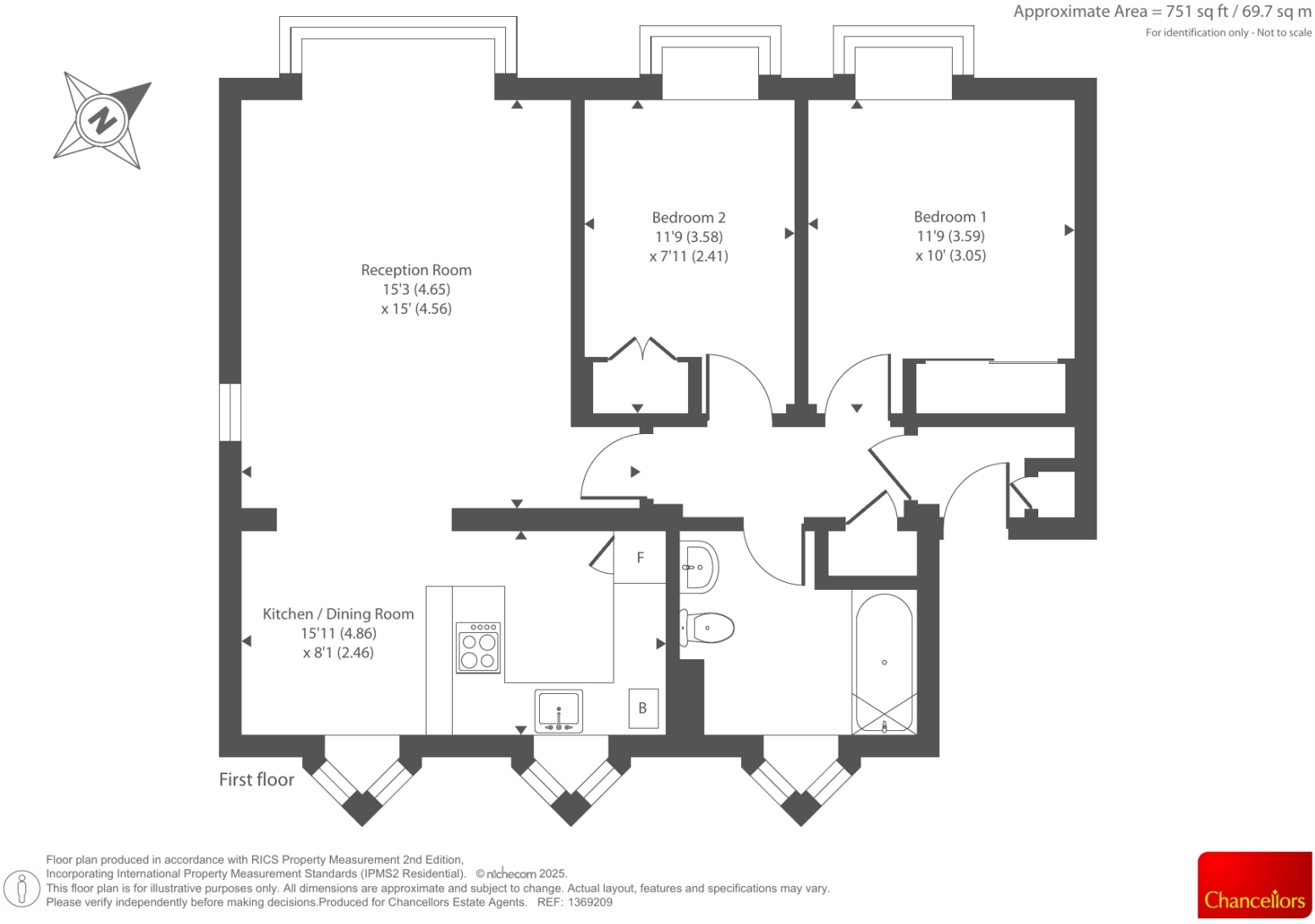
About 751 sq ft of well-planned accommodation
Triple-aspect reception room with bay window
Kitchen/breakfast room adjacent to reception
Garage included plus communal lawned gardens
Very long lease remaining (c.984 years)
Single family bathroom only; one bathroom for two bedrooms
1980s build — likely cosmetic updating desired by some buyers
Light, well-proportioned and quietly positioned, this two-bedroom first-floor apartment offers practical family living within easy reach of Henley-on-Thames town centre, the river and the station (all about 0.5 miles). The dual-aspect reception with bay window and separate kitchen/breakfast room create a generous social space for everyday life and entertaining.
Both bedrooms are doubles with built-in wardrobes, and the flat extends to about 751 sq ft of accommodation. The development includes well-kept communal lawned grounds and a private garage, useful for secure parking or storage. The property sits in a predominantly affluent area popular with professionals and families, close to good primary and secondary schools.
The building dates from the 1980s, so the layout and finishes are typical of that period; some buyers may want to carry out cosmetic updates to personalise the flat. The apartment is leasehold with a very long term remaining (around 984 years). Council tax is moderate and there is no flooding risk recorded.
2 bedroom apartment for sale in Windsor House, St Andrews Road, RG9 — £375,000 • 2 bed • 1 bath • 721 ft²
2 bedroom flat for sale in Station Road, Henley-On-Thames, RG9 — £375,000 • 2 bed • 1 bath • 742 ft²
2 bedroom apartment for sale in Phyllis Court Drive, Henley-on-Thames, Oxfordshire, RG9 — £725,000 • 2 bed • 2 bath • 900 ft²
2 bedroom apartment for sale in Meadow Road, Henley-On-Thames, RG9 — £355,000 • 2 bed • 1 bath • 777 ft²
2 bedroom apartment for sale in Meadow Road, Henley-on-Thames, Oxfordshire, RG9 — £375,000 • 2 bed • 1 bath • 803 ft²
2 bedroom apartment for sale in Phyllis Court Drive, Henley-on-Thames, Oxfordshire, RG9 — £495,000 • 2 bed • 2 bath • 1024 ft²


























































































