NN5 5BL - 3 bed victorian bay three bedroom in Glasgow Street, NN5 5BL

View on Property Piper

3 bedroom terraced house for sale in Glasgow Street, St James, Northampton, Northamptonshire, NN5

Summary - 34 GLASGOW STREET NORTHAMPTON NN5 5BL

3 bed 1 bath Terraced

Double-bay Victorian terrace with garden — family home or investor opportunity, no upward chain.
Double-bay Victorian mid-terrace, three bedrooms
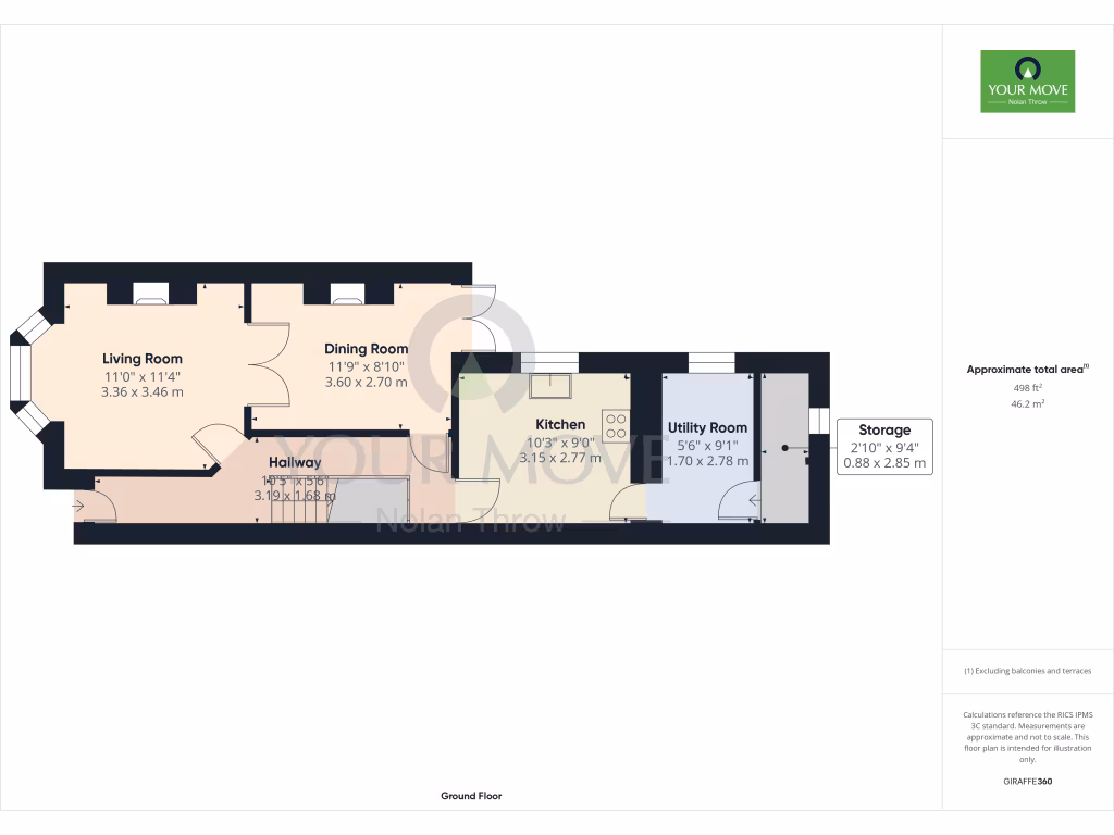
A double-bay-fronted Victorian mid-terrace offering three bedrooms, two separate reception rooms and a cellar across about 959 sq ft. The house retains period features such as bay windows, fireplaces and high ceilings, and benefits from gas central heating and majority double glazing. An enclosed rear garden provides outdoor space for a small family or a tenant.

The layout suits a growing household or a buy-to-let investor: lounge and dining room are connected by double doors, the kitchen and utility provide practical workspace, and the upstairs bathroom includes both a bath and separate shower. The property is sold with no upward chain, which can speed a purchase.

Notable practical points: the building is solid-brick and likely lacks wall insulation, so improving thermal performance would be advisable. The plot is narrow with small garden space and parking is on-street by permit only. The kitchen and some internal fittings are basic and the house will benefit from modernisation to reach contemporary standards.

This home sits in the St James/Scots Corner area close to local shops, schools and amenities, with low local crime and fast broadband — a convenient town-centre inner-suburban location. Ideal for a family seeking period character or an investor looking for a straightforward refurbishment and rental opportunity.

Property Details

Brochure Descriptions

Image Descriptions

Floorplan Description

Rooms

Textual Property Features

Target Audience

AI Tags

Detected Visual Features

EPC Details

Nearby Schools

Nearest Bars And Restaurants

,,,,}

Nearest General Shops

,,}

Nearest Grocery shops

,,}

Nearest Supermarkets

,,}

Nearest Religious buildings

,,}

Nearest Medical buildings

,,,}

Nearest Leisure Facilities

,,,,}

Nearest Tourist attractions

,,}

Nearest Train stations

,,,,}

Nearest Bus stations and stops

,,,,}

Nearest Hotels

,,}

Tags

Local Market Stats

AirBnB Data

Similar Properties

Meta

High Res Images

Compatible Images

Low res Images

Thumbnails

Raw Images

High Res Floorplan Images

Compatible Floorplan Images

Low res Floorplan Images

FloorplanImages Thumbnail

Raw Floorplan Images