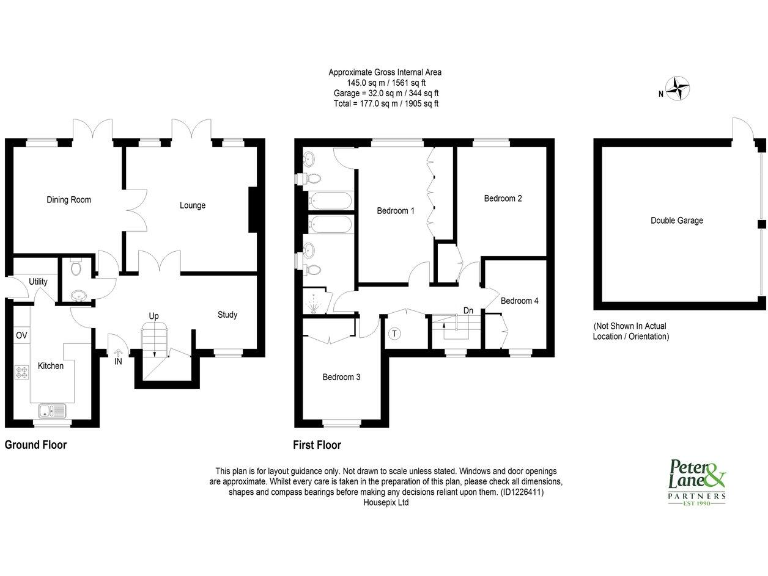
Spacious four-bedroom detached home with gated garden, double garage and open countryside views, offered chain free..
Four bedrooms including principal with en suite
Double garage and generous private driveway
Gated frontage with mature, private gardens
Stunning rear views over open countryside and paddocks
Offered chain free; easy commuting to nearby stations
Slow broadband speeds in the area
Council tax level described as quite expensive
Constructed 1996–2002; some dated fittings likely
Set on a large plot in a quiet cul-de-sac, this four-bedroom detached family home delivers roomy accommodation and long open views over paddocks. The principal bedroom includes an en suite, and the house benefits from multiple reception rooms, a kitchen with utility, and a practical layout for everyday family life.
Outside, a gated frontage leads to a generous private driveway and double garage, providing ample parking and secure storage. Mature, private gardens and a rear terrace take full advantage of the countryside aspect, creating a safe play space for children and pleasant outdoor entertaining.
Positioned for commuting, the property offers easy access to Huntingdon and St Neots railway stations. It is offered chain free, making it suitable for buyers seeking a straightforward purchase. Local schools rated Good and Outstanding are within reach, supporting family needs.
Practical considerations: broadband speeds are slow in the area and council tax is quite expensive. The build era and double glazing pre-2002 suggest some components may be dated and could benefit from updating over time. Viewing is recommended to appreciate the setting and internal space.
4 bedroom detached house for sale in The Paddocks, Offord D'arcy, St Neots, PE19 — £1,175,000 • 4 bed • 3 bath • 3500 ft²
4 bedroom detached house for sale in High Street, Offord D'arcy, St. Neots, Cambridgeshire, PE19 — £525,000 • 4 bed • 2 bath • 1480 ft²
4 bedroom detached house for sale in High Street, Offord D'Arcy, St. Neots, Cambridgeshire, PE19 — £600,000 • 4 bed • 2 bath • 1851 ft²
4 bedroom detached house for sale in Lye Close, Great Staughton, St Neots, PE19 — £500,000 • 4 bed • 2 bath • 1800 ft²
4 bedroom detached house for sale in High Street, Offord Cluny, St. Neots, PE19 — £800,000 • 4 bed • 4 bath • 2379 ft²
5 bedroom detached house for sale in Cross Farm Close, Hilton, Huntingdon, Cambridgeshire, PE28 — £800,000 • 5 bed • 2 bath • 2527 ft²






































































































