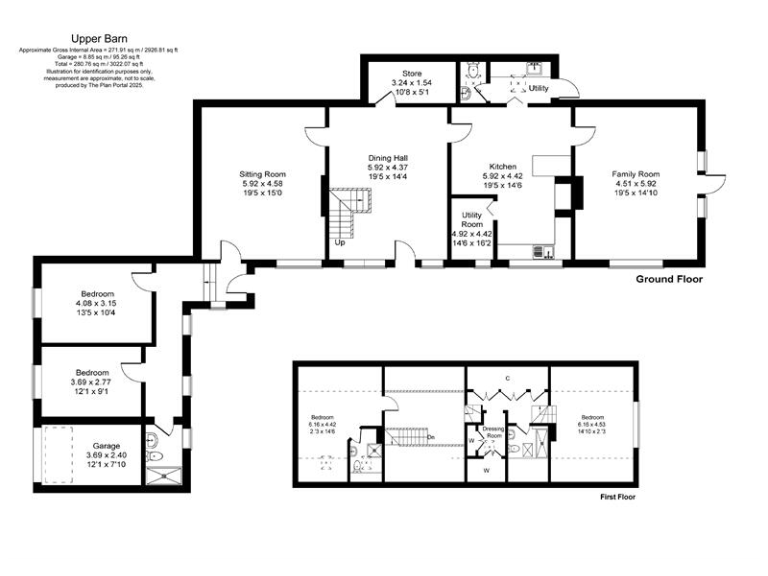
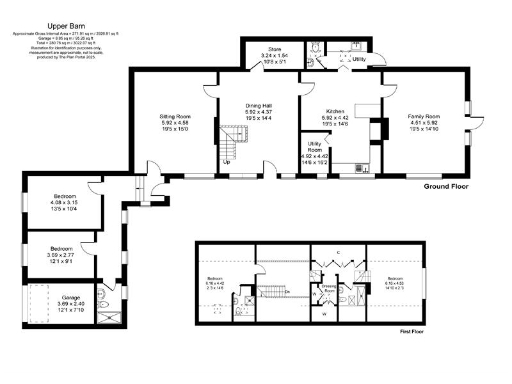
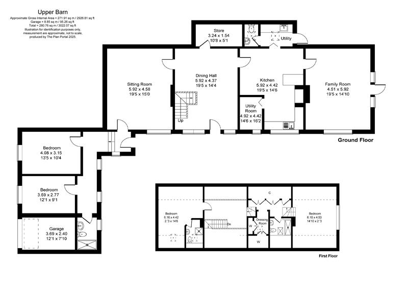
**Standout Features:**
- **4 Double Bedrooms:** Including 2 ensuites, ideal for families or guests.
- **Rural Barn Conversion:** Charming exposed beams and high ceilings throughout.
- **Large Secluded Garden:** Mature landscaping with a south-westerly aspect, perfect for entertaining.
- **Ample Parking:** Including a garage and gravelled parking bay.
- **Multiple Reception Areas:** 4 versatile spaces for family gatherings and relaxation.
- **Quiet, Exclusive Location:** Positioned at the end of a no-through road near the historic Church.
- **Conversion Potential:** Ground floor layout allows for possible annex with separate living, bedroom, and shower.
Situated within the desirable Waddesdon School catchment, this stunning barn conversion offers a blend of rustic charm and modern luxury. Encompassing 2,390 square feet, the property boasts four spacious bedrooms, two with en-suites, making it an ideal family home. Exposed beams enhance the airy interiors, especially in the grand dining hall featuring a vaulted ceiling, while the multiple reception areas flow seamlessly for both everyday living and entertaining.
The large, secluded garden adds immense value, creating a personal retreat with mature trees and a dual-tier deck for outdoor enjoyment. Nestled in a peaceful village setting, close to local amenities and historical sites, this home heralds a lifestyle steeped in tranquility.
While the property has been newly renovated, the council tax is on the higher side, and broadband speeds may be slow. However, the magnificent country views and potential to create an annex present significant opportunities, making this property a must-see for those seeking comfort, security, and potential future benefits. Don't miss out on this charming home that perfectly marries character living with a modern lifestyle—schedule your visit today!
4 bedroom barn conversion for sale in Wotton Underwood, Aylesbury, Buckinghamshire, HP18 — £1,150,000 • 4 bed • 3 bath • 2820 ft²
4 bedroom detached house for sale in Thame Road, Longwick, HP27 — £1,100,000 • 4 bed • 2 bath • 2344 ft²
4 bedroom barn conversion for sale in Fulwell Road, Westbury, Buckinghamshire, NN13 — £575,000 • 4 bed • 2 bath • 2437 ft²
4 bedroom detached house for sale in Tithe Barn, Water Stratford, MK18 — £925,000 • 4 bed • 3 bath • 2042 ft²
4 bedroom detached house for sale in Blackthorn Road, Bicester, OX27 — £775,000 • 4 bed • 2 bath • 1310 ft²
4 bedroom barn conversion for sale in Ridge View Barn, Dunton Road, HP22 4EL, HP22 — £1,500,000 • 4 bed • 4 bath • 3369 ft²






































































































