**Standout Features:**
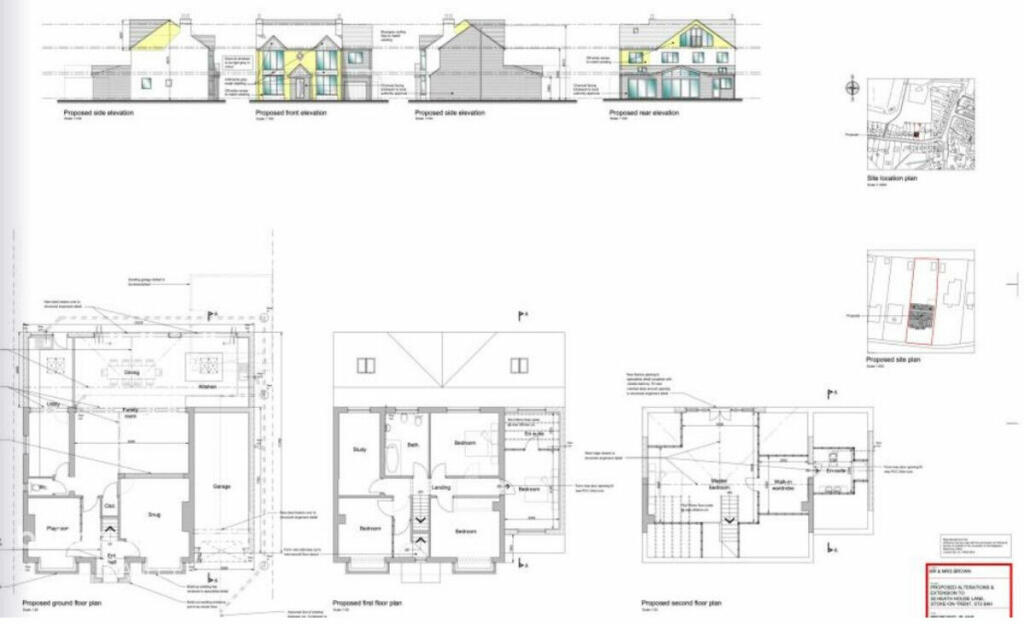
- Planning application 67206/FUL approved for a six-bedroom detached home.
- Five spacious reception rooms, utility room, and ground floor WC.
- Two en-suite bathrooms, family bathroom, and a walk-in wardrobe.
- Significant renovation potential with existing slabs and steel framework.
- Large garden and garage offer ample outdoor space.
**Positive Aspects:**
This is a remarkable opportunity for builders and investors looking to capitalize on a project with significant potential. With approved plans in place for a six-bedroom detached property, this home can be transformed into a dream residence, perfectly suited for families seeking spacious living. The large garden and five reception rooms ensure plenty of room for comfort, play, and entertaining, while the broken-down elements are ripe for customization for modern family needs.
**Potential Downsides:**
The property is currently a fixer-upper requiring substantial renovation, but the groundwork is already laid out with slabs and steels in position. The existing structure, built between 1930-1949, features industrial elements, offering a unique character but may need updates to meet modern standards.
**Conclusion:**
Located in an area with average crime rates and good local schools, this property presents an exclusive chance to mold a large family home into your vision. With fast broadband and excellent mobile connectivity, it’s well-suited for modern living. Don’t miss this rare opportunity—properties with approved planning permission in such a desirable location rarely last long on the market! Explore the planning portal for further details, and arrange a viewing to see the potential for yourself.
2 bedroom house for sale in Finstock Avenue, STOKE-ON-TRENT, Staffordshire, ST3 — £155,000 • 2 bed • 2 bath • 919 ft²
4 bedroom semi-detached house for sale in First Avenue, Kidsgrove, Stoke-on-Trent, Staffordshire, ST7 — £149,950 • 4 bed • 1 bath • 1102 ft²
2 bedroom semi-detached house for sale in 228 Finstock Avenue, Stoke-On-Trent, ST3 3LB, ST3 — £140,000 • 2 bed • 1 bath • 786 ft²
4 bedroom semi-detached house for sale in Tiber Drive, Newcastle, Staffordshire, ST5 — £155,000 • 4 bed • 2 bath • 1063 ft²
6 bedroom detached house for sale in Hamilton Road, Stoke-on-Trent, Staffordshire, ST3 — £375,000 • 6 bed • 3 bath • 2921 ft²
4 bedroom detached house for sale in Light Oaks Avenue, Light Oaks, Stoke-On-Trent, ST2 — £595,000 • 4 bed • 2 bath • 1643 ft²






















































































