CH61 3UQ - 4 bedroom detached house for sale in Thingwall Road, Irby,…

View on Property Piper

4 bedroom detached house for sale in Thingwall Road, Irby, Wirral, CH61

Summary - 132, Thingwall Road CH61 3UQ

4 bed 2 bath Detached

Large plot, views front and rear, ideal for family life and home working..
Four bedrooms: three doubles and one large single
Set on a large plot in sought-after Irby, this four-bedroom detached home balances generous family space with outdoor privacy. The property benefits from open aspects to both front and rear, three reception rooms and an expansive kitchen/breakfast room that together create flexible living for family life and home working. An integral, larger-than-usual garage and an in-and-out driveway provide abundant parking and storage; a former garage area has been converted to a useful office, and there is also a summer house and storage shed.

Practical positives include mains gas central heating, double glazing, fast broadband and a quiet, low-crime neighbourhood close to well-regarded schools and countryside walks. The flagged patio, feature pond and hidden paved patio give a choice of outdoor spaces for entertaining or quiet relaxation.

Buyers should note material considerations: the property dates from the early 20th century and has solid brick walls with assumed no cavity insulation, so thermal upgrades may be beneficial. Council Tax is band E (above average) and the site is identified as high flood risk, which will affect insurance and may require mitigation. Overall, this is an attractive family home with scope for targeted improvement and clear lifestyle benefits from its location and plot size.

Property Details

Brochure Descriptions

Image Descriptions

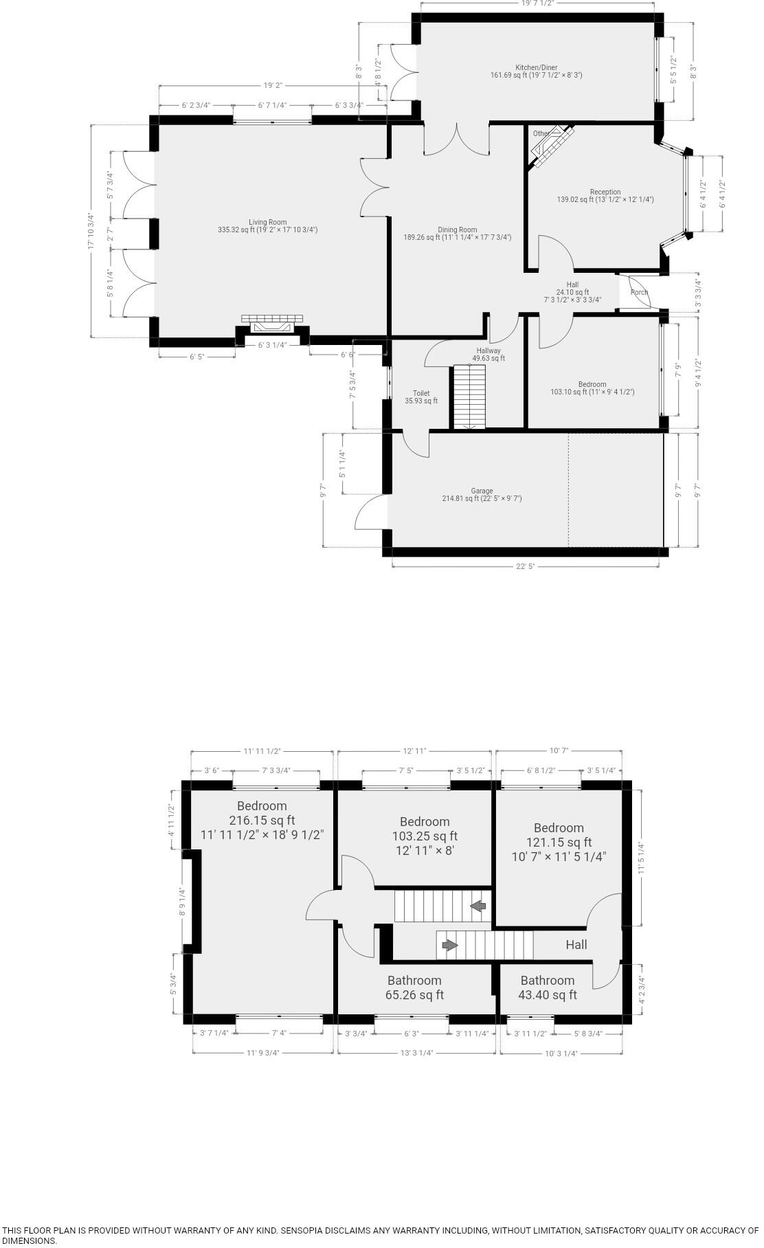
Floorplan Description

Rooms

Textual Property Features

Target Audience

AI Tags

Detected Visual Features

EPC Details

Nearby Schools

Nearest Bars And Restaurants

,,,,}

Nearest General Shops

,,}

Nearest Grocery shops

,,}

Nearest Supermarkets

,,}

Nearest Religious buildings

,,}

Nearest Medical buildings

,,,}

Nearest Airports

}

Nearest Leisure Facilities

,,,,}

Nearest Tourist attractions

,,}

Nearest Train stations

,,,,}

Nearest Bus stations and stops

,,,,}

Nearest Hotels

,,}

Tags

Local Market Stats

Similar Properties

Meta

High Res Images

Compatible Images

Low res Images

Thumbnails

Raw Images

High Res Floorplan Images

Compatible Floorplan Images

Low res Floorplan Images

FloorplanImages Thumbnail

Raw Floorplan Images