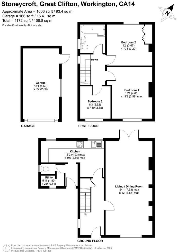
**Standout Features:**
- 3 spacious bedrooms
- Open plan lounge diner
- Recently fitted utility/W.C.
- Detached garage and off-road parking
- Generous corner plot
- Low council tax band (A)
- Nearby good-rated schools
**Potential Concerns:**
- Broadband speeds reported as slow
- Area classification reflects some deprivation
This charming semi-detached house at 13 Stoneycroft in Great Clifton is a fantastic opportunity for families and first-time buyers seeking comfort and space. The property sits on a generous corner plot, accentuating its attractive exterior and providing ample room for outdoor activities or future enhancements. Inside, the inviting open plan lounge diner serves as a perfect space for entertaining, while the neutral kitchen offers practical functionality. Three cozy bedrooms, complemented by a modern bathroom and convenient utility/W.C., ensure everyday comfort.
With the added benefits of off-road parking and a detached garage, you’ll have valuable storage or workshop options at your disposal. Located in a friendly neighborhood near reputable schools and essential amenities—including a pub, shop, and recreational areas—this home strikes an excellent balance of space, convenience, and community. However, potential buyers should note the slower broadband speeds in the area. Such a promising property will not stay on the market for long—don’t miss your chance to own this delightful family home!
3 bedroom semi-detached house for sale in Gable Avenue, Cockermouth, CA13 — £275,000 • 3 bed • 1 bath • 1142 ft²
3 bedroom semi-detached house for sale in Mabel Wood Close, Great Clifton, CA14 — £195,000 • 3 bed • 2 bath • 876 ft²
3 bedroom semi-detached house for sale in Coronation Avenue, Seaton, Workington, CA14 — £199,950 • 3 bed • 1 bath • 1133 ft²
3 bedroom detached house for sale in Loweswater Close, Cockermouth, CA13 — £300,000 • 3 bed • 3 bath • 1182 ft²
3 bedroom semi-detached house for sale in Craika Road, Dearham, Maryport, CA15 — £225,000 • 3 bed • 1 bath • 1022 ft²
4 bedroom semi-detached house for sale in Oaktree Crescent, Cockermouth, CA13 — £375,000 • 4 bed • 2 bath • 1892 ft²














































































