**Standout Features:**
- **Prime Location:** Situated in the heart of Ilkeston town center with easy access to amenities.
- **Modern Design:** Newly constructed semi-detached house featuring bay windows and a stylish facade.
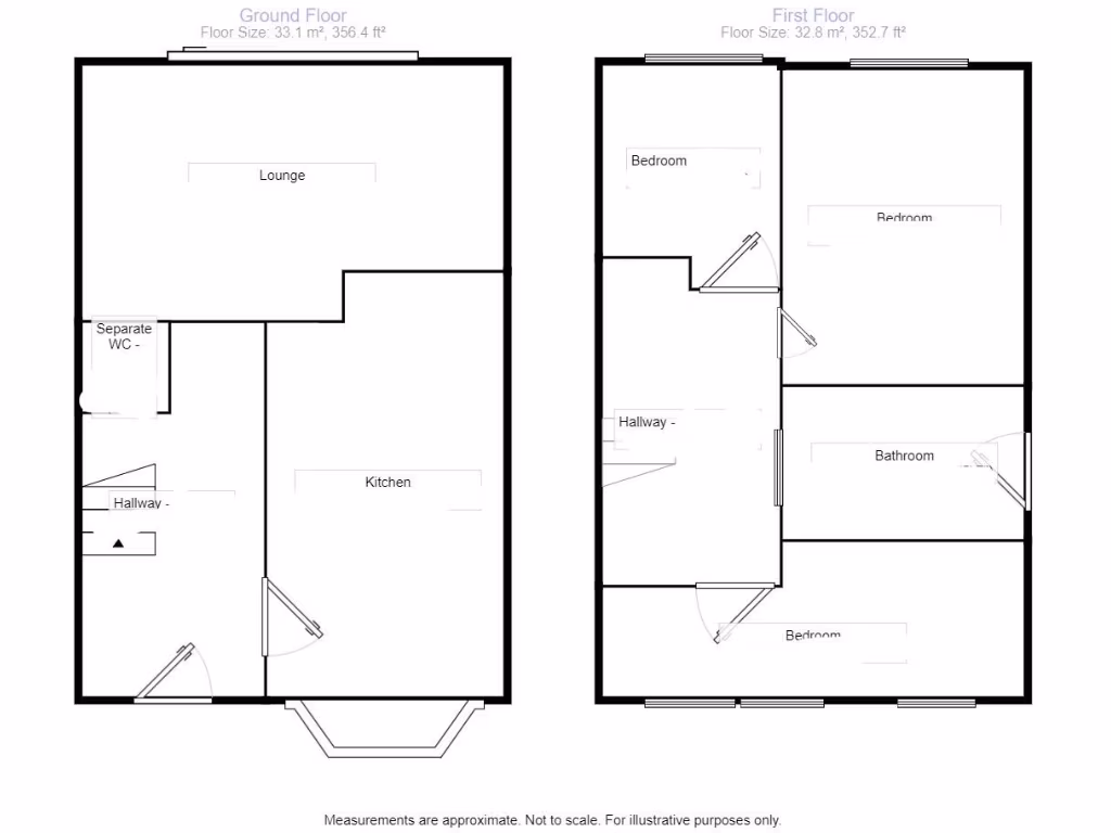
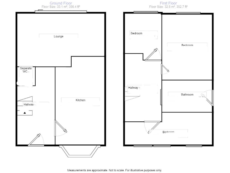
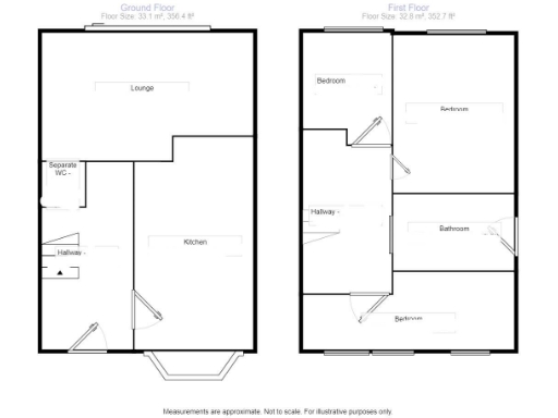
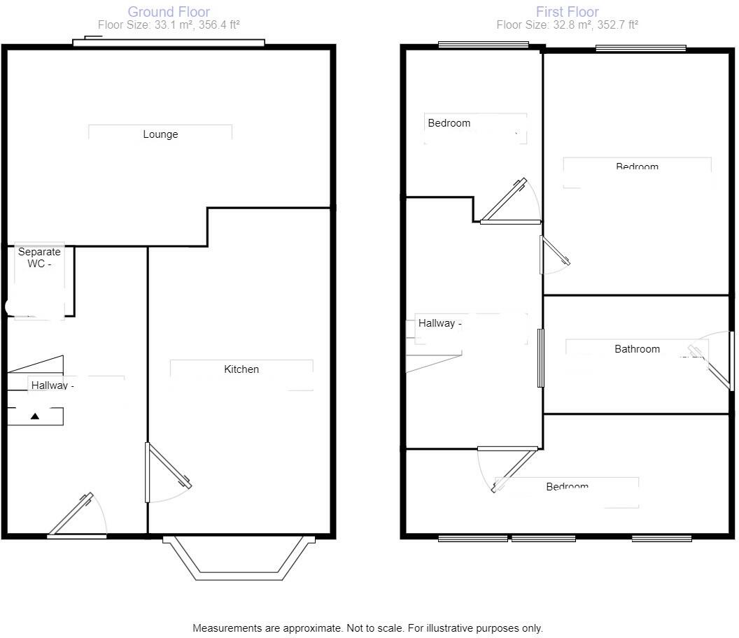
- **Spacious Layout:** L-shaped lounge with patio doors leading to a private garden; well-equipped dining kitchen with ample natural light.
- **Outdoor Space:** Rear garden with block paved patio, perfect for entertaining.
- **Parking Option:** Potential for off-street parking at the rear.
**Concerns:**
- **Small Lot Size:** While the interior is well laid out, the overall size of the property is compact, potentially limiting outdoor expansion.
- **High Crime Rate:** Be aware that the area has a very high crime rate, which may concern some buyers.
**Summary:**
Discover modern living in this charming semi-detached home, ideally located in Ilkeston’s vibrant town center. With its stylish bay-front design, this recently built residence offers an inviting L-shaped lounge, flooded with natural light from patio doors that open to an enclosed, private garden with a block paved patio—a perfect retreat for families or gatherings. The contemporary dining kitchen is both functional and aesthetically pleasing, promising enjoyable cooking experiences. Upstairs, three well-proportioned bedrooms and a family bathroom with a plumbed shower provide comfort and convenience.
This property is not only ready to move into but also boasts excellent rental potential due to its prime location near schools and amenities. Although the lot size is small and the property is set within an area of high crime rates, its accessibility and modern features position it as a prime opportunity you won’t want to miss. Act now and secure your future home in this thriving community!
3 bedroom house for sale in Factory Lane, Ilkeston Derbyshire, DE7 — £170,000 • 3 bed • 1 bath • 675 ft²
3 bedroom town house for sale in Gregory Street, Ilkeston, DE7 — £229,950 • 3 bed • 1 bath • 1122 ft²
3 bedroom semi-detached house for sale in St. Mary Street, Ilkeston, Derbyshire, DE7 — £200,000 • 3 bed • 1 bath • 1028 ft²
3 bedroom end of terrace house for sale in Brussells Terrace, Ilkeston, DE7 — £140,000 • 3 bed • 1 bath • 626 ft²
3 bedroom semi-detached house for sale in Wilmot Street, Ilkeston, DE7 — £180,000 • 3 bed • 1 bath • 1109 ft²
3 bedroom semi-detached house for sale in Flamstead Road, ILKESTON, DE7 — £170,000 • 3 bed • 2 bath • 676 ft²


































































