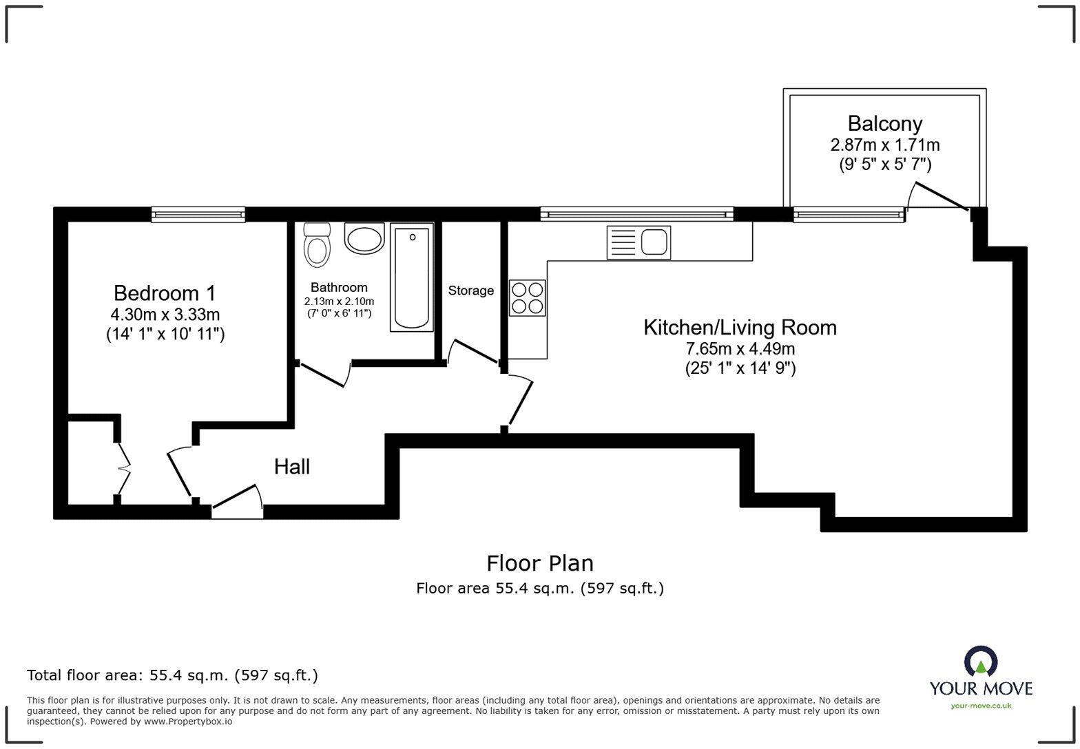
**Standout Features:**
- One-bedroom flat situated on the second floor
- Generous 600 square feet of living space
- Private balcony with urban views
- Chain-free sale with a long 116-year lease
- EPC Grade B for energy efficiency
- Excellent local transport links (New Cross Gate and Queens Road, Peckham Rail)
- Ideal for first-time buyers
- Affordable council tax band B
This fantastic one-bedroom apartment is a perfect opportunity for first-time buyers seeking a blend of comfort and city living. Nestled in the vibrant New Cross area, this 600 sq ft, chain-free property boasts a contemporary open-plan living space flooded with natural light, thanks to large windows leading onto a private balcony. The spacious bedroom and well-appointed bathroom ensure practicality, while the ample storage options enhance convenience.
With a lease of 116 years remaining and an impressive EPC Grade B, this apartment offers both long-term security and potential energy savings. Enjoy easy access to local amenities and top-rated schools, making it ideal for young families and savvy investors alike. Take advantage of this exceptional opportunity in a rapidly developing area, as listings like this don’t last long!
1 bedroom flat for sale in Avonley Road, London, SE14 — £360,000 • 1 bed • 1 bath • 538 ft²
1 bedroom apartment for sale in Avonley Road, London , SE14 — £360,000 • 1 bed • 1 bath • 427 ft²
1 bedroom flat for sale in Kender Street, New Cross, SE14 — £300,000 • 1 bed • 1 bath • 500 ft²
1 bedroom flat for sale in Liardet Street, London, SE14 — £250,000 • 1 bed • 1 bath • 490 ft²
1 bedroom flat for sale in Besson Street, London, SE14 — £320,000 • 1 bed • 1 bath • 615 ft²
1 bedroom flat for sale in Reaston Street, London, SE14 — £320,000 • 1 bed • 1 bath • 549 ft²






















































