BR3 3PR - 2 bed bright two bedroom apartment in Croydon Road, BR3 3PR

View on Property Piper

2 bedroom apartment for sale in Croydon Road, Beckenham, BR3

Summary - 403A CROYDON ROAD BECKENHAM BR3 3PR

2 bed 1 bath Apartment

Compact, commuter-ready home near stations and Beckenham High Street.
Two double bedrooms in a freshly renovated apartment
This newly renovated two-bedroom apartment on Croydon Road offers ready-to-move-in contemporary living in a well-maintained first-floor block. The open-plan kitchen/reception is finished with sleek cabinetry, integrated appliances and wood flooring, while two double bedrooms and a fully tiled bathroom provide practical, low-effort accommodation. Allocated off-street parking and gas central heating add everyday convenience.

Well placed for commuters, the flat is a short walk from Clock House and Beckenham Junction stations with direct services into central London, and Beckenham High Street, Croydon Recreation Ground and local amenities are all close by. The building dates from the 1930s–40s and benefits from double glazing and a telephone entry system.

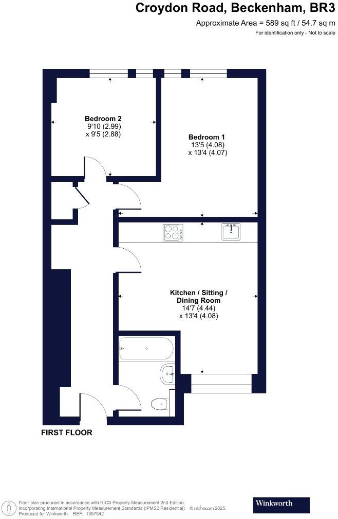
Important facts: the property is leasehold with c.110 years remaining, a service charge of around £1,500pa and ground rent of £250pa. At 589 sq ft the apartment is compact and may suit first-time buyers, downsizers or investors seeking a low-maintenance rental asset. External wall insulation is not recorded (solid brick as built), so buyers interested in energy upgrades should allow for potential works.

Property Details

Image Descriptions

Floorplan Description

Rooms

Textual Property Features

Target Audience

AI Tags

Detected Visual Features

EPC Details

Nearby Schools

Nearest Bars And Restaurants

,,,,}

Nearest General Shops

,,}

Nearest Grocery shops

,,}

Nearest Supermarkets

,,}

Nearest Religious buildings

,,}

Nearest Medical buildings

,,,}

Nearest Airports

,,}

Nearest Leisure Facilities

,,,,}

Nearest Tourist attractions

,,}

Nearest Train stations

,,,,}

Nearest Bus stations and stops

,,,,}

Nearest Hotels

,,}

Tags

Local Market Stats

AirBnB Data

Similar Properties

Meta

High Res Images

Compatible Images

Low res Images

Thumbnails

Raw Images

High Res Floorplan Images

Compatible Floorplan Images

Low res Floorplan Images

FloorplanImages Thumbnail

Raw Floorplan Images