Set in 0.25-acre grounds with double garage and secluded rear garden.
Executive individually designed four-bedroom detached residence on approx. 0.25 acres
Double garage plus large gravel driveway with extensive off-street parking
Four double bedrooms with master en-suite and substantial family bathroom
Multiple reception rooms including study — good for home working or formal living
Large summer house with light, power and log burner in private rear garden
Council Tax Band F — relatively expensive for North Kesteven residents
Broadband speeds reported as slow; mobile signal average — affects remote working
EPC energy rating currently to follow (not yet provided)
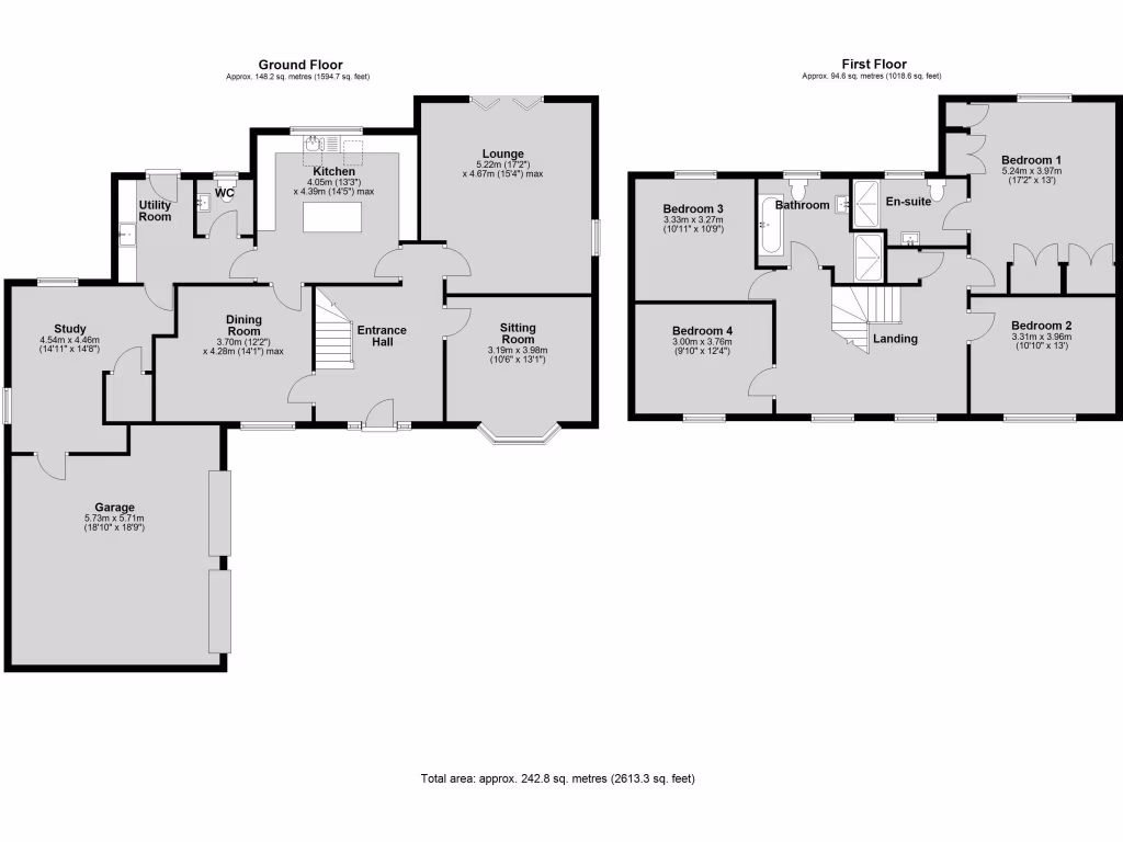
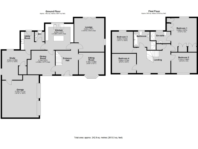
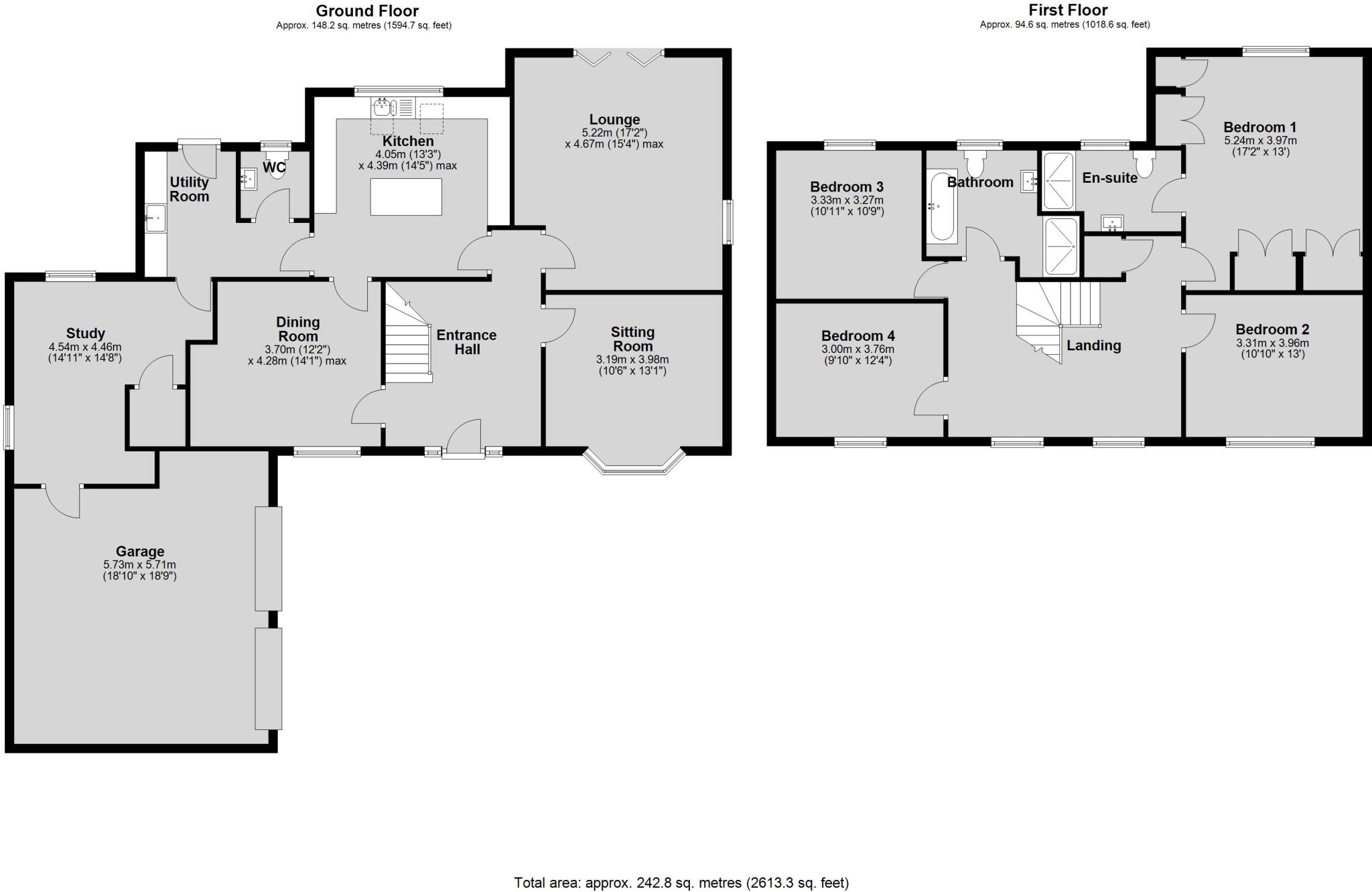
Tucked away on Station Road in Waddington, this individually designed four-bedroom house sits on approximately 0.25 acres and offers generous, well-planned accommodation across two floors. Ground floor rooms include a formal lounge with inglenook fireplace and bifold doors to the garden, a sitting room, dining room, study, and a high-spec kitchen/breakfast room with utility — spaces that suit both family life and entertaining.
Upstairs are four double bedrooms, a principal suite with bespoke fitted wardrobes and an en-suite shower, plus a spacious four-piece family bathroom. The layout provides clear separation of formal and informal living, useful for families needing home office space or multi-generational use. A striking galleried landing and exposed brick features add character throughout.
Outside, mature landscaped grounds provide privacy and seclusion. A sweeping gravel driveway serves the double garage and offers ample off-street parking. The rear garden is mainly lawn with stocked borders and a large summer house fitted with light, power and a log burner — an appealing extra for hobbies or relaxed evenings.
Practical considerations: the property sits in Council Tax band F (North Kesteven) and EPC details are to follow; broadband speeds are reported as slow and mobile signal is average. These are relevant for buyers who work from home or rely on fast connectivity. Overall this is a substantial, well-appointed residence best suited to buyers seeking an executive-style village home with generous outdoor space.
5 bedroom detached house for sale in The Sydings, Waddington, LN5 — £570,000 • 5 bed • 3 bath • 2564 ft²
5 bedroom detached house for sale in Station Road, Waddington, Lincoln, Lincolnshire, LN5 9QW, LN5 — £400,000 • 5 bed • 2 bath • 2227 ft²
5 bedroom detached house for sale in Station Road, Waddington, Lincoln, Lincolnshire, LN5 — £650,000 • 5 bed • 4 bath • 3027 ft²
4 bedroom detached house for sale in Grantham Road, Waddington, Lincoln, LN5 — £350,000 • 4 bed • 2 bath • 1181 ft²
5 bedroom detached house for sale in Neareys Close, Waddington, LINCOLN, LN5 — £650,000 • 5 bed • 4 bath • 2541 ft²
4 bedroom detached house for sale in Grantham Road, Waddington, Lincoln, LN5 — £595,000 • 4 bed • 2 bath • 2276 ft²


















































































































































