Large plot, garage and annex — scope to modernise and add value.
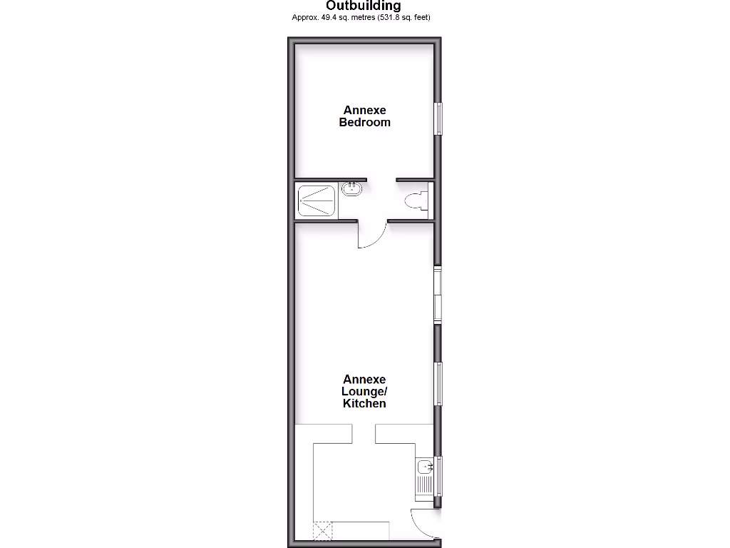
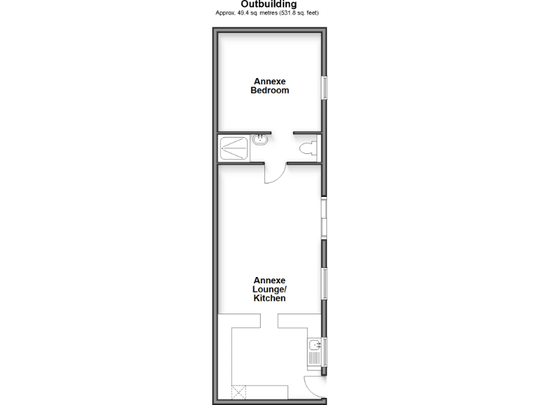
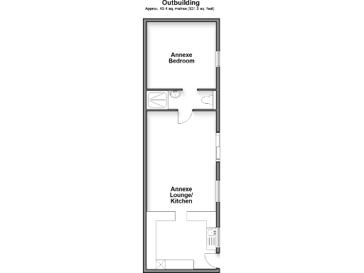
Three bedrooms plus self-contained annexe for guests or rental income
Set in St Mary’s Bay, this three-bedroom semi-detached bungalow occupies a large plot with a garage, off-road parking and a generous rear garden. The main living room is long and bright, with a conservatory adding extra space. A self-contained annexe at the back offers guest accommodation or potential rental income, subject to necessary consents.
The property is offered for sale by Modern Auction (no onward chain) so buyers should note the reservation fee and auction terms in the buyer information pack. The bungalow requires renovation and personal decoration throughout, presenting a clear opportunity to modernise and add value for an owner-occupier or investor comfortable with a refurbishment project.
Practical points: the home is freehold, on mains gas with a conventional boiler and radiators, double glazing (install date unknown), very low flood risk and affordable council tax. Broadband speeds are slow locally and the area is classified as having higher deprivation indicators; however the village setting, nearby beach and good local schools add strong lifestyle appeal.
This property will suit buyers looking for space and scope to improve in a peaceful coastal location — families wanting room and garden, or investors seeking a refurbishment project with an annexe income prospect. Read the auction pack carefully and complete your own due diligence before bidding.
2 bedroom detached bungalow for sale in Links Crescent, St. Mary's Bay, Romney Marsh, Kent, TN29 — £230,000 • 2 bed • 1 bath • 448 ft²
3 bedroom detached bungalow for sale in Poplar Lane, Lydd, Kent, TN29 — £240,000 • 3 bed • 1 bath • 527 ft²
2 bedroom detached bungalow for sale in Seaway Gardens, St Mary's Bay, Romney Marsh, Kent, TN29 — £350,000 • 2 bed • 2 bath • 926 ft²
2 bedroom bungalow for sale in Maple Drive, St. Marys Bay, TN29 — £325,000 • 2 bed • 1 bath • 1539 ft²
2 bedroom bungalow for sale in Links Crescent, Romney Marsh, TN29 — £260,000 • 2 bed • 1 bath • 773 ft²
3 bedroom bungalow for sale in Links Crescent, St. Marys Bay, Romney Marsh, Kent, TN29 — £280,000 • 3 bed • 1 bath • 771 ft²










































































