Chain-free three-bed terrace with garden, Mendip views and renovation potential near Glastonbury Tor.
Chain-free three-bedroom terrace in elevated, secluded position
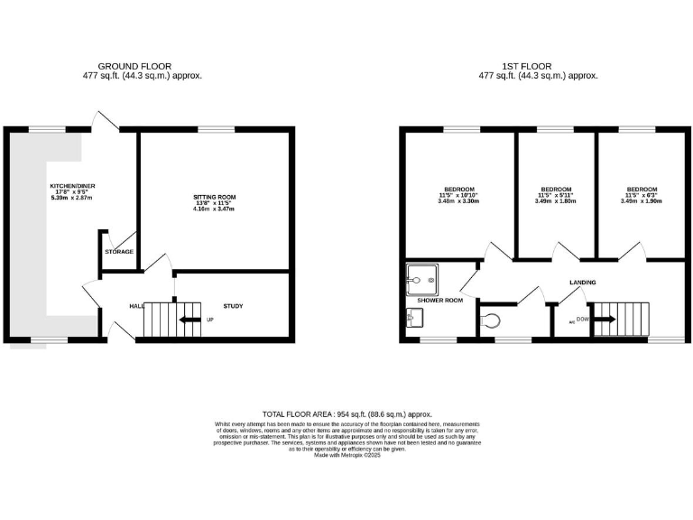
Set on an elevated, secluded plot near Glastonbury Tor, this chain-free three-bedroom terrace offers clear scope for improvement and value. The layout includes a well-proportioned kitchen with stable door to a westerly garden, a separate sitting room and a handy study area — practical spaces for everyday family living or working from home.
The rear garden provides pleasant views towards the Mendip Hills and catches evening sun. Internally the property requires modernisation: the kitchen is dated and the bathroom will benefit from updating. At 954 sq ft and with three bedrooms, the house is a sensible size for a first purchase or a buy-to-let opportunity once renovated.
Location strengths include walking access to local shops, good primary and secondary schools nearby, and proximity to West Mendip Community Hospital. Note the area records above-average crime and wider local deprivation indicators; buyers should consider long-term renovation plans and budget for works. Freehold with council tax band B and no onward chain make the purchase straightforward for a buyer ready to refurbish.
3 bedroom terraced house for sale in Old Wells Road, Glastonbury, BA6 — £200,000 • 3 bed • 1 bath • 666 ft²
3 bedroom end of terrace house for sale in Selwood Road, Glastonbury, BA6 — £200,000 • 3 bed • 1 bath • 583 ft²
3 bedroom house for sale in Breynton Road, Glastonbury, BA6 — £275,000 • 3 bed • 1 bath • 633 ft²
3 bedroom terraced house for sale in Helyar Close, Glastonbury, BA6 — £260,000 • 3 bed • 1 bath • 649 ft²
3 bedroom terraced house for sale in Bere Lane, Glastonbury, BA6 — £230,000 • 3 bed • 1 bath • 889 ft²
3 bedroom terraced house for sale in Cottle Close, Glastonbury, Somerset, BA6 — £235,000 • 3 bed • 1 bath • 870 ft²


































