Turnkey lower-floor flat with long lease and private outdoor space ideal for first buyers.
Generous double bedroom with period character
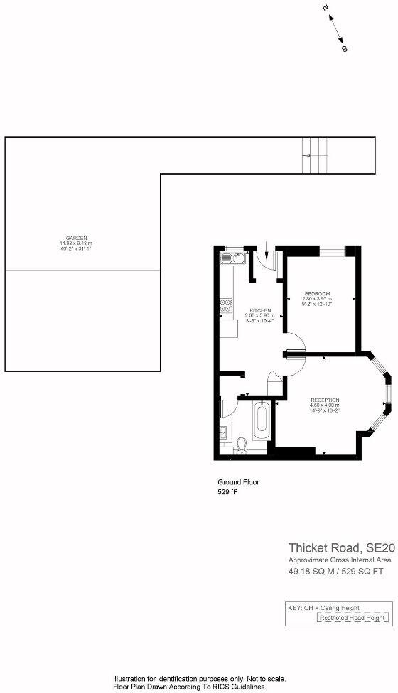
A well-presented one-bedroom lower-ground conversion set in a Victorian semi-detached townhouse, this flat combines period character with a modern finish. The separate reception room's large bay window draws plentiful natural light, while a brand-new shaker-style eat-in kitchen offers contemporary convenience for everyday living. Underfloor-heated bathroom tiling, new hardwood floors and recent damp-proofing complete a turnkey interior.
Outside, the property benefits from its own front door and a private garden — a rare asset at this price point in SE20. Commuters will appreciate easy access to Crystal Palace, Anerley and Penge West stations, plus immediate proximity to Crystal Palace Park, independent cafés and local shops. Broadband and mobile signals are strong, and council tax is described as affordable.
Practical strengths include a very long lease (986 years) and share of freehold, mains gas heating with a boiler and radiators, and a modest service charge. The flat is newly renovated and ready to move into, offering clear short-term rental or owner-occupier potential in an improving area.
Notable concerns are factual: the neighbourhood records above-average crime and higher area deprivation metrics, and the building’s original solid brick walls are assumed to have no insulation. The apartment is modest in size (about 529 sq ft) and the kitchen is compact, which may limit some layout options. Service charge is £1,460 (average).
1 bedroom apartment for sale in Thicket Road, London, SE20 — £300,000 • 1 bed • 1 bath • 499 ft²
2 bedroom apartment for sale in Thicket Road, Anerley, London, SE20 — £575,000 • 2 bed • 2 bath • 768 ft²
2 bedroom apartment for sale in Thicket Road, Anerley, London, SE20 — £550,000 • 2 bed • 1 bath • 847 ft²
1 bedroom apartment for sale in Castledine Road, London, SE20 — £275,000 • 1 bed • 1 bath • 557 ft²
1 bedroom flat for sale in Anerley Road, Anerley, London, SE20 — £225,000 • 1 bed • 1 bath • 415 ft²
2 bedroom flat for sale in Mosslea Road, SE20 — £450,000 • 2 bed • 1 bath • 658 ft²






































































