**Standout Features:**
- Smart freehold cottage within the scenic Kenegie Manor holiday park
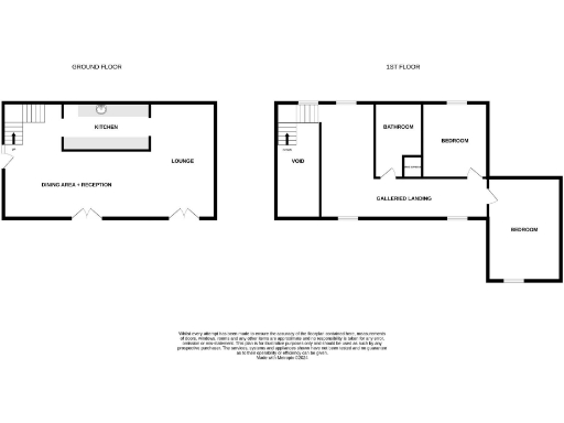
- Spacious open-plan ground floor with zoned lounge and dining areas
- Fully equipped modern kitchen
- Two generously sized double bedrooms and a galleried landing
- Private garden area for relaxation or outdoor enjoyment
- Rural location near Penzance, perfect for nature lovers
- Low crime area, ideal for secure lock-up-and-leave holidays
- Potential for year-round holiday rentals
**Concise Property Summary:**
Discover your ideal retreat with this charming 2-bedroom cottage nestled in the picturesque Kenegie Manor holiday park. Boasting a generous open-plan layout, the ground floor features distinct lounge and dining areas, complemented by a well-appointed modern kitchen. Upstairs, you’ll find two spacious double bedrooms, a bathroom, and an attractive galleried landing that adds character and space.
The property’s large private garden presents a tranquil spot for entertaining or unwinding in nature, while its rural setting ensures peace and security. With excellent mobile signal and located just a short distance from Penzance and the coast, this cottage makes for an excellent lock-up-and-leave holiday escape or investment opportunity. Don’t miss out on this unique freehold property—ideal for families, retirees, and investors seeking a slice of Cornwall's beauty. Embrace the chance for year-round holiday enjoyment!
Campsite holiday village for sale in Kenegie Manor Apartment, Gulval, Penzance, Cornwall, TR20 8YN, TR20 — £200,000 • 1 bed • 1 bath • 1199 ft²
2 bedroom semi-detached house for sale in Old Court, Kenegie Manor, TR20 8YN, TR20 — £85,000 • 2 bed • 1 bath • 398 ft²
2 bedroom bungalow for sale in The Park, Gulval, Penzance, Cornwall, TR20 — £60,000 • 2 bed • 1 bath • 360 ft²
2 bedroom terraced house for sale in Kenegie Manor, Gulval, TR20 8YN, TR20 — £80,000 • 2 bed • 1 bath • 516 ft²
3 bedroom terraced house for sale in Kenegie Manor Holiday Park, Gulval, TR20 8YN, TR20 — £140,000 • 3 bed • 2 bath • 850 ft²
2 bedroom terraced house for sale in Old Court, Kenegie Manor, Gulval, TR20 8YN, TR20 — £82,500 • 2 bed • 1 bath • 506 ft²






























































