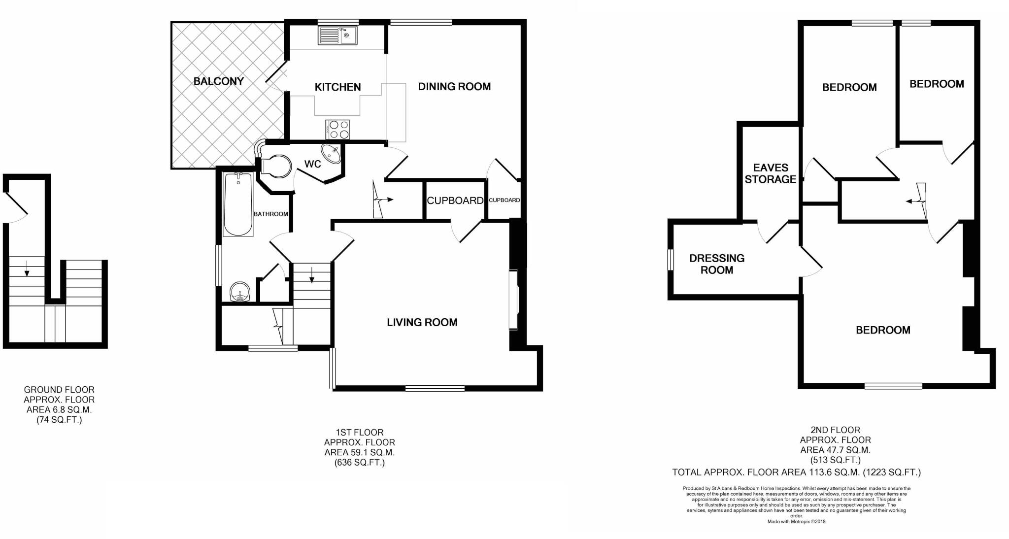
Three-bedroom Grade II conversion with roof terrace, 0.3 miles to St Albans City station..
- Grade II listed Edwardian conversion with character features
- Over 1,200 sq ft split-level three-bedroom accommodation
- Private roof terrace; 0.3 miles to St Albans City station
- Refitted kitchen/diner; principal bedroom with dressing room
- Leasehold with c.85 years remaining; service charge c.£2,310
- Energy Rating D and likely solid brick walls, limited insulation
- Single family bathroom plus separate WC
- Listed status may restrict alterations and complicate works
Set within a Grade II listed Edwardian conversion, this split-level three-bedroom flat offers more than 1,200 sq ft of characterful living space just 0.3 miles from St Albans City station. High ceilings, feature fireplaces and a private roof terrace give the apartment a strong period feel alongside a recently refitted kitchen/diner that suits modern family life.
The layout works well for a family or professionals who need separate living and dining space; the principal bedroom includes a walk-in dressing room and there is generous storage across the split levels. Local schools are highly regarded and St Albans city centre is a short walk away, making daily life convenient for commuters and families.
Buyers should note material details: the property is leasehold with c.85 years remaining, an annual service charge around £2,310 and a modest ground rent of £70. Its Grade II listed status preserves character but can complicate alterations and repairs. Energy rating D and solid brick walls (likely uninsulated) mean running costs may be higher than modern equivalents.
This apartment suits purchasers seeking spacious period accommodation close to transport and schools, who accept the responsibilities of listed ownership and the practicalities of a shorter lease and above-average service charges.
 2 bedroom apartment for sale in Lemsford Road, St. Albans, Hertfordshire, AL1 — £375,000 • 2 bed • 1 bath • 548 ft²
 2 bedroom apartment for sale in Lemsford Road, St. Albans, Hertfordshire, AL1 — £375,000 • 2 bed • 1 bath • 548 ft² 2 bedroom apartment for sale in Lemsford Road, St. Albans, Hertfordshire, AL1 — £350,000 • 2 bed • 1 bath • 646 ft²
 2 bedroom apartment for sale in Lemsford Road, St. Albans, Hertfordshire, AL1 — £350,000 • 2 bed • 1 bath • 646 ft² 2 bedroom apartment for sale in Charrington Place, St. Albans, Hertfordshire, AL1 — £450,000 • 2 bed • 2 bath • 773 ft²
 2 bedroom apartment for sale in Charrington Place, St. Albans, Hertfordshire, AL1 — £450,000 • 2 bed • 2 bath • 773 ft² 1 bedroom apartment for sale in Sandridge Road, St. Albans, Hertfordshire, AL1 — £235,000 • 1 bed • 1 bath • 362 ft²
 1 bedroom apartment for sale in Sandridge Road, St. Albans, Hertfordshire, AL1 — £235,000 • 1 bed • 1 bath • 362 ft² 2 bedroom apartment for sale in Sanders Place, Camp Road, St. Albans, Hertfordshire, AL1 — £400,000 • 2 bed • 2 bath • 777 ft²
 2 bedroom apartment for sale in Sanders Place, Camp Road, St. Albans, Hertfordshire, AL1 — £400,000 • 2 bed • 2 bath • 777 ft² 2 bedroom apartment for sale in Bakers Close, St. Albans, Hertfordshire, AL1 — £360,000 • 2 bed • 2 bath • 691 ft²
 2 bedroom apartment for sale in Bakers Close, St. Albans, Hertfordshire, AL1 — £360,000 • 2 bed • 2 bath • 691 ft²










































































