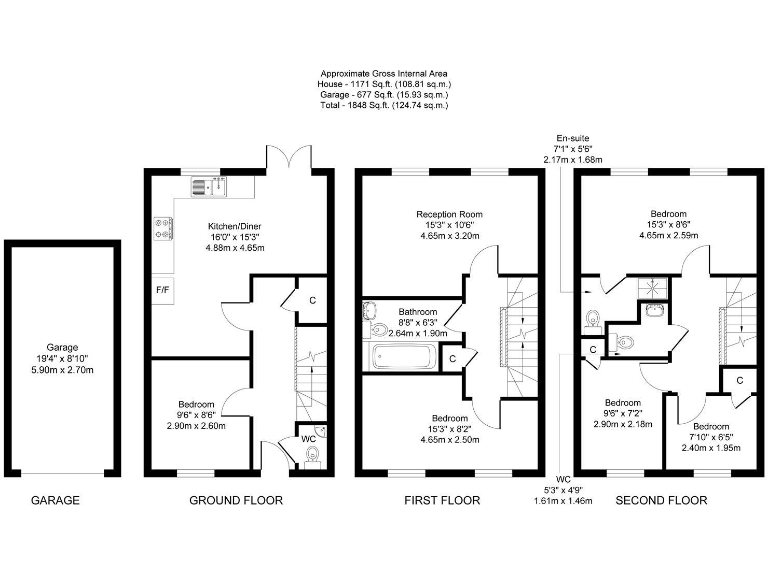
**Standout Features:**
- Spacious three-storey mid-townhouse
- Four to five flexible bedrooms
- First-floor lounge for comfortable family gatherings
- Modern kitchen/diner with French doors to the garden
- Two W.C.s, ensuite shower room, and family bathroom
- Good-sized rear garden, driveway, and garage
- Chain-free, offering a quick move-in opportunity
- Convenient cul-de-sac location
**Summary:**
This modern three-storey townhouse in a tranquil cul-de-sac is designed for spacious living, making it an ideal choice for families or investors seeking rental potential. With four to five versatile bedrooms, a first-floor lounge perfect for family gatherings, and a modern kitchen/diner featuring French doors leading to a sizeable rear garden, it seamlessly blends functionality and comfort. Two W.C.s, an ensuite shower room, and a well-appointed family bathroom provide convenience for busy mornings.
While the overall area is noted for high crime rates and levels of deprivation, the home itself offers a secure haven. The presence of a driveway and garage adds to the practicality of this property, allowing ample parking and storage. With no upward chain, you can move in without delay and start creating memories in your new home. This property won’t last long in today’s market—don’t miss the chance to make it yours!
3 bedroom semi-detached house for sale in Stanhope Avenue, Nottingham, NG5 — £230,000 • 3 bed • 2 bath • 905 ft²
3 bedroom semi-detached house for sale in Lauriston Drive, NOTTINGHAM, NG6 — £210,000 • 3 bed • 1 bath • 905 ft²
4 bedroom town house for sale in Bulwell Lane, Nottingham, NG6 — £255,000 • 4 bed • 3 bath • 1225 ft²
4 bedroom terraced house for sale in Highbury Avenue, Bulwell, NG6 — £250,000 • 4 bed • 2 bath • 1184 ft²
4 bedroom town house for sale in Bursar Way, Long Eaton, Derbyshire, NG10 4AT, NG10 — £275,000 • 4 bed • 2 bath • 880 ft²
4 bedroom terraced house for sale in Breconshire Gardens, Nottingham, Nottinghamshire, NG6 — £265,000 • 4 bed • 2 bath • 322 ft²


































































