**Property Highlights:**
- **Location:** Stunning waterside townhouse in Horning, NR12
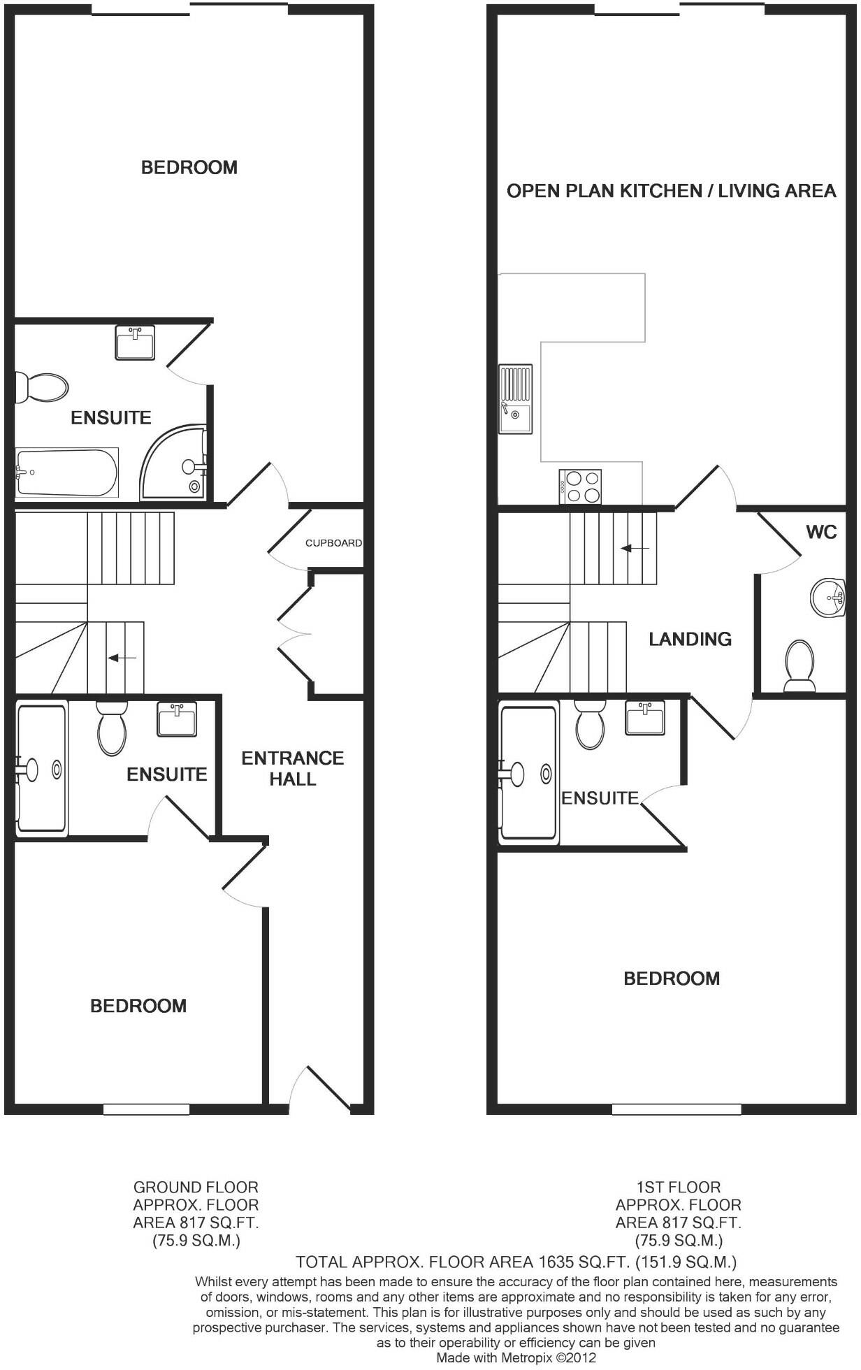
- **Bedrooms:** 3 spacious double bedrooms, each with en-suite
- **Living Space:** Expansive open-plan first-floor layout
- **Features:** Contemporary high-gloss kitchen, private balcony with water views, and direct water access
- **Parking & Mooring:** Off-road parking and private 17ft mooring
- **Ambiance:** Located in a highly regarded marina setting near the River Bure
Discover serene living in this impressive waterside townhouse, perfect for families, holidaymakers, or investors seeking a high-spec, low-maintenance property. Boasting three spacious double bedrooms—with the convenience of en-suite facilities for each—this home allows for both comfort and privacy. The standout feature is the large open-plan living area on the upper level, seamlessly connecting a contemporary kitchen and dining space to an inviting private balcony where you can unwind while enjoying picturesque water views.
Offering the ideal blend of modern living and tranquil surroundings, this property is set within a highly regarded marina, only a short walk from the charming village center of Horning. With a private 17ft mooring at your doorstep, it is perfectly positioned for boating enthusiasts. However, potential buyers should note that electric storage heating is the main heating source, which may require consideration for energy efficiency. This home offers an exceptional lifestyle opportunity—don't miss your chance to make it your own!
2 bedroom town house for sale in Horning, NR12 — £275,000 • 2 bed • 1 bath • 693 ft²
3 bedroom link detached house for sale in Horning, NR12 — £400,000 • 3 bed • 3 bath • 1041 ft²
2 bedroom town house for sale in Horning, NR12 — £285,000 • 2 bed • 1 bath • 1198 ft²
4 bedroom detached house for sale in Hoveton, NR12 — £700,000 • 4 bed • 3 bath • 2322 ft²
3 bedroom semi-detached house for sale in Horning, NR12 — £425,000 • 3 bed • 3 bath • 1208 ft²
3 bedroom terraced house for sale in Trail Quay Cottages, Marsh Road, Hoveton, Norwich, NR12 — £350,000 • 3 bed • 1 bath • 914 ft²






































































