PO4 0BA - 4 bed spacious victorian family home in Manners Road, PO4 0…

View on Property Piper

4 bedroom end of terrace house for sale in Manners Road, Southsea, Hampshire, PO4

Summary - 1 MANNERS ROAD SOUTHSEA PO4 0BA

4 bed 2 bath End of Terrace

Large renovated four-bedroom end-terrace in Priory School catchment, close to amenities..
- Four bedrooms and two bathrooms, spacious family layout
- In Priory School catchment; several good local schools nearby
- Newly renovated and presented move-in ready
- Freehold with mains gas central heating and recent double glazing
- Small rear garden and limited external space
- Located in cosmopolitan student neighbourhood; above-average crime
- Cavity walls as built with no insulation (assumed)
- Fast broadband and excellent mobile signal
A spacious Victorian end-of-terrace in sought-after Southsea, presented in move-in condition after recent improvements. The house offers four double bedrooms, two bathrooms and generous reception rooms including a large kitchen — well suited to growing families who value space and proximity to good schools. Priory School is in the catchment area and several well-rated primary and secondary schools are nearby.

Practical benefits include fast broadband, excellent mobile signal, mains gas central heating with boiler and radiators, double glazing fitted after 2002, and freehold tenure. The property has a small rear garden and retains attractive period bay windows and characterful proportions typical of early 20th-century build.

Notable considerations: the immediate area is described as a cosmopolitan student neighbourhood with above-average local crime — buyers seeking a quieter street should view at different times of day. The plot is small and the property sits within an average-sized overall footprint, so outdoor space and off-street parking are limited. Cavity walls were built without insulation (assumed), which could mean additional energy-efficiency improvements are desirable.

This home suits a family wanting ready-to-live accommodation near schools and amenities, or investors targeting long-term rental demand in a popular Southsea location. Viewing is recommended to assess the street ambience and garden size relative to your needs.

Property Details

Image Descriptions

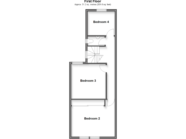
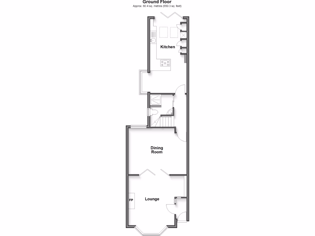
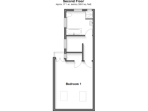
Floorplan Description

Rooms

Textual Property Features

Target Audience

AI Tags

Detected Visual Features

EPC Details

Nearby Schools

Nearest Bars And Restaurants

,,,,}

Nearest General Shops

,,}

Nearest Grocery shops

,,}

Nearest Supermarkets

,,}

Nearest Religious buildings

,,}

Nearest Medical buildings

,,,}

Nearest Airports

}

Nearest Leisure Facilities

,,,,}

Nearest Tourist attractions

,,}

Nearest Train stations

,,,,}

Nearest Bus stations and stops

,,,,}

Nearest Hotels

,,}

Tags

Local Market Stats

AirBnB Data

Similar Properties

Meta

High Res Images

Compatible Images

Low res Images

Thumbnails

Raw Images

High Res Floorplan Images

Compatible Floorplan Images

Low res Floorplan Images

FloorplanImages Thumbnail

Raw Floorplan Images