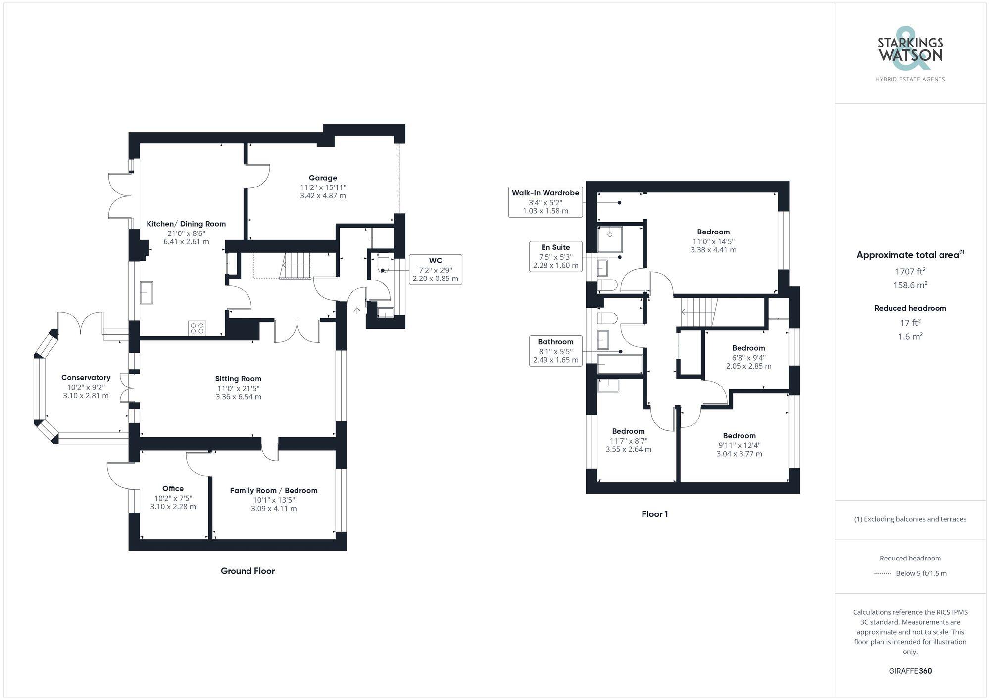
Extended detached house over 1,700 sq ft
Up to five bedrooms, main bedroom with ensuite and walk-in wardrobe
21' dual-aspect sitting room with multi-fuel burner
21' kitchen/diner, conservatory and south-facing landscaped garden
Ground-floor family room and study — annexe potential
Large driveway parking for several cars and integral garage
New 2025 gas boiler, double glazing, EPC rating C
Cavity walls likely uninsulated; slow local broadband speeds
Guide Price £425,000–£450,000. This extended detached house offers over 1,700 sq ft of family space including a 21' dual-aspect sitting room with a multi-fuel burner and a 21' kitchen/dining room that opens to a conservatory. Ground-floor family room and study provide useful flexible space and clear annexe potential for an independent relative or home office use. The main bedroom benefits from an ensuite and walk-in wardrobe; up to five bedrooms in total suit a growing household.
Practical comforts include a newly installed 2025 gas-fired boiler, uPVC double glazing and an integral garage plus large driveway parking for several vehicles. The private, south-facing rear garden is fully landscaped with a large patio and lawn — good for children and outdoor entertaining. Local conveniences are strong: walking distance to primary schools, transport links, and village amenities in Loddon.
Honest points to consider: the house dates from the late 1960s/70s and the cavity walls are assumed uninsulated, which could mean higher heating costs unless upgraded. Broadband speeds in the area are currently slow. The property is substantial but not a new build, so expect the normal maintenance and occasional updating that character homes require.
For family buyers seeking space, flexible accommodation and a private garden in a peaceful town-fringe setting, this home represents solid value with scope to personalise and improve energy performance. Investors or multi-generation families will also appreciate the annexe potential and generous room sizes.



































































































