S73 0RW - 3 bed detached family home in Lundhill Close, S73 0RW

View on Property Piper

3 bedroom detached house for sale in Lundhill Close, Wombwell, Barnsley, S73

Summary - 12 LUNDHILL CLOSE, WOMBWELL, BARNSLEY S73 0RW

3 bed 1 bath Detached

Spacious three-bedroom house with large garden and driveway, ready to personalise.
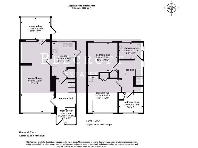
Detached three-bedroom home with generous room proportions
This detached three-bedroom home in Lundhill Close offers generous, well-proportioned rooms across a comfortable layout. The through lounge/diner and conservatory provide bright living space, while fitted bedroom storage and a modern bathroom give immediate practicality for family life.

Outside, a large plot includes both front and rear gardens with mature shrub borders and a garden shed, plus a block-paved driveway that accommodates multiple vehicles. The property is chain-free and freehold, set in a quiet residential area with good schools and transport links nearby.

Built in the late 1960s–1970s, the house is generally well presented but retains period features and may benefit from cosmetic updating in places to match contemporary tastes. There is no flooding risk and local crime is very low, which supports long-term family comfort and security.

This home suits buyers seeking a roomy, detached property with outdoor space and parking, ready to occupy while offering scope to personalise and increase value over time.

Property Details

Brochure Descriptions

Image Descriptions

Rooms

Textual Property Features

Target Audience

AI Tags

Detected Visual Features

EPC Details

Nearby Schools

Nearest Bars And Restaurants

,,,,}

Nearest General Shops

,,}

Nearest Grocery shops

,,}

Nearest Supermarkets

,,}

Nearest Religious buildings

,,}

Nearest Medical buildings

,,,}

Nearest Airports

}

Nearest Leisure Facilities

,,,,}

Nearest Tourist attractions

,,}

Nearest Train stations

,,,,}

Nearest Bus stations and stops

,,,,}

Nearest Hotels

,,}

Tags

Local Market Stats

AirBnB Data

Similar Properties

Meta

High Res Images

Compatible Images

Low res Images

Thumbnails

Raw Images

High Res Floorplan Images

Compatible Floorplan Images

Low res Floorplan Images

FloorplanImages Thumbnail

Raw Floorplan Images