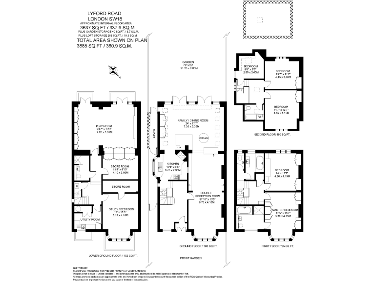
Large 6-bed Edwardian semi with 70-ft garden near Wandsworth Common — ideal for families..
- Six bedrooms across three floors, plus versatile lower-ground accommodation
- Nearly 3,700 sq ft internal space, high ceilings and period features
- 70-ft south-west facing landscaped garden and paved terrace
- Garage parking and private front garden
- Lower ground has second kitchen, plumbing for en suite conversion
- Built 1900–1929 with solid brick walls likely lacking insulation
- Double glazing fitted after 2002; mains gas heating, boiler and radiators
- Very expensive council tax; potential energy-efficiency retrofit recommended
This substantial Edwardian semi delivers family-sized living across nearly 3,700 sq ft, combining period charm with contemporary fittings. High ceilings, bay windows and original details sit alongside a bespoke teak kitchen, fitted wardrobes and modern double glazing, giving immediate comfort and style. The house has a 70-ft south-west facing garden and garage parking, making outdoor play and practical storage easy for busy family life.
Flexible lower-ground accommodation includes a large family/media room, second kitchen/utility and plumbing ready for an en suite — ideal for a live-in carer, teenagers or multi-generational arrangements. The generous upper floors provide a master en suite, five further bedrooms and loft storage, supporting both large households and home-working needs.
Practical considerations: the property was built 1900–1929 with solid brick walls likely lacking cavity insulation, so energy efficiency improvements and loft/wall insulation may be advisable. Council tax is very expensive. Overall, this is a rare, well-located family home a short walk from Wandsworth Common, strong schools and rail links to central London.
5 bedroom semi-detached house for sale in Lyford Road, SW18 — £3,500,000 • 5 bed • 2 bath • 3748 ft²
5 bedroom semi-detached house for sale in Lyford Road, London, SW18 — £3,500,000 • 5 bed • 3 bath • 3748 ft²
6 bedroom semi-detached house for sale in Lyford Road, London, SW18 — £5,750,000 • 6 bed • 5 bath • 7544 ft²
6 bedroom semi-detached house for sale in Nicosia Road, London, SW18., SW18 — £3,999,950 • 6 bed • 3 bath • 3512 ft²
5 bedroom semi-detached house for sale in Westover Road, SW18 — £2,750,000 • 5 bed • 3 bath • 2883 ft²
6 bedroom detached house for sale in Leacroft Avenue, London, SW12 — £2,500,000 • 6 bed • 5 bath • 3166 ft²






























































































































































































































































































































































































































































































