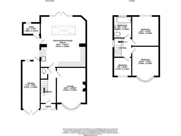
Chain-free family home with large garden and flexible living space.
Extended open-plan kitchen/family/dining room with lantern skylight and rear doors
Lounge with original bay window providing character and natural light
Three well-proportioned bedrooms; family bathroom on first floor
Large rear garden with patio; external utility room with plumbing and power
Driveway for several cars plus side garage for storage/parking
No onward chain — purchase can proceed without vendor delays
Relatively small overall size (approx. 808 sq ft) and single bathroom
Solid 1930s brick walls; likely insulation upgrades needed to improve efficiency
Set on an elevated stretch of Stourbridge Road, this extended 1930s semi-detached house offers flexible family living with no onward chain. The ground floor extension creates a bright open-plan kitchen/family/dining room, complete with a lantern skylight and bi-fold/french doors that flow onto a large rear garden and patio — ideal for summer entertaining and everyday family life.
The original layout retains a comfortable lounge with a bay window, three well-proportioned bedrooms and a family bathroom. Practical extras include a driveway for several cars, a side garage and an external utility room with plumbing and power, useful for laundry and storage.
Buyers should note the property is relatively small overall (about 808 sq ft) and has a single bathroom. The house is of solid brick construction from the 1930s and, while double glazed and gas-heated, may benefit from modern insulation improvements to increase comfort and energy efficiency. EPC rating D is in place.
This home will suit growing families or couples seeking a well-located, chain-free house with scope to personalise and improve. The area offers fast broadband, low local crime, good schools nearby and straightforward access to Halesowen, Birmingham and motorway links.
3 bedroom semi-detached house for sale in HALESOWEN, Brier Mill Road, B63 — £270,000 • 3 bed • 1 bath • 1031 ft²
3 bedroom semi-detached house for sale in HALESOWEN, Hilston Avenue, B63 — £265,000 • 3 bed • 1 bath • 1464 ft²
3 bedroom semi-detached house for sale in HALESOWEN, Cherry Orchard Avenue, B63 — £290,000 • 3 bed • 1 bath • 958 ft²
3 bedroom semi-detached house for sale in Red Leasowes Road, Halesowen, B63 — £235,000 • 3 bed • 1 bath • 776 ft²
3 bedroom semi-detached house for sale in Witley Avenue, Halesowen, B63 — £290,000 • 3 bed • 1 bath • 1045 ft²
3 bedroom semi-detached house for sale in Witley Avenue, Halesowen, B63 — £315,000 • 3 bed • 1 bath • 1175 ft²






















































































