Two-bedroom Edwardian flat with garden, vacant possession — sold at auction with extension potential.
Share of freehold; vacant possession and turn-key condition
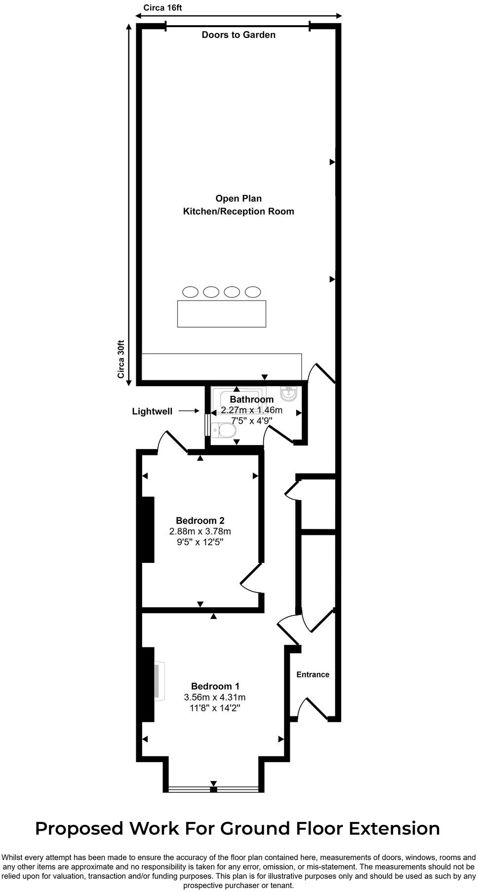
Ground-floor 2-bed flat with front and rear gardens (approx. 635 sqft)
Double glazing and mains gas boiler with radiators
Built c.1900–1929; solid brick walls likely without insulation
Potential to extend/reconfigure subject to planning permission
Sold at auction 15 Oct 2025; undisclosed reserve and auction fees apply
5% deposit on fall of hammer; 42-day completion (legal pack essential)
Local crime levels recorded as very high — consider security costs
This ground-floor, two-bedroom Edwardian flat in Tooting offers a vacant, turn-key home or buy-to-let in a well-connected South London location. At approximately 635 sq ft, the layout includes a reception, kitchen/diner, two bedrooms, one bathroom and front and rear gardens — rare for a ground-floor apartment.
The property is share of freehold and benefits from double glazing and mains gas central heating. There is obvious scope to increase value: the building dates from c.1900–1929 with solid brick walls (assumed uninsulated) and the opportunity to extend or reconfigure subject to planning and all necessary permissions.
Important considerations: the lot will be sold at auction on 15th October 2025 (timed auction) with a 5% deposit on fall of the hammer, auction fees and a 42‑day completion requirement. The reserve price is undisclosed and buyers must review the legal pack and perform full due diligence. Local crime levels are reported as very high — factor in security and insurance costs.
For investors the property’s location close to Tooting Broadway/Bec stations and strong local rental demand make it attractive for lettings; for owner-occupiers it offers immediate, low‑management living with improvement potential. Viewing is by appointment only; mortgage buyers are possible with further details available on request.
4 bedroom flat for sale in 6 Wheatlands Road, Tooting, London, SW17 8BB, SW17 — £585,000 • 4 bed • 1 bath • 960 ft²
2 bedroom maisonette for sale in Fairlight Road, Tooting, London, SW17 — £375,000 • 2 bed • 1 bath • 548 ft²
2 bedroom flat for sale in Garratt Terrace, London, SW17 — £475,000 • 2 bed • 1 bath • 632 ft²
1 bedroom flat for sale in Deeside Road, London, SW17 — £250,000 • 1 bed • 1 bath • 448 ft²
3 bedroom end of terrace house for sale in Aboyne Road, London, SW17 — £825,000 • 3 bed • 1 bath • 1475 ft²
4 bedroom maisonette for sale in Tooting High Street, LONDON, SW17 — £650,000 • 4 bed • 3 bath • 1566 ft²


































































































