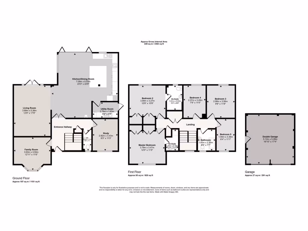
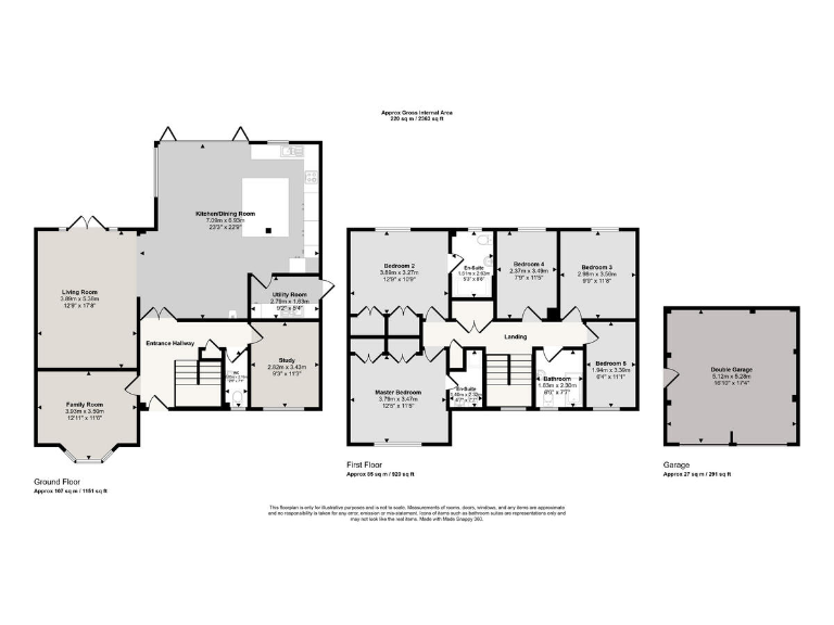
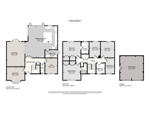
Spacious family house on a large private plot in sought-after village.
- Five double bedrooms and three bathrooms, including two en-suites
- Large open-plan kitchen/dining/family room with underfloor heating
- Situated at end of private road shared by only three homes
- Generous 0.24-acre plot with large garden and multi-vehicle driveway
- Double garage (5.28m x 5.12m) and utility room provided
- Built c.1996–2002; modern construction standards but verify details
- Services and appliances untested; commission independent surveys
- Measurements are approximate for guidance only
Set at the end of a private road of just three homes, this five-bedroom executive detached house sits on a generous 0.24-acre plot and delivers 2,363 sq ft of family-focused living. The heart of the home is a large open-plan kitchen/dining/family room with bi-fold doors, skylight and underfloor heating — designed for everyday family life and entertaining. There are two en-suites, a separate living room, study and utility, plus a double garage and a wide driveway with space for several cars.
The village of Wistow offers a tranquil rural setting with traditional village amenities and good schooling nearby; Huntingdon station is about six miles away for regular services to London in around 50 minutes. Broadband speeds are reported as fast and the property benefits from mains gas central heating and double glazing. Constructed circa 1996–2002, the house presents modern suburban build standards and a large private garden ideal for children and pets.
Important practical notes: the measurements are for guidance only and services, appliances and installations have not been tested — prospective buyers should arrange their own surveys and service checks. Mobile signal is average and some buyers may want to verify connectivity for working from home. Overall this is a well-proportioned family home in a sought-after village location with scope to personalise and adapt to changing family needs.
3 bedroom semi-detached house for sale in Oaklands Avenue, Wistow, Huntingdon, Cambridgeshire, PE28 — £350,000 • 3 bed • 1 bath • 1190 ft²
2 bedroom detached bungalow for sale in Harris Lane, Wistow, PE28 — £275,000 • 2 bed • 1 bath • 558 ft²
4 bedroom detached house for sale in Vinegar Hill, Alconbury Weston, Cambridgeshire., PE28 — £875,000 • 4 bed • 2 bath • 2303 ft²
7 bedroom detached house for sale in Mill Road, Wistow, Huntingdon, Cambridgeshire, PE28 — £1,300,000 • 7 bed • 1 bath • 6383 ft²
5 bedroom detached house for sale in Pasture Close, Warboys, PE28 — £325,000 • 5 bed • 2 bath • 1647 ft²
5 bedroom detached house for sale in Ermine Street, Great Stukeley, Huntingdon, Cambridgeshire, PE28 4AF, PE28 — £850,000 • 5 bed • 4 bath • 3716 ft²














































































































































































































