**Standout Features:**
- **No Chain**: Immediate availability for new owners.
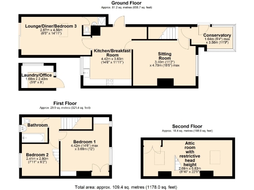
- Extended third bedroom/en-suite or additional sitting room with direct garden access.
- Charming conservatory with abundant natural light.
- Double-glazed windows, gas central heating, and landscaped gardens offer comfort and energy efficiency.
- Gated cobbled driveway providing secure off-road parking.
- Scenic rural views in a peaceful neighborhood.
**Potential Downsides:**
- Average broadband speeds may limit connectivity.
- Lack of cavity wall insulation may necessitate future renovations.
Embrace the serene charm of this semi-detached cottage nestled in a quiet corner of Staffordshire, ideal for families or first-time buyers. With three bedrooms and two bathrooms, this well-maintained home features an inviting extended room that can serve as a cozy sitting area or additional sleeping quarters, all opening onto a picturesque garden—perfect for enjoying tranquil evenings or entertaining guests. The open-plan living area, complete with an Adam-style fireplace and modern kitchen with Quartz worktops, embodies both comfort and functionality.
The property boasts a double-gated cobbled drive, a separate garden laundry/office space, and low-maintenance gardens for outdoor enjoyment. Offering easy access to local amenities and excellent schooling options, this home is not only perfect for a peaceful lifestyle but also within reach of the vibrant market town of Stone. Don’t miss this rare opportunity—properties in this idyllic locale are hard to come by!
3 bedroom detached house for sale in Sandon Road, Hilderstone, ST15 — £500,000 • 3 bed • 1 bath • 2151 ft²
2 bedroom cottage for sale in The cottages, Hulme Village, Stoke-On-Trent, ST3 — £159,950 • 2 bed • 2 bath • 676 ft²
3 bedroom cottage for sale in Leek Road, Wetley Rocks, Staffordshire, ST9 0AP, ST9 — £360,000 • 3 bed • 2 bath • 910 ft²
3 bedroom semi-detached house for sale in Sandon Road, Hilderstone, ST15 — £389,950 • 3 bed • 2 bath • 1833 ft²
3 bedroom end of terrace house for sale in Sandon Road, Hilderstone, ST15 — £315,000 • 3 bed • 1 bath • 1122 ft²
7 bedroom detached house for sale in Willow Bank, Denstone, Staffordshire, ST14 — £800,000 • 7 bed • 4 bath • 4085 ft²


































































































