Quiet village plot with substantial outbuilding and renovation scope.
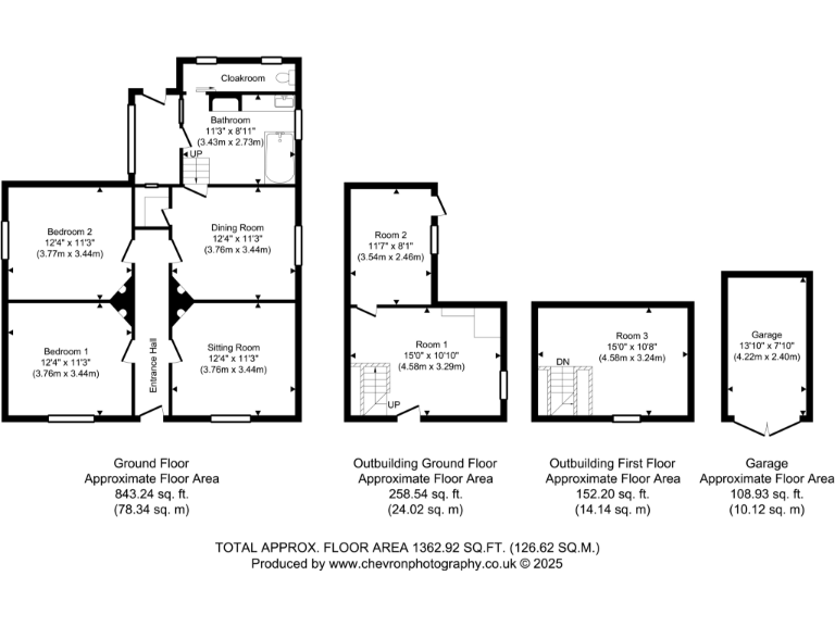
Detached two-bedroom bungalow on approx. 0.18-acre plot down to a brook
Belle Vue is a detached two-bedroom bungalow set on about 0.18 acres in a highly regarded, picturesque Suffolk village. The plot runs down to a brook and includes mature hedging, lawns, a long driveway and a substantial outbuilding with historic timbers — offering clear potential for replacement or conversion subject to planning. The house has traditional features such as tiled fireplaces and a butler sink but requires full renovation throughout.
Important practical points are upfront: the property is believed to be of non-standard timber-framed construction and will likely only be suitable for cash purchasers. The garage is likely asbestos construction and the large outbuilding is in disrepair; both will need careful investigation and possible removal or major repair. Services are reported as connected (mains water, electric, drainage) but have not been tested.
For a buyer wanting a quiet country setting, this home is a canvas. With spacious rooms (approx. 1,362 sq ft total) and generous grounds, there is scope to modernise the bungalow, reconfigure the layout, or redevelop the outbuilding footprint (subject to consents). The location, attractive garden down to the brook, and substantial external space are strong selling points for those seeking privacy and rural character.
Viewers should note the renovation burden and specialist considerations (construction type, asbestos in garage, possible planning needs). This is best suited to renovators, developers with planning experience, or downsizers prepared to commission works rather than move-in buyers.
3 bedroom detached house for sale in Windsor Green, Cockfield, IP30 — £400,000 • 3 bed • 1 bath • 2175 ft²
4 bedroom detached house for sale in Hawstead, Suffolk, IP29 — £695,000 • 4 bed • 2 bath • 2955 ft²
3 bedroom detached bungalow for sale in The Green, Hawstead, IP29 — £385,000 • 3 bed • 1 bath • 1430 ft²
2 bedroom detached bungalow for sale in Queen Street, Cowlinge, Newmarket, CB8 — £200,000 • 2 bed • 1 bath • 501 ft²
3 bedroom detached bungalow for sale in Steeplechase, Hundon, Sudbury, CO10 — £600,000 • 3 bed • 1 bath • 966 ft²
2 bedroom detached bungalow for sale in 6 Browns Close, Hitcham, IP7 — £370,000 • 2 bed • 1 bath • 893 ft²


























































