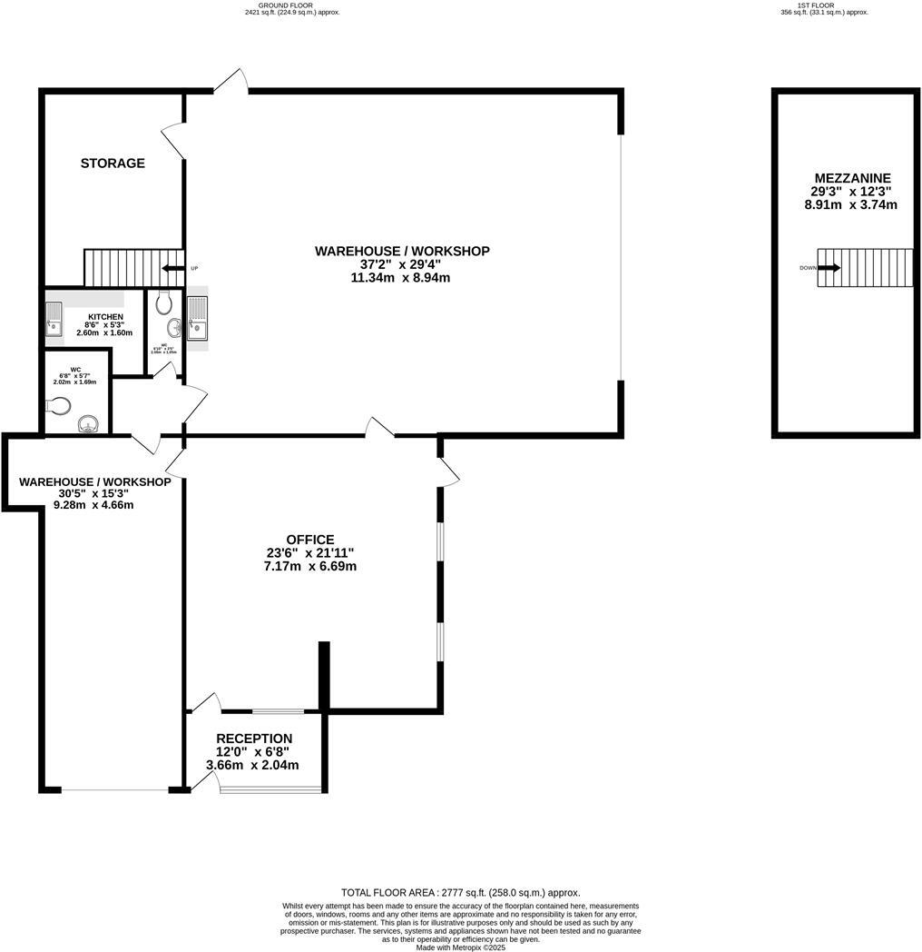
**Standout Features:**
- Freehold industrial unit of 2777 sq. ft.
- Capable of sub-division, subject to consents.
- Warehouse/workshop with mezzanine storage.
- Additional separate workshop and office space.
- Generous private parking on-site.
- Convenient location in Bath, just off Frome Road.
- All mains services connected, including gas heating.
This freehold industrial unit presents a rare opportunity for both owner-occupiers and investors, strategically located on Bath's southern side. With a total area of 2777 sq. ft., the property includes a spacious warehouse/workshop featuring an impressive mezzanine, a separate workshop, and well-appointed office facilities—ideal for a versatile range of commercial uses. While the unit is functional and well-equipped with all mains services, it has potential for reconfiguration, offering great flexibility for future businesses. The availability of abundant off-street parking is a significant bonus, ensuring easy access for employees and clients.
However, prospective buyers should be aware of the site's location within a mixed commercial environment, which might influence noise levels and accessibility. Overall, this property embodies a unique investment opportunity in a notable location, with the potential for appreciation and expansion. Don’t miss out on securing this asset that combines functionality with growth prospects!
Warehouse for sale in Bellotts Road, Bath, Somerset, BA2 3RT, BA2 — £550,000 • 1 bed • 1 bath • 5003 ft²
Light industrial facility for sale in Units 302 - 303, Central Park, Petherton Road, Bristol, City Of Bristol, BS14 — £725,000 • 1 bed • 1 bath • 5286 ft²
Light industrial facility for sale in Unit 4, Handlemaker Road, Frome, BA11 4RW, BA11 — £800,000 • 1 bed • 1 bath • 10325 ft²
Light industrial facility for sale in Unit 5, Caxton Business Park, Warmley, BS30 8XJ, BS30 — £450,000 • 1 bed • 1 bath • 5225 ft²
Light industrial facility for sale in Saputo Dairy Uk, Manor Road, Marston Trading Estate, Frome, Somerset, BA11 4BN, BA11 — £1,950,000 • 1 bed • 1 bath • 18080 ft²
Light industrial facility for sale in Exhibition House, North View, Soundwell, Bristol, Gloucestershire, BS16 — £1,500,000 • 1 bed • 1 bath


















































