Chain-free three-bedroom bungalow with loft conversion and large driveway.
No onward chain — vacant and ready for immediate sale
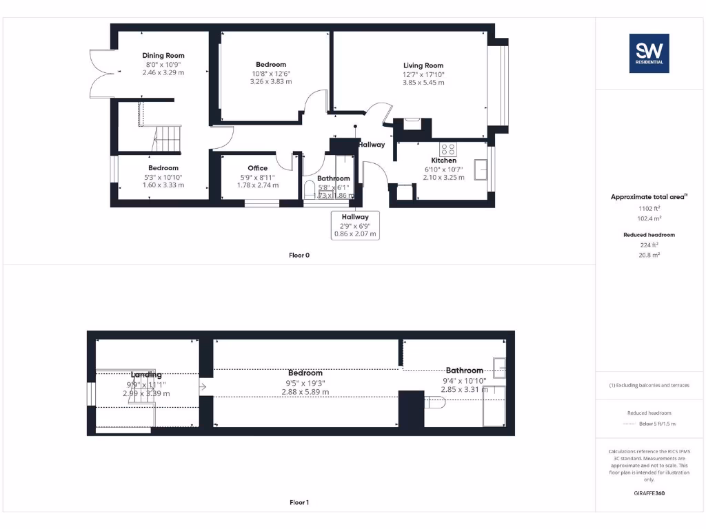
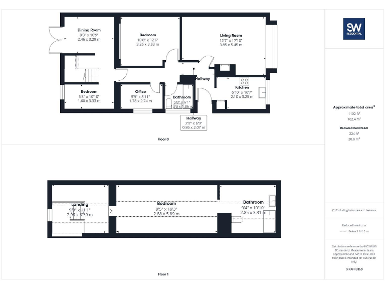
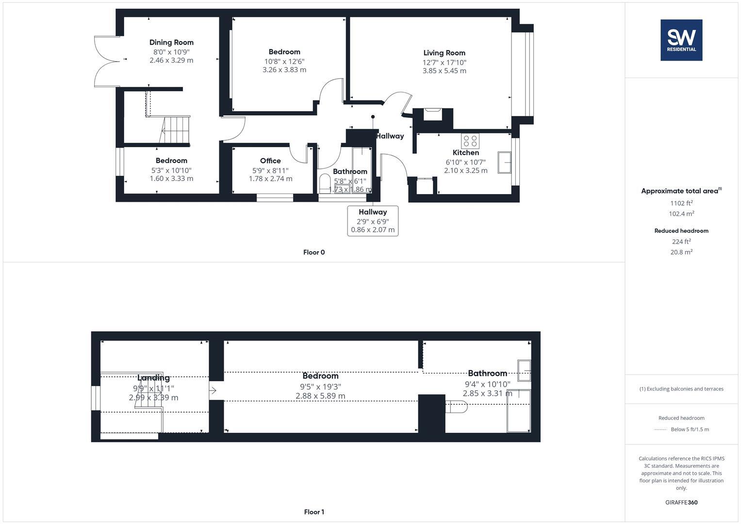
Set on Scarborough’s sought-after South Side, this detached, chain‑free bungalow combines single‑storey living with an attic conversion for flexible accommodation. The extended footprint delivers a generous reception room, dining area, modern galley kitchen and a dedicated office — useful for from‑home working or hobbies. The loft conversion provides an extra bedroom with an en‑suite, while two further ground‑floor bedrooms keep everything accessible for downsizers.
Outside the plot is larger than average for the street, with a long block‑paved driveway providing off‑street parking for multiple cars and a private rear garden arranged across an elevated level. Built circa 1970 with cavity walls and double glazing, the property is gas‑heated by boiler and radiators and sits in a low‑crime, affluent neighbourhood close to local schools and amenities.
This bungalow will suit buyers seeking low‑maintenance, single‑storey living with extra sleeping space from the loft conversion — ideal for downsizing couples or small families wanting ground‑floor convenience. It is practical and comfortable but not showroom‑new: there are mid‑century elements and areas that would benefit from updating or cosmetic attention to maximise the home’s potential.
A sensible purchase for someone looking for immediate occupancy without chain delays, with room to personalize and improve value over time.
2 bedroom detached bungalow for sale in Filey Road, Scarborough, YO11 — £318,500 • 2 bed • 1 bath • 1404 ft²
2 bedroom detached bungalow for sale in Sea View Close, Scarborough, North Yorkshire, YO11 — £200,000 • 2 bed • 1 bath • 689 ft²
2 bedroom semi-detached bungalow for sale in Sea View Close, Scarborough, YO11 — £180,000 • 2 bed • 1 bath • 501 ft²
2 bedroom detached bungalow for sale in Osgodby Lane, Scarborough, YO11 — £210,000 • 2 bed • 1 bath • 631 ft²
3 bedroom detached bungalow for sale in Cornelian Avenue, Scarborough, YO11 — £340,000 • 3 bed • 1 bath • 984 ft²
2 bedroom semi-detached bungalow for sale in Malvern Crescent, Scarborough, North Yorkshire, YO12 — £230,000 • 2 bed • 1 bath • 732 ft²






























































