Compact city flat near Westminster transport and landmarks.
Bright reception with high ceilings and large sash windows
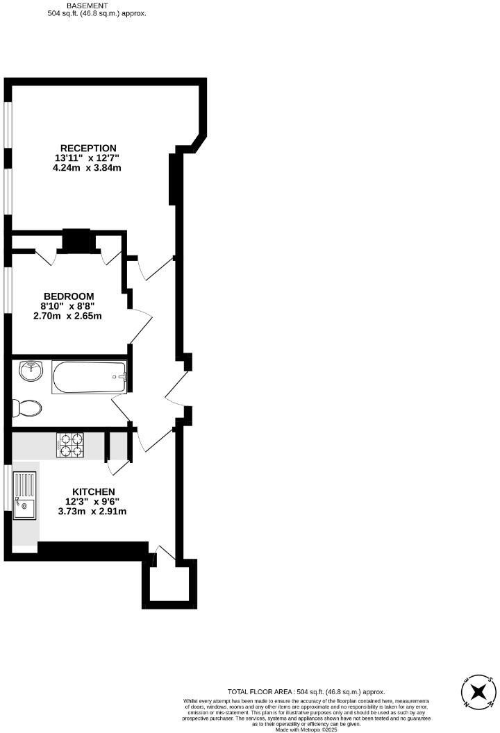
A well-presented one-bedroom apartment in Westminster Mansions places central London on your doorstep. The reception room benefits from high ceilings and large sash windows, while the kitchen is modern with integrated appliances—features that suit buyers wanting a stylish city base or a straightforward rental let. Fast broadband and excellent mobile signal support home working and city life.
The flat is compact (around 571 sq ft reported) and may suit a single buyer or couple prioritising location over space. There is no garden and natural light is modest in parts; images and plan descriptions also suggest a lower‑level/ground- or basement‑position, which reduces light and may affect appeal. Recent cosmetic updates improve marketability but the accommodation remains modest in internal space.
Buyers must note material drawbacks: the lease has about 77 years remaining, which can restrict mortgage availability and will likely require lease extension costs. The local area records high crime and very high deprivation metrics; while transport links and local amenities are excellent, consider neighbourhood factors and insurance costs when deciding.
This property is best for first‑time buyers who value location and can manage modest space and future lease extension work, or investors prepared to factor in potential lending restrictions and reversionary costs. Viewings will show whether the lower-level position and light levels meet your needs before proceeding.
1 bedroom apartment for sale in Great Smith Street, London, SW1P — £500,000 • 1 bed • 1 bath • 452 ft²
1 bedroom flat for sale in Cathedral Mansions, Vauxhall Bridge Road, London, SW1V — £400,000 • 1 bed • 1 bath • 319 ft²
1 bedroom flat for sale in Westminster Palace Gardens, SW1P — £650,000 • 1 bed • 1 bath • 825 ft²
1 bedroom flat for sale in Little Smith Street, Westminster, London, SW1P 3DQ, SW1P — £775,000 • 1 bed • 1 bath • 687 ft²
1 bedroom apartment for sale in Ambrosden Avenue, Westminster, London, SW1P — £535,000 • 1 bed • 1 bath • 443 ft²
1 bedroom flat for sale in Victoria Street, Westminster, London, SW1H — £645,000 • 1 bed • 1 bath • 482 ft²






















