Newly renovated two-bedroom flat with parking, short walk to St Albans station..
Two double bedrooms, principal with en-suite shower room
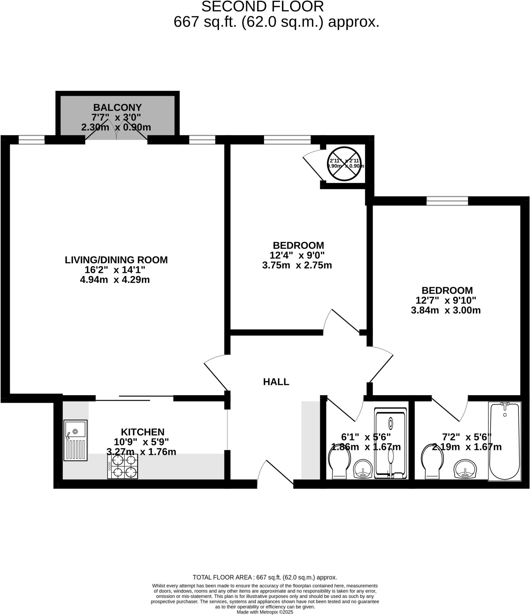
Step into a freshly renovated two-double-bedroom apartment in Worcester Court, a modern development moments from St Albans City station. The flat offers a bright living/dining room with a Juliet balcony, a contemporary fitted kitchen and a principal bedroom with an en-suite — all finished to a clean, neutral standard ready to move into.
Practical daily life is straightforward: the apartment includes an allocated off-street parking space, visitor parking, and well-kept communal gardens that provide a pleasant outlook. At around 667 sq ft the layout suits professional couples, first-time buyers or investors seeking low-maintenance city living with quick rail links to central London (0.9 miles to the station).
Be clear about the running costs: this is a leasehold property with a long lease (966 years) but an annual service charge averaging £2,280 and a small ground rent of £50. The building was constructed in the early 1990s; windows are double glazed though install dates are not specified. Crime levels are average and local amenities, schools and fast broadband make the location convenient and well-connected.
Overall this is a practical, ready-to-live-in apartment that balances modern presentation with sensible upkeep responsibilities. It will appeal to buyers who prioritise location, low immediate maintenance and easy access to transport, while being aware of ongoing communal service costs.
2 bedroom apartment for sale in Sanders Place, Camp Road, St. Albans, Hertfordshire, AL1 — £400,000 • 2 bed • 2 bath • 777 ft²
2 bedroom apartment for sale in Bakers Close, St. Albans, Hertfordshire, AL1 — £360,000 • 2 bed • 2 bath • 691 ft²
2 bedroom maisonette for sale in Vesta Avenue, St. Albans, Hertfordshire, AL1 — £325,000 • 2 bed • 2 bath • 811 ft²
2 bedroom apartment for sale in Camp Road, St. Albans, Hertfordshire, AL1 — £280,000 • 2 bed • 2 bath • 642 ft²
2 bedroom apartment for sale in Dexter Close, St. Albans, Hertfordshire, AL1 — £350,000 • 2 bed • 2 bath • 774 ft²
2 bedroom apartment for sale in Havercroft Close, St. Albans, Hertfordshire, AL3 — £425,000 • 2 bed • 2 bath • 777 ft²


























































