Long-term tenant, steady income — practical buy-to-let in L13 with modest renovation upside..
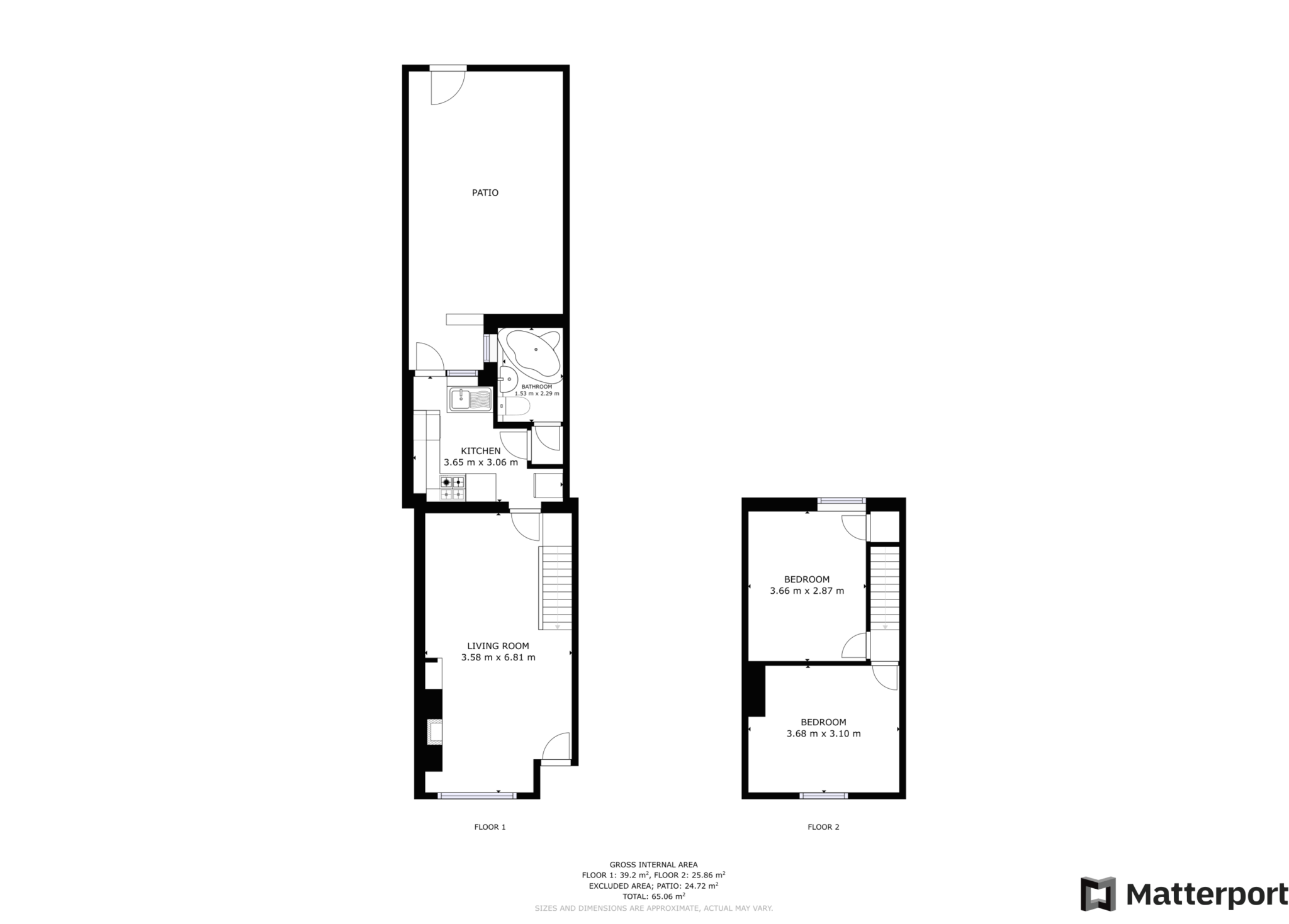
Freehold two-bedroom Victorian mid-terrace with small rear garden
Long-term tenant in situ producing £6,000 gross per year
Approximate gross yield ~6.9% at £87,000 purchase price
Area classified as very deprived; local crime level: very high
Very small plot and modest room sizes; limited outdoor space
Dated interior and fittings — modest renovation potential
Street parking only; no off-street parking
Buyers’ premium will apply on sale
This two-bedroom mid-terrace Victorian property in L13 offers a straightforward buy-to-let opportunity with a long-term tenant in situ. The house is a traditional layout with lounge, kitchen, bathroom, small back garden and on-street parking — an easy addition to an investor portfolio. Current gross income is £6,000 per year on a £87,000 purchase price, giving an approximate gross yield of around 6.9%.
The home is structurally typical of the area and generally well maintained but features dated interior décor and fittings that will reward modest renovation. The plot is very small with limited outdoor space; the property is best-suited to investors or developers rather than buyers seeking generous gardens or large living areas.
Important location considerations are factual and material: the area is classified as very deprived with very high local crime levels. These factors will affect tenant demand and resale value and should be factored into any pricing and management assumptions. The property currently has reliable long-term tenants who do not intend to vacate, so the sale will likely transfer with the tenancy in place.
A buyers’ premium applies to secure the property. For investors seeking steady rental income and straightforward portfolio expansion in a major conurbation, this property is a practical purchase; for occupiers seeking low-crime neighbourhoods or larger gardens, it is less suitable.
2 bedroom terraced house for sale in Goodison Road, Liverpool, L4 — £74,000 • 2 bed • 1 bath • 603 ft²
3 bedroom terraced house for sale in Robarts Road, Liverpool, L4 — £125,000 • 3 bed • 1 bath • 1119 ft²
3 bedroom terraced house for sale in Strathcona Road, Liverpool, Merseyside, L15 — £135,000 • 3 bed • 1 bath • 743 ft²
3 bedroom terraced house for sale in Curate Road, Liverpool, Merseyside, L6 — £120,000 • 3 bed • 1 bath • 710 ft²
4 bedroom semi-detached house for sale in Gilescroft Avenue, Liverpool, Merseyside, L33 — £100,000 • 4 bed • 2 bath • 1130 ft²
3 bedroom terraced house for sale in Canterbury Street, Liverpool, L19 — £110,000 • 3 bed • 1 bath






























































