**Standout Features:**
- Recently renovated three-bedroom terraced home
- Private covered parking space
- Low maintenance southeast-facing garden
- Master bedroom with en-suite
- Prime location near The Green
- Ideal for families with access to good local schools
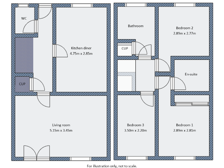
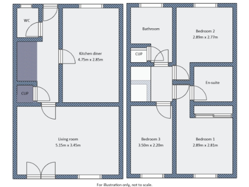
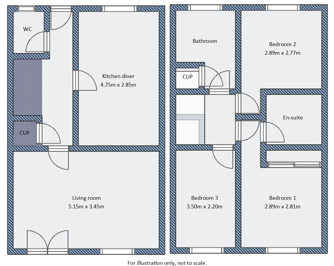
Discover this superbly finished three-bedroom terraced home in St Austell, offering modern comforts and an ideal layout for families and first-time buyers. Enter into a spacious wide hallway leading to a stylish, dine-in kitchen equipped with contemporary fittings, including space for a range cooker and American fridge-freezer—perfect for entertaining. The expansive living room, featuring a charming fireplace and French doors, opens to a low-maintenance rear garden, ideal for summer BBQs or quiet evenings.
Upstairs, the master bedroom offers extra privacy with an en-suite, while two additional bedrooms accommodate family life effortlessly. A beautifully designed family bathroom and built-in linen cupboard complete this smart upper level. With excellent mobile and broadband connectivity, this home is perfect for those juggling convenience and comfort.
While the property boasts a low-crime setting and a family-friendly atmosphere, it is located in an area classified as deprived, underscoring its potential for value appreciation over time. With sought-after local schools and amenities just a short distance away, this home presents a unique opportunity for comfortable living. Don’t miss out—properties like this, with such modern appeal and potential, are sure to be snapped up quickly!
3 bedroom terraced house for sale in The Green, St. Austell, Cornwall, PL25 — £230,000 • 3 bed • 3 bath • 593 ft²
3 bedroom semi-detached house for sale in Trevail Way, St. Austell, PL25 — £265,000 • 3 bed • 2 bath • 1184 ft²
3 bedroom end of terrace house for sale in Keay Heights, St. Austell, Cornwall, PL25 — £230,000 • 3 bed • 1 bath • 1125 ft²
3 bedroom end of terrace house for sale in Growan Road, St Austell, PL25 — £245,000 • 3 bed • 1 bath • 603 ft²
3 bedroom semi-detached house for sale in Hammer Drive, St. Austell, Cornwall, PL25 — £290,000 • 3 bed • 2 bath • 797 ft²
3 bedroom semi-detached house for sale in Lewis Way, St. Austell, Cornwall, PL25 — £275,000 • 3 bed • 3 bath • 980 ft²














































































































