Spacious family home near beach and excellent schools.
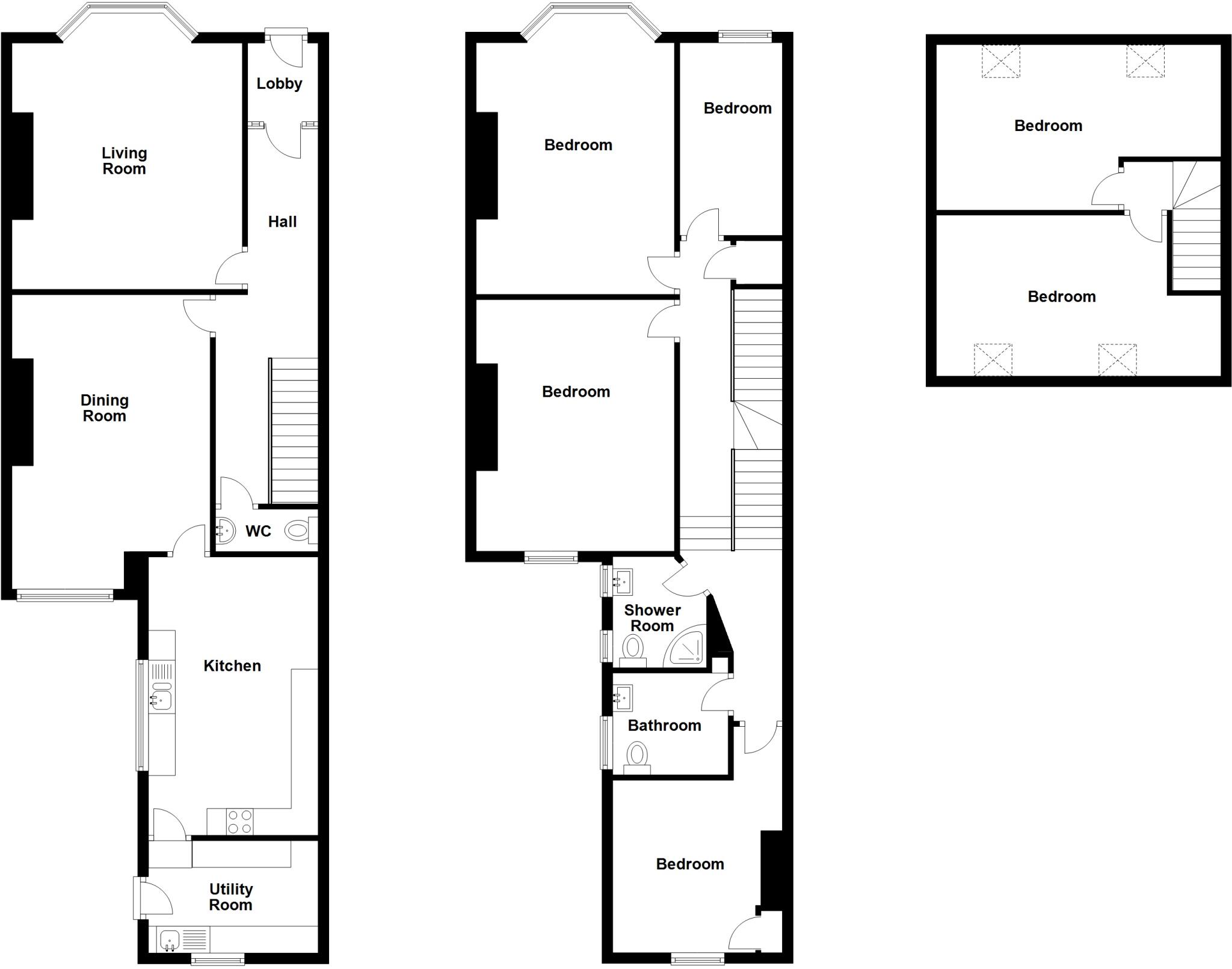
6 bedrooms across three floors, flexible family layout
Fourteen south-facing solar panels, ~£1,700 annual income
Large double garage with power, light and external tap
Close walking distance to town centre, beach and Metro links
Good broadband and mobile signal; several outstanding schools nearby
Top-floor rooms have restricted head height (limited full-height space)
Small plot with small front garden and paved rear yard only
Local area records higher crime levels; terrace street setting
This substantial six-bedroom Victorian mid-terrace offers flexible family living across three floors, close to Whitley Bay town centre and the seafront. High ceilings, bay windows and original period features give rooms character, while a fitted dining kitchen, utility room and two bathrooms make day-to-day life practical. Fourteen south-facing solar panels currently generate about £1,700 per year, helping running costs.
Accommodation includes a generous lounge and separate dining room, four first-floor bedrooms and two further second-floor bedrooms (with restricted head height). The property benefits from uPVC double glazing, a 2017 combi boiler, a double garage with power and light, and a small rear paved yard. Broadband and mobile signal are excellent, and several highly rated local schools are within easy reach.
Buyers should note the compact plot and small front garden, plus the terrace setting on a street with higher local crime statistics. The top-floor rooms have restricted head height and may suit occasional use, storage or children's bedrooms rather than primary double rooms. Overall the house is well presented for its age but offers scope for cosmetic updating and reconfiguration to suit modern family needs or rental use.
6 bedroom terraced house for sale in Whitley Road, Whitley Bay, NE26 — £499,000 • 6 bed • 3 bath
3 bedroom terraced house for sale in Eastbourne Gardens, Whitley Bay, Tyne and Wear, NE26 — £380,000 • 3 bed • 1 bath • 1388 ft²
5 bedroom terraced house for sale in Park Parade, Whitley Bay, NE26 — £475,000 • 5 bed • 4 bath
4 bedroom terraced house for sale in Whitley Road, Whitley Bay, NE26 — £425,000 • 4 bed • 1 bath • 1434 ft²
5 bedroom terraced house for sale in Holly Avenue, Whitley Bay, NE26 — £475,000 • 5 bed • 2 bath • 1683 ft²
5 bedroom terraced house for sale in Roxburgh Terrace, Whitley Bay, NE26 — £420,000 • 5 bed • 1 bath • 1938 ft²






























































































































































































































