**Standout Features:**
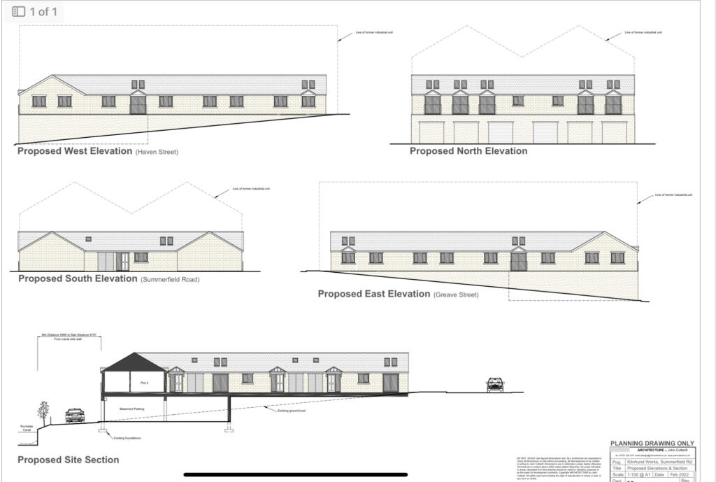
- Full planning permission granted for 13 new dwellings: 7 bungalows and 6 terraced houses.
- Located in a highly accessible area of Todmorden, near Rochdale Canal and the town center.
- Incorporates EV charging stations, green enhancements, off-street parking, and secure cycle storage.
- Ready for immediate commencement which offers quick development opportunities.
**Concerns:**
- Surrounding area has above-average crime rates.
- Local area characterized as deprived, which may affect investment potential.
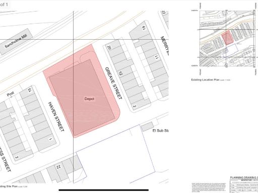
Unlock the full potential of this prime development opportunity in Todmorden, West Yorkshire. With full planning permission already in place, you can act quickly to transform two adjacent brownfield plots into a thriving community featuring 13 new dwellings—7 attractively designed bungalows and 6 modern terraced houses. The location provides excellent access to town amenities, transport links, and scenic areas along the Rochdale Canal.
Each property will include vital EV charging infrastructure and consideration for biodiversity, with bat tubes, bird boxes, and landscaped courtyards planned, catering to a growing demand for sustainable living. Residents will benefit from secure off-road parking and proximity to several highly rated state schools, making this an enticing choice for families and investors alike.
While the area does experience above-average crime rates, the thoughtful design and well-planned approach to landscaping offer opportunities for a brighter community atmosphere. Don't miss this exclusive chance to capitalize on a highly deliverable and strategic housing development in an aspiring urban location. Act fast—opportunities like this are rare!
Land for sale in Former Glen Works Mill, Off Pudsey Road, Todmorden, OL14 — £350,000 • 1 bed • 1 bath
Land for sale in Rochdale Road, Todmorden , West Yorkshire, OL14 7PL, OL14 — £600,000 • 1 bed • 1 bath
3 bedroom end of terrace house for sale in 550 Halifax Road, Todmorden OL14 6DQ, OL14 — £160,000 • 3 bed • 1 bath • 1517 ft²
Land for sale in Pecket Well, Hebden Bridge, HX7 — £300,000 • 1 bed • 1 bath
3 bedroom country house for sale in Fernside Avenue, Almondbury, Huddersfield, HD5 — £150,000 • 3 bed • 1 bath • 567 ft²
Land for sale in Development Site, Huddersfield Road, Elland, HX5 — £750,000 • 6 bed • 3 bath • 4865 ft²










































