TQ5 8JQ - 2 bedroom terraced house for sale in Vicarage Close, Brixha…

View on Property Piper

2 bedroom terraced house for sale in Vicarage Close, Brixham, TQ5

Summary - 6 VICARAGE CLOSE BRIXHAM TQ5 8JQ

2 bed 1 bath Terraced

**Standout Features:**
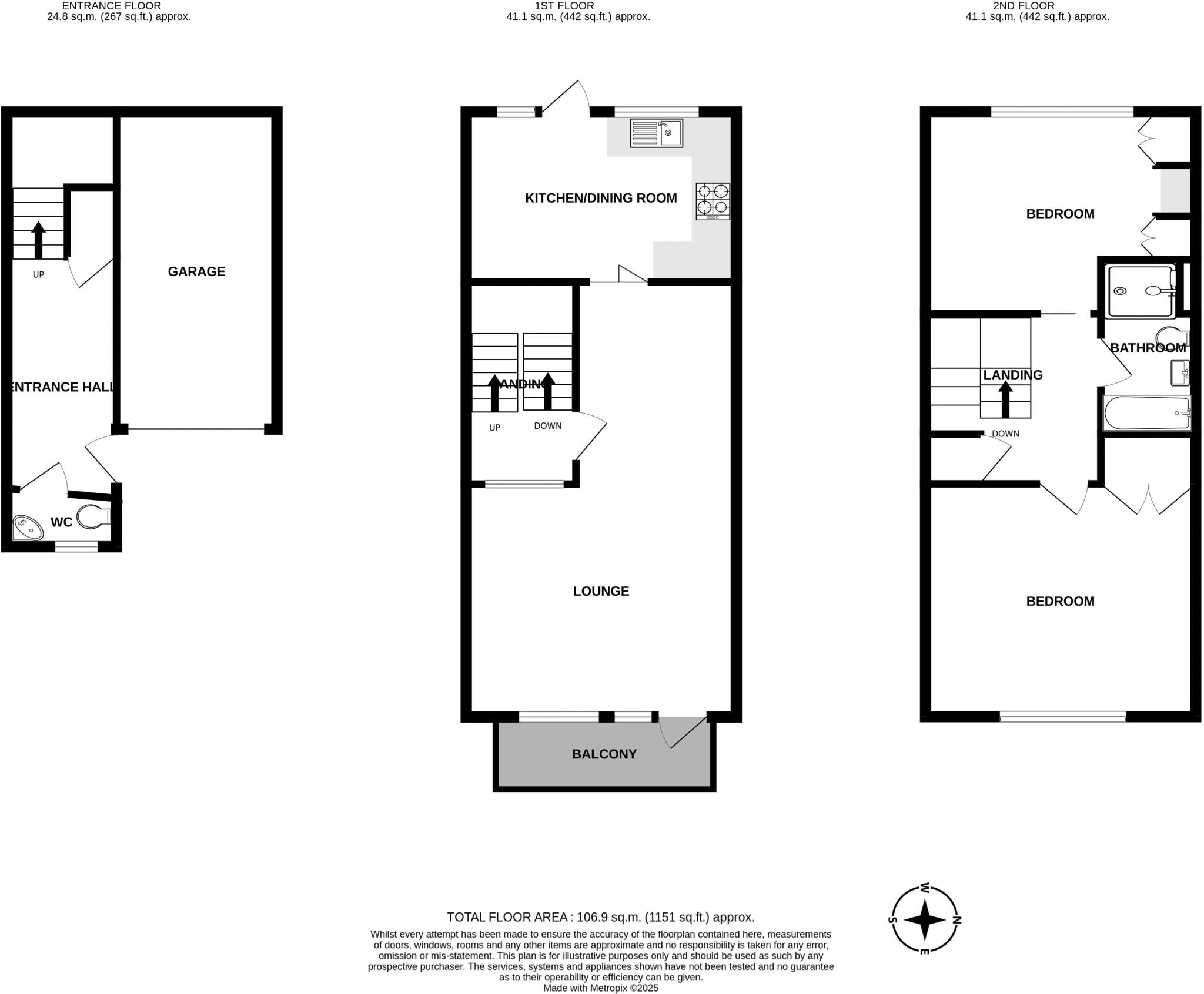
- Three-story, two-bedroom terraced house in a quiet cul-de-sac.
- Spacious open-plan lounge and dining area with a balcony.
- Modern kitchen with wood-effect units and yard access.
- Integral garage for secure parking and extra storage.
- Rear courtyard garden ideal for relaxation.
- No onward chain, allowing for a quick move.

**Summary:**
Discover this charming two-bedroom terraced house in a serene cul-de-sac of Brixham, offering a generous 95 square meters of living space across three thoughtfully arranged floors. Enjoy the spacious open-plan lounge and dining area, perfect for entertaining or relaxing, that flows seamlessly onto a lovely balcony overlooking tranquil views. The modern kitchen features stylish wood-effect units and easy access to the inviting rear courtyard garden—perfect for outdoor enjoyment.

Both bedrooms are well-appointed, with the master boasting a built-in wardrobe for efficient storage. Additional benefits include an integral garage for secure parking and storage. With no onward chain, this property is ready for you to call home or rent out. Conveniently situated within walking distance to town amenities and local schools with good Ofsted ratings, this is an ideal opportunity for first-time buyers or investors looking for rental potential in a low-crime area. Act fast—this gem won't be on the market for long!

Property Details

Brochure Descriptions

Image Descriptions

Floorplan Description

Rooms

Textual Property Features

Detected Visual Features

EPC Details

Nearby Schools

Nearest Bars And Restaurants

,,,,}

Nearest General Shops

,,}

Nearest Grocery shops

,,}

Nearest Supermarkets

,,}

Nearest Religious buildings

,,}

Nearest Medical buildings

,,,}

Nearest Leisure Facilities

,,,,}

Nearest Tourist attractions

,,}

Nearest Train stations

,,,,}

Nearest Bus stations and stops

,,,,}

Nearest Hotels

,,}

Tags

Local Market Stats

AirBnB Data

Similar Properties

Meta

High Res Images

Compatible Images

Low res Images

Thumbnails

Raw Images

High Res Floorplan Images

Compatible Floorplan Images

Low res Floorplan Images

FloorplanImages Thumbnail

Raw Floorplan Images