Well-proportioned modern house within walking distance of the train station.
Five bedrooms across three floors, two en‑suites plus family bathroom
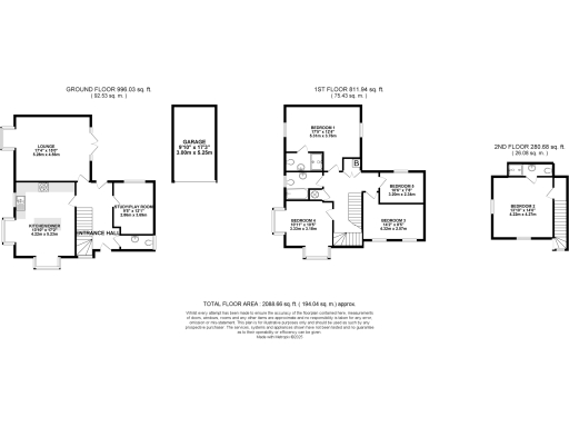
A spacious five-bedroom family home across three floors, offering versatile living for families and commuters. The ground floor provides a dual-aspect lounge with French doors to the rear garden, a large kitchen/diner with island for social cooking and dining, a second reception room useful as a study or playroom, and a handy downstairs WC. Two principal suites each have en‑suites and there is a further family bathroom, giving flexible bedroom arrangements for children, guests or home working.
Practical features include a single garage, side-by-side driveway parking, double glazing, mains gas central heating and an enclosed rear garden with two patio areas. The house sits in a popular residential estate with good local amenities, well-rated primary and secondary schools nearby, and a mainline train station within a 10‑minute walk for fast links to London.
Important points to note: council tax is in the higher Band F and the front area is low‑maintenance paved (limited front garden). Records list the built form as semi‑detached despite the marketing description as detached; buyers should check title details. The three‑storey layout provides lots of space but may be less suitable for residents with limited mobility.
With c.2,088 sq ft of accommodation built in the 2007–2011 period, this home is presented as a modern, well‑proportioned family property with scope for personal updating rather than major structural work. Its location and layout will appeal to families seeking space near transport links and local schools.
5 bedroom detached house for sale in Leveret Way, St. Neots, PE19 — £450,000 • 5 bed • 3 bath • 1598 ft²
4 bedroom detached house for sale in Fox Covert, St. Neots, PE19 — £450,000 • 4 bed • 1 bath • 1607 ft²
4 bedroom detached house for sale in Lannesbury Crescent, St. Neots, PE19 — £595,000 • 4 bed • 2 bath • 1669 ft²
5 bedroom detached house for sale in Currington Avenue, St. Neots, Cambridgeshire, PE19 — £600,000 • 5 bed • 1 bath • 2015 ft²
3 bedroom detached house for sale in Church Meadows, St. Neots, PE19 — £325,000 • 3 bed • 1 bath • 946 ft²
3 bedroom detached house for sale in Alsop Way, St. Neots, PE19 , PE19 — £385,000 • 3 bed • 2 bath • 1044 ft²














































































