Large plot with garage and strong scope to extend or develop further.
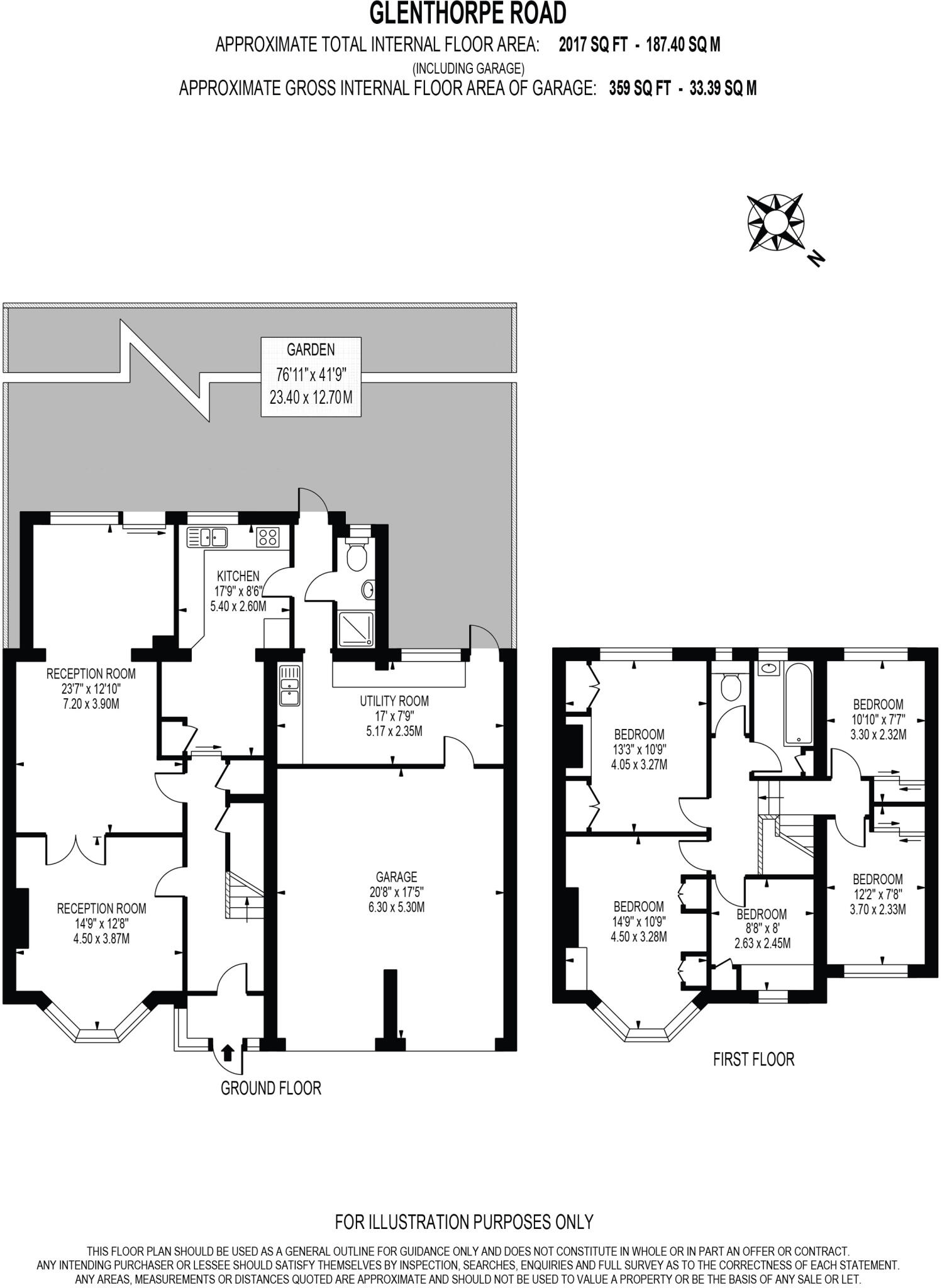
Extended five-bedroom family home, circa 2,017 sq ft
Double garage plus off-street parking for three cars
Large south‑west facing rear garden, private and secluded
Recently renovated interior; double glazing and gas central heating
Potential to extend side, rear and loft (STPP)
Possible to create an additional dwelling to the side (STPP)
EPC rating E — energy efficiency and running costs are higher
Council Tax Band F — relatively expensive ongoing cost
This extended five-bedroom end-of-terrace in Morden offers generous, family-friendly accommodation across multiple floors. Recently renovated, the house measures around 2,017 sq ft and includes a double garage plus off-street parking for three cars — practical for growing households. The rear garden faces south-west, providing a substantial, private outdoor space ideal for families and entertaining.
The property's construction era (1930s–1940s) and solid brick walls with internal insulation give good character and thermal mass; double glazing and mains gas central heating are already in place. There is clear scope to increase value: substantial side, rear and loft extensions are possible and there is potential to build an additional dwelling to the side, all subject to planning (STPP).
Important practical points: the EPC is rated E and the house is in Council Tax Band F, so running costs may be higher than more efficient homes. The layout currently provides two bathrooms for five bedrooms, which some buyers may wish to address. Overall, this is a spacious, well-presented property with strong extension and investment potential in a well-connected, affluent part of Morden.
3 bedroom end of terrace house for sale in Glenthorpe Road, Morden, SM4 — £650,000 • 3 bed • 1 bath • 938 ft²
4 bedroom semi-detached house for sale in Chalgrove Avenue, Morden, SM4 — £700,000 • 4 bed • 2 bath • 1489 ft²
5 bedroom end of terrace house for sale in Garth Road, Morden, SM4 — £585,000 • 5 bed • 3 bath • 1337 ft²
3 bedroom end of terrace house for sale in Monkleigh Road, Morden, SM4 — £700,000 • 3 bed • 1 bath • 1285 ft²
3 bedroom terraced house for sale in Arundel Avenue, Morden, SM4 — £700,000 • 3 bed • 1 bath • 1079 ft²
3 bedroom end of terrace house for sale in Thurleston Avenue, Morden, SM4 — £635,000 • 3 bed • 1 bath • 874 ft²










































































































