Affordable city home close to the hospital and transport links.
Chain-free one-bedroom first-floor flat with private balcony
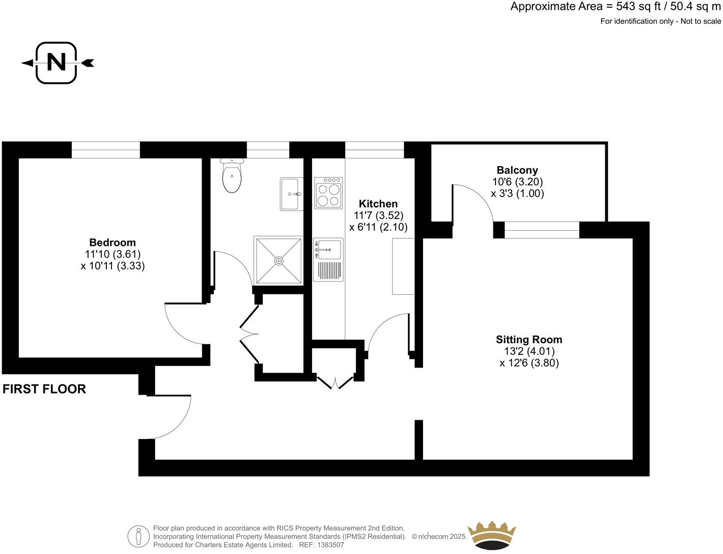
A chain-free, one-bedroom first-floor flat offering a compact, practical home close to Southampton General Hospital. The property has a bright lounge with balcony, a double bedroom and built-in hallway storage, making it easy to move into for a new buyer.
The flat has strong rental credentials — historic yields in excess of 8% — and will suit investors or first-time buyers wanting a straightforward purchase. Practical running costs include an £588 annual service charge and a long lease with 88 years remaining; ground rent is currently £10 per year.
Presenting in lived-in condition, the apartment will benefit from cosmetic updating and possible energy improvements (cavity walls originally built without insulation). Note the local area records higher crime levels, communal parking is provided, and accommodation is modest at about 543 sq ft.
Overall this is a sensible, affordable entry onto the Southampton market with immediate occupancy possible. Buyers should verify lease details, service charge information and any planned ground rent reviews with their solicitor before exchange.
1 bedroom flat for sale in The Avenue, Southampton, Hampshire, SO17 — £150,000 • 1 bed • 1 bath • 489 ft²
1 bedroom flat for sale in Grosvenor Road, Southampton, SO17 — £139,950 • 1 bed • 1 bath • 413 ft²
1 bedroom flat for sale in Hill Lane, Upper Shirley, Southampton, SO15 — £160,000 • 1 bed • 1 bath • 452 ft²
1 bedroom flat for sale in Westwood Road, Southampton, Hampshire, SO17 — £165,000 • 1 bed • 1 bath • 432 ft²
2 bedroom apartment for sale in Avington Court, Southampton, SO16 — £164,950 • 2 bed • 1 bath • 634 ft²
1 bedroom flat for sale in Nutfield Court, Maybush, Southampton, SO16 — £155,000 • 1 bed • 1 bath • 374 ft²






































