Large freehold mixed-use site with income and planning permission for new dwelling.
Freehold mixed-use site with two apartments and two commercial units
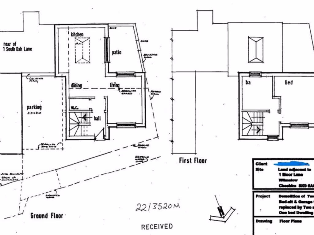
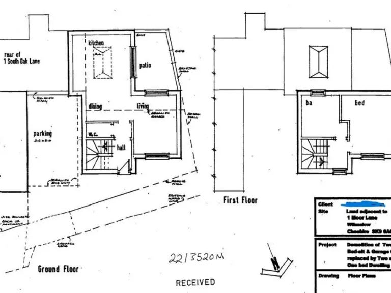
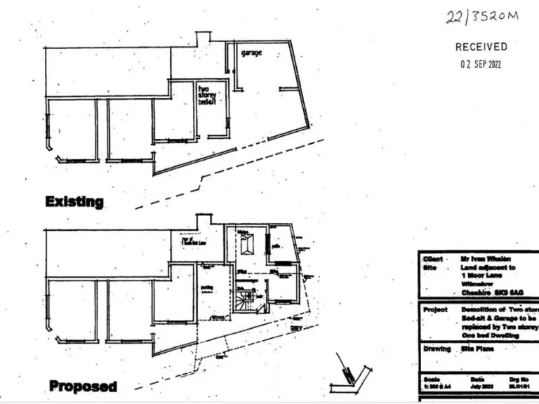
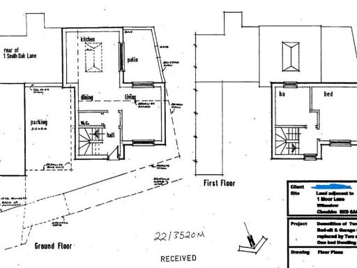
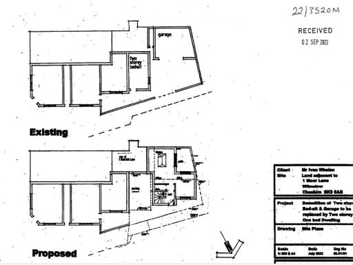
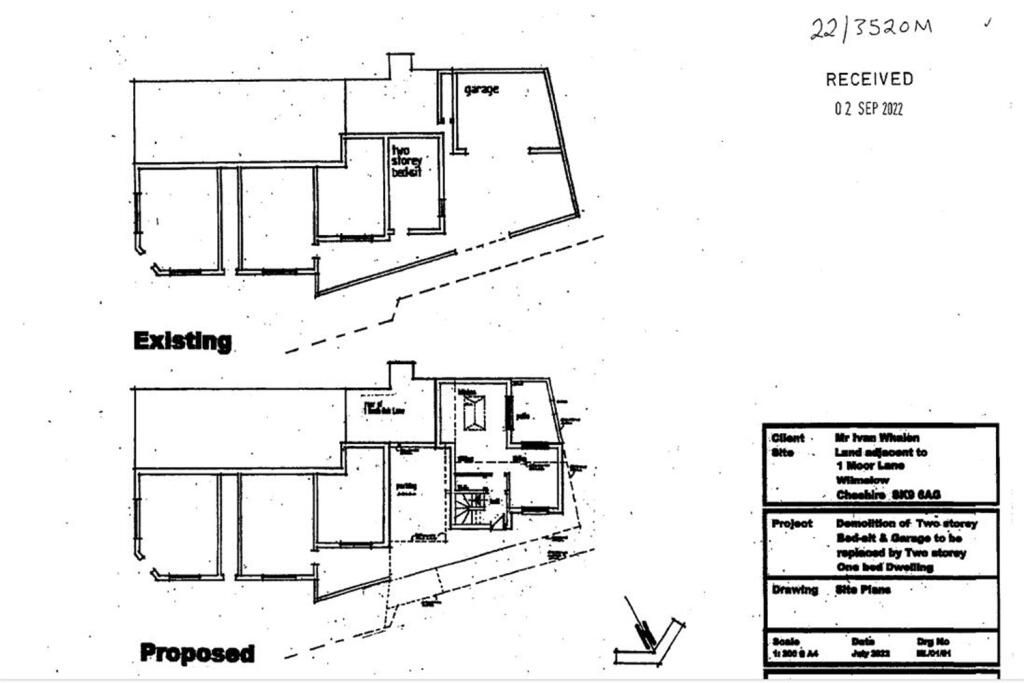
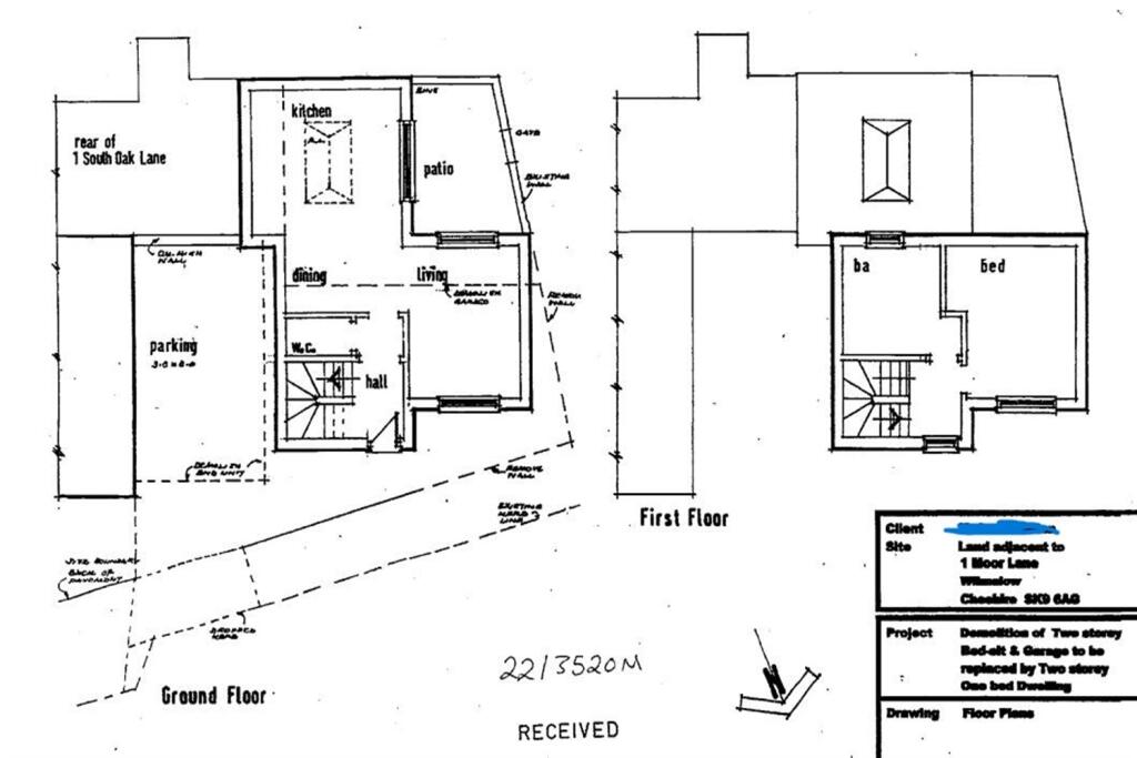
A substantial freehold mixed-use site in South Wilmslow offering immediate income and development upside. The property comprises two residential apartments, two commercial units and extensive cellars, currently producing approximately £40,000 pa in income. Full planning permission (Cheshire East ref 22/3520M) has been granted to demolish part of the existing building and create a one-bedroom detached dwelling with parking.
This is a clear proposition for an investor or owner-occupier looking for asset-backed yield plus short-term value-add. The site is very large (approx. 2,544 sq ft), sits in a very affluent area with very low crime, and benefits from fast broadband and good local amenities and schools. Cellars offer additional storage rental potential or conversion subject to consent.
Buyers should note the property’s mixed condition: external wear is present, some doors require replacement and parts of the building will be demolished under the planning consent. The consented works and any refurbishment will require additional capital and coordination with local authority conditions. Tenanted units currently generate the stated ROI — purchasers must satisfy themselves on tenancy terms and income sustainability.
Overall, the offering combines immediate rental return, scope for additional income from cellars and development potential via granted planning permission. It suits investors or developers targeting stable income with realistic refurbishment and build costs to deliver enhanced value.
Office for sale in 34 Altrincham Road, Wilmslow, Cheshire, SK9 — £495,000 • 1 bed • 1 bath • 1406 ft²
3 bedroom terraced house for sale in Chapel Lane, Wilmslow, Cheshire, SK9 — £600,000 • 3 bed • 3 bath • 2444 ft²
Commercial property for sale in Morley Nurseries, Altrincham Road, Wilmslow, Cheshire, SK9 — £1,250,000 • 1 bed • 1 bath
Office for sale in Hawthorn Lane, Wilmslow, Cheshire, SK9 — £625,000 • 5 bed • 1 bath • 2181 ft²
Commercial property for sale in Chapel Lane, Wilmslow, Cheshire, SK9 — £600,000 • 3 bed • 1 bath • 2000 ft²
Studio apartment for sale in 19 Hawthorn Lane, Wilmslow, Cheshire, SK9 — £695,000 • 1 bed • 1 bath • 2430 ft²






















































