EX2 8UF - 3 bedroom semidetached house for sale in Fairfield Road, Ex…

View on Property Piper

3 bedroom semi-detached house for sale in Fairfield Road, Exeter, Devon, EX2

Summary - Fairfield Road, Exeter, Devon EX2 8UF

3 bed 1 bath Semi-Detached

**Standout Features:**
- Property available through a Home for Life plan, ideal for those over 60.
- Lifetime Lease price is approximately £201,000, offering savings of 20% to 50% compared to full market price of £300,000.
- Semi-detached, 3 bedrooms, and 1 bathroom, featuring a contemporary living room and modern amenities.
- Located in a very affluent area with low crime rates and excellent mobile signal and fast broadband.
- Close to reputable schools with good Ofsted ratings.

**Property Summary:**
Discover an inviting semi-detached home perfect for those aged 60 and over looking to secure their future with the Home for Life plan. This property offers significant savings through a Lifetime Lease, allowing you to own up to 50% of the home value while enjoying a comfortable living space. Features include a contemporary living room, three bedrooms, and a medium-sized layout that allows for future personalization.

Located in the EX2 8UF postcode, this home is nestled in a vibrant, self-sufficient community with excellent transport links and nearby amenities, including nursing homes and leisure facilities. The area is known for its spacious classes in schools rated Good by Ofsted, making it an ideal choice for retirees seeking a calm yet connected lifestyle.

While some modernization may be needed, the home's overall condition offers a solid foundation for future improvements. With the luxury of a low-crime environment and a strong sense of community, this property is an excellent opportunity for those looking to embrace the golden years in comfort and security. Don’t miss out—explore your savings and secure your future today!

Property Details

Image Descriptions

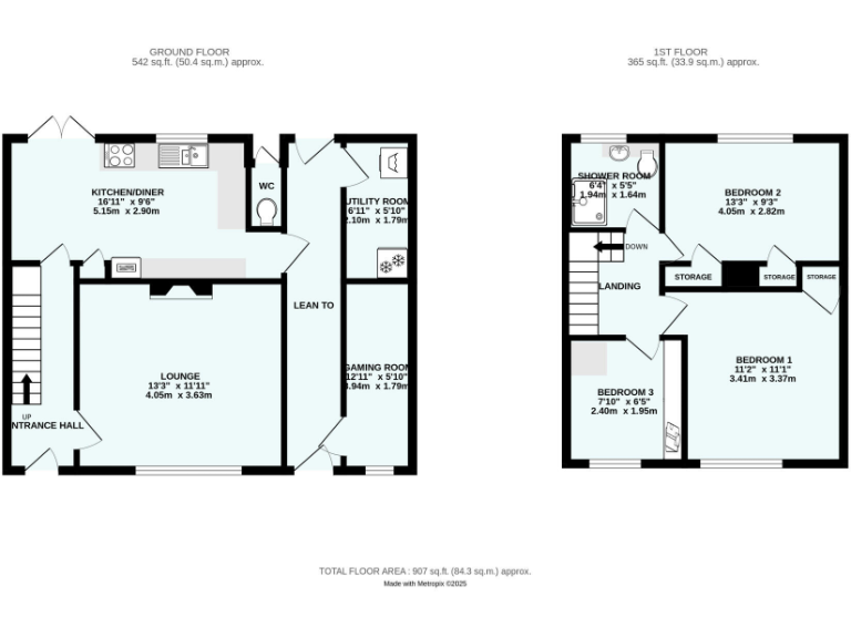
Floorplan Description

Rooms

Textual Property Features

Detected Visual Features

EPC Details

Nearby Schools

Nearest Bars And Restaurants

,,,,}

Nearest General Shops

,,}

Nearest Grocery shops

,,}

Nearest Supermarkets

,,}

Nearest Religious buildings

,,}

Nearest Medical buildings

,,,}

Nearest Airports

}

Nearest Leisure Facilities

,,,,}

Nearest Tourist attractions

,,}

Nearest Train stations

,,,,}

Nearest Bus stations and stops

,,,,}

Nearest Hotels

,,}

Tags

Local Market Stats

AirBnB Data

Similar Properties

Meta

High Res Images

Compatible Images

Low res Images

Thumbnails

Raw Images

High Res Floorplan Images

Compatible Floorplan Images

Low res Floorplan Images

FloorplanImages Thumbnail

Raw Floorplan Images