NR27 9BG - 3 bedroom chalet for sale in Clifton Park, Cromer, NR27

View on Property Piper

3 bedroom chalet for sale in Clifton Park, Cromer, NR27

Summary - 28 CLIFTON PARK CROMER NR27 9BG

3 bed 2 bath Chalet

**Standout Features:**
- Detached three-bedroom chalet bungalow
- Ground floor bedroom and cloakroom for convenience
- Impressive lounge/diner with multi-fuel burning stove
- Master bedroom with private balcony and stunning sea views
- Wrap-around garden with patio and detached garage
- Off-road parking for two vehicles
- Located in the popular coastal town of Cromer

**Potential Downsides:**
- Average broadband speeds
- Some areas may show signs of wear typical for a 1970s property

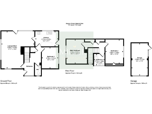
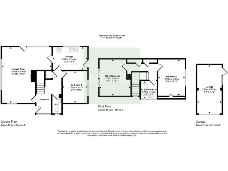
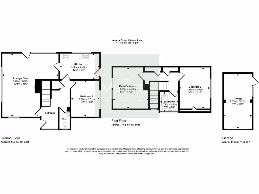
Located in the highly sought-after coastal town of Cromer, this charming three-bedroom chalet bungalow provides a perfect blend of spacious living and scenic beauty. The ground floor features an impressive lounge/diner with a cozy multi-fuel burning stove, a well-appointed kitchen, and a convenient cloakroom, along with a generously sized bedroom. The airy first floor hosts the master bedroom, which opens onto a private balcony showcasing stunning sea views—an ideal retreat for morning coffee or evening relaxation. Outside, the wrap-around garden and patio area create perfect spaces for entertaining or enjoying the fresh coastal air, while the detached garage provides secure storage.

With off-road parking for two vehicles and easy access to Cromer's vibrant town center, this home offers both comfort and convenience. Although the average broadband speeds and some wear characteristic of its 1970s design may require attention, the property's enviable position and potential for future updates make this an exciting opportunity for families, investors, or first-time buyers seeking a charming coastal escape. Don’t miss your chance to secure this rare find—viewings are highly advised!

Property Details

Image Descriptions

Floorplan Description

Rooms

Textual Property Features

Detected Visual Features

Nearby Schools

Nearest Bars And Restaurants

,,,,}

Nearest General Shops

,,}

Nearest Grocery shops

,,}

Nearest Supermarkets

,,}

Nearest Religious buildings

,,}

Nearest Medical buildings

,,,}

Nearest Leisure Facilities

,,,,}

Nearest Tourist attractions

,,}

Nearest Train stations

,,,}

Nearest Bus stations and stops

,,,,}

Nearest Hotels

,,}

Tags

Local Market Stats

AirBnB Data

Similar Properties

Meta

High Res Images

Compatible Images

Low res Images

Thumbnails

Raw Images

High Res Floorplan Images

Compatible Floorplan Images

Low res Floorplan Images

FloorplanImages Thumbnail

Raw Floorplan Images